단위세대평면도
정비사업 추진과정을 유리알처럼 투명하게 공개

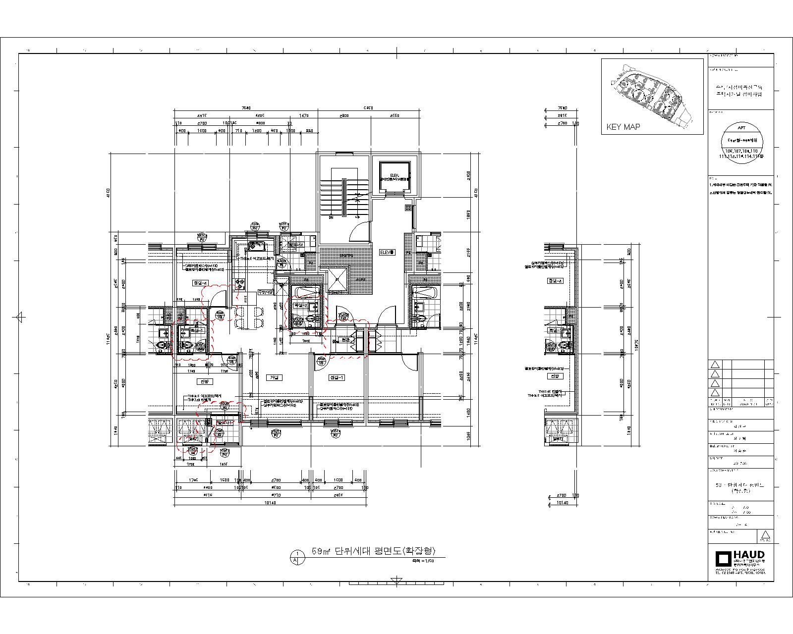
59㎡ 형 단위세대(확장형) 평면도(경미한 변경)

59㎡ 형 단위세대(확장형) 평면도(경미한 변경)
공급면적 (㎡) 85.78
사업시행인가(변경)일자 2017-06-15
형별 59m2
세대수 394
전용면적 (㎡) 59.96
공용면적 (㎡) 25.82

단위세대평면도 이미지

84 B 단위세대(확장형) 평면도 (경미한변경)

84 B 단위세대(확장형) 평면도 (경미한변경)
공급면적 (㎡) 113.41
사업시행인가(변경)일자 2017-06-15
형별 84㎡ B
세대수 211
전용면적 (㎡) 84.93
공용면적 (㎡) 28.48

단위세대평면도 이미지

사업추진 단계별
공개자료 조회

툴팁 아이콘
원하시는 사업 추진단계에 등록된 자료들을 조회해 보실 수 있습니다.