단위세대평면도
정비사업 추진과정을 유리알처럼 투명하게 공개

[114TA] 단위세대평면도(변경)

[114TA] 단위세대평면도(변경)
공급면적 (㎡) 140.54
사업시행인가(변경)일자 2013-05-30
형별 114TA
세대수 70
전용면적 (㎡) 114.98
공용면적 (㎡) 25.56

단위세대평면도 이미지

[114TB] 단위세대평면도(변경)

[114TB] 단위세대평면도(변경)
공급면적 (㎡) 139.66
사업시행인가(변경)일자 2013-05-30
형별 114TB
세대수 69
전용면적 (㎡) 114.98
공용면적 (㎡) 24.68

단위세대평면도 이미지

[59PA] 단위세대평면도(변경)

[59PA] 단위세대평면도(변경)
공급면적 (㎡) 82.56
사업시행인가(변경)일자 2013-05-30
형별 59PA
세대수 172
전용면적 (㎡) 59.99
공용면적 (㎡) 22.57

단위세대평면도 이미지

[66TE] 단위세대평면도(변경)

[66TE] 단위세대평면도(변경)
공급면적 (㎡) 96.21
사업시행인가(변경)일자 2013-05-30
형별 66TE
세대수 4
전용면적 (㎡) 66.90
공용면적 (㎡) 29.31

단위세대평면도 이미지

[84PA] 단위세대평면도(변경)

[84PA] 단위세대평면도(변경)
공급면적 (㎡) 114.78
사업시행인가(변경)일자 2013-05-30
형별 84PA
세대수 182
전용면적 (㎡) 84.99
공용면적 (㎡) 29.79

단위세대평면도 이미지

[84PB] 단위세대평면도(변경)

[84PB] 단위세대평면도(변경)
공급면적 (㎡) 115.70
사업시행인가(변경)일자 2013-05-30
형별 84PB
세대수 70
전용면적 (㎡) 84.99
공용면적 (㎡) 30.71

단위세대평면도 이미지

[84TA] 단위세대평면도(변경)

[84TA] 단위세대평면도(변경)
공급면적 (㎡) 108.28
사업시행인가(변경)일자 2013-05-30
형별 84TA
세대수 238
전용면적 (㎡) 84.99
공용면적 (㎡) 23.29

단위세대평면도 이미지

[84TB] 단위세대평면도(변경)

[84TB] 단위세대평면도(변경)
공급면적 (㎡) 107.44
사업시행인가(변경)일자 2013-05-30
형별 84TB
세대수 234
전용면적 (㎡) 84.99
공용면적 (㎡) 22.45

단위세대평면도 이미지

[97TE] 단위세대평면도(변경)

[97TE] 단위세대평면도(변경)
공급면적 (㎡) 144.72
사업시행인가(변경)일자 2013-05-30
형별 97TE
세대수 36
전용면적 (㎡) 97.06
공용면적 (㎡) 47.66

단위세대평면도 이미지

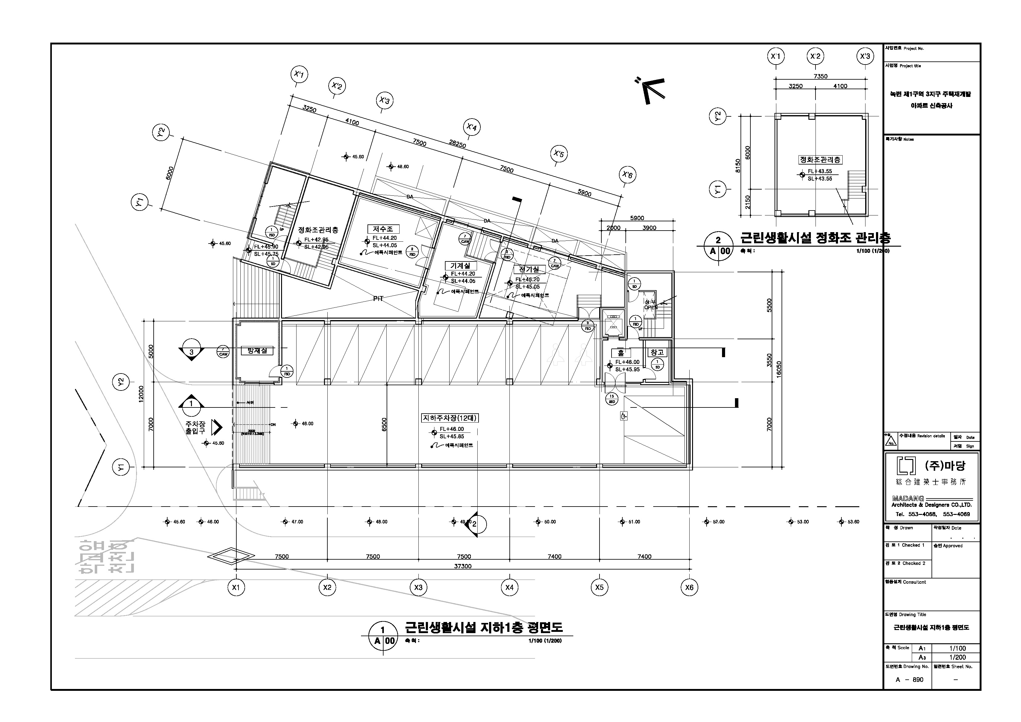
[상가]근린생활시설 평면도

[상가]근린생활시설 평면도
공급면적 (㎡) 1891.99
사업시행인가(변경)일자 2013-05-30
형별 101호~114호 / 201호~215호
세대수 29
전용면적 (㎡) 834.13
공용면적 (㎡) 1057.86

단위세대평면도 이미지

단위세대평면도 이미지

단위세대평면도 이미지

단위세대평면도 이미지

사업추진 단계별
공개자료 조회

툴팁 아이콘
원하시는 사업 추진단계에 등록된 자료들을 조회해 보실 수 있습니다.