단위세대평면도
정비사업 추진과정을 유리알처럼 투명하게 공개

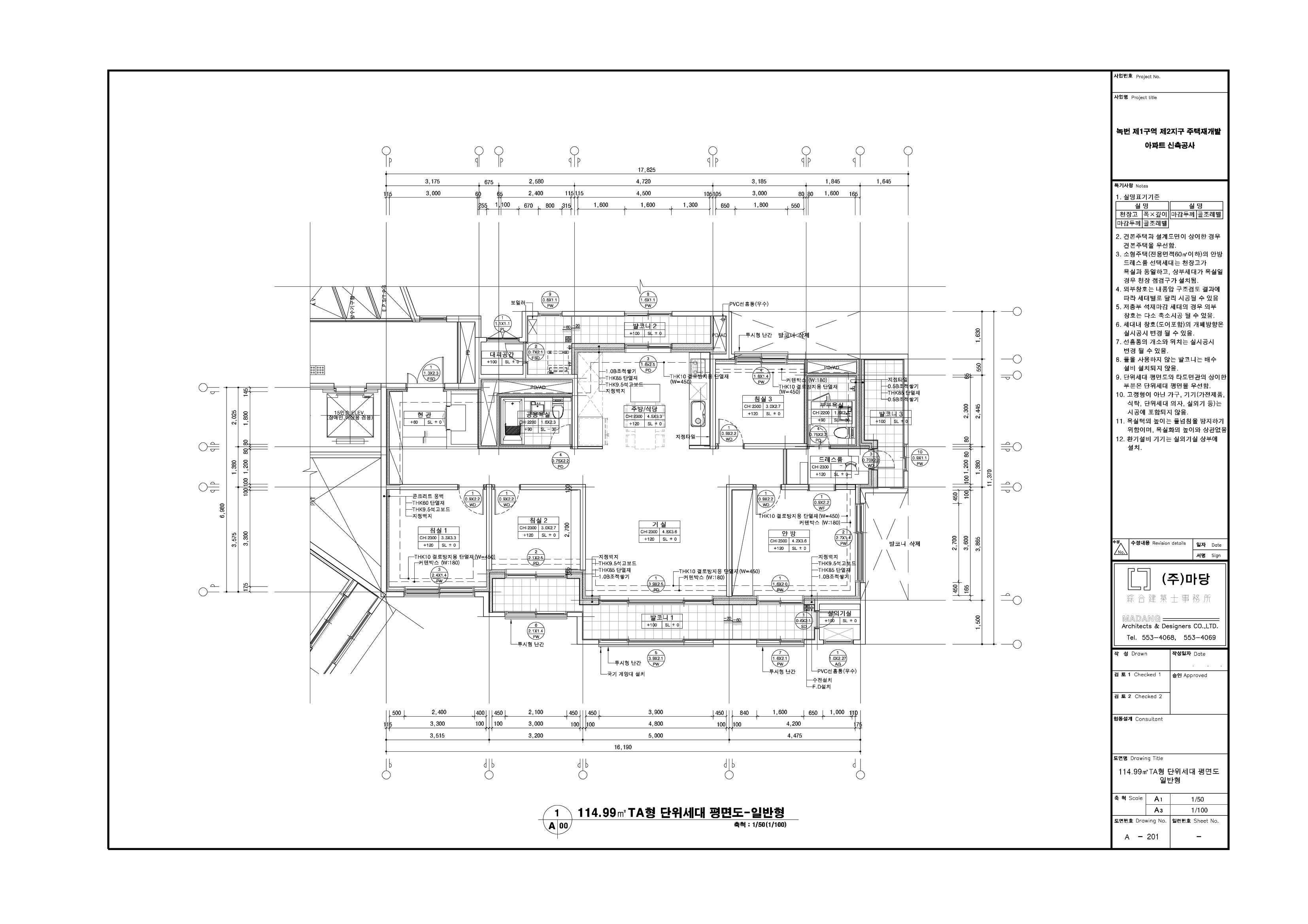
114.99TA-사업시행변경인가(안)

114.99TA-사업시행변경인가(안)
공급면적 (㎡) 230.51
사업시행인가(변경)일자 2013-11-28
형별 114.99TA
세대수 12
전용면적 (㎡) 114.99TA
공용면적 (㎡) 74.31

단위세대평면도 이미지

단위세대평면도 이미지

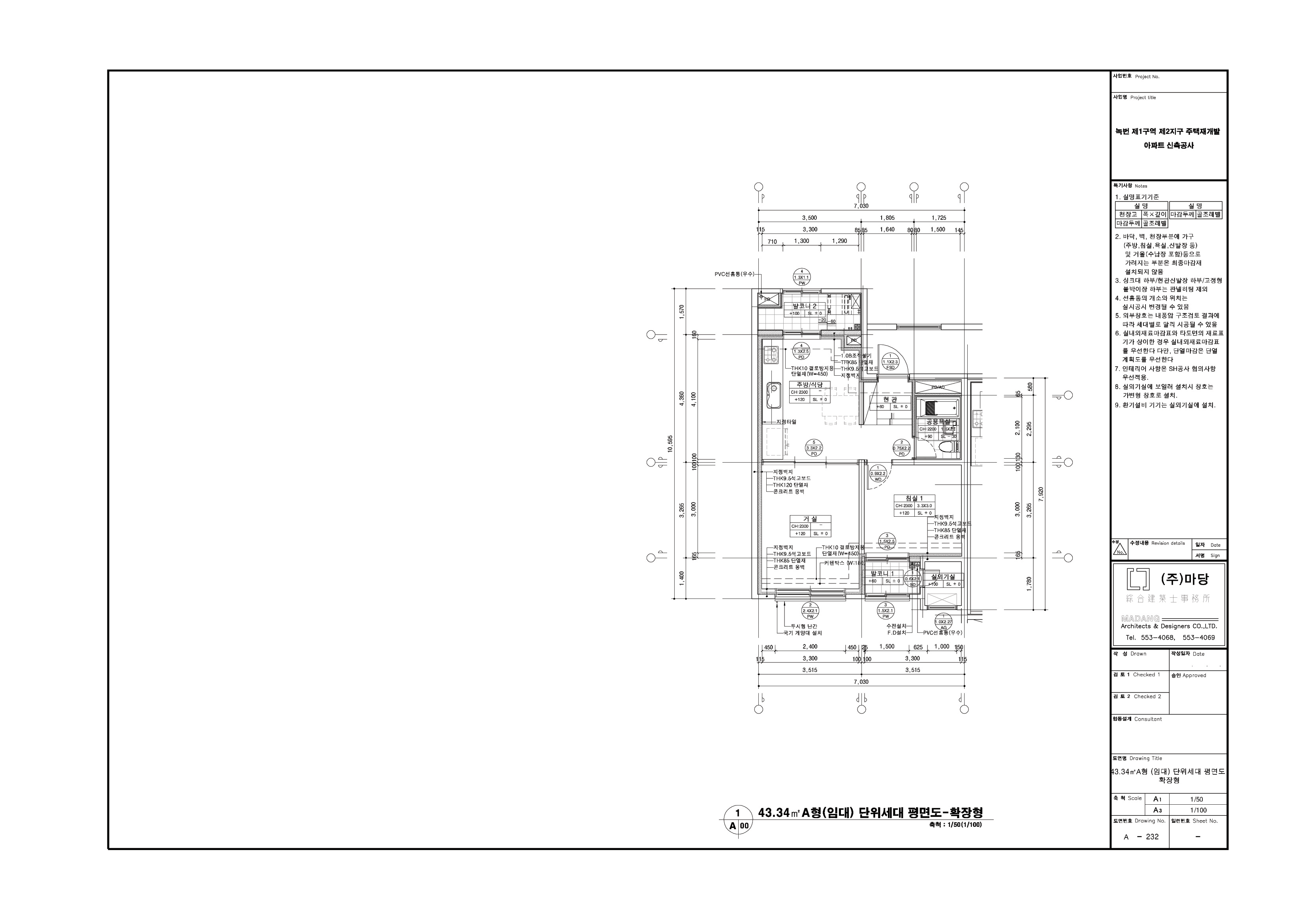
38.28A(임대),43.34A(임대)-사업시행변경인가(안)

38.28A(임대),43.34A(임대)-사업시행변경인가(안)
공급면적 (㎡) 38.28/43.34
사업시행인가(변경)일자 2013-11-28
형별 38.28A(임대),43.34A(임대)
세대수 124
전용면적 (㎡) 38.28,43.34
공용면적 (㎡) 1.88/2.13

단위세대평면도 이미지

단위세대평면도 이미지

43.74A,46.83TH(임대)-사업시행변경인가(안)

43.74A,46.83TH(임대)-사업시행변경인가(안)
공급면적 (㎡) 43.74/46.83
사업시행인가(변경)일자 2013-11-28
형별 43.74A,46.83TH
세대수 78
전용면적 (㎡) 43.74/46.83
공용면적 (㎡) 2.14/2.30

단위세대평면도 이미지

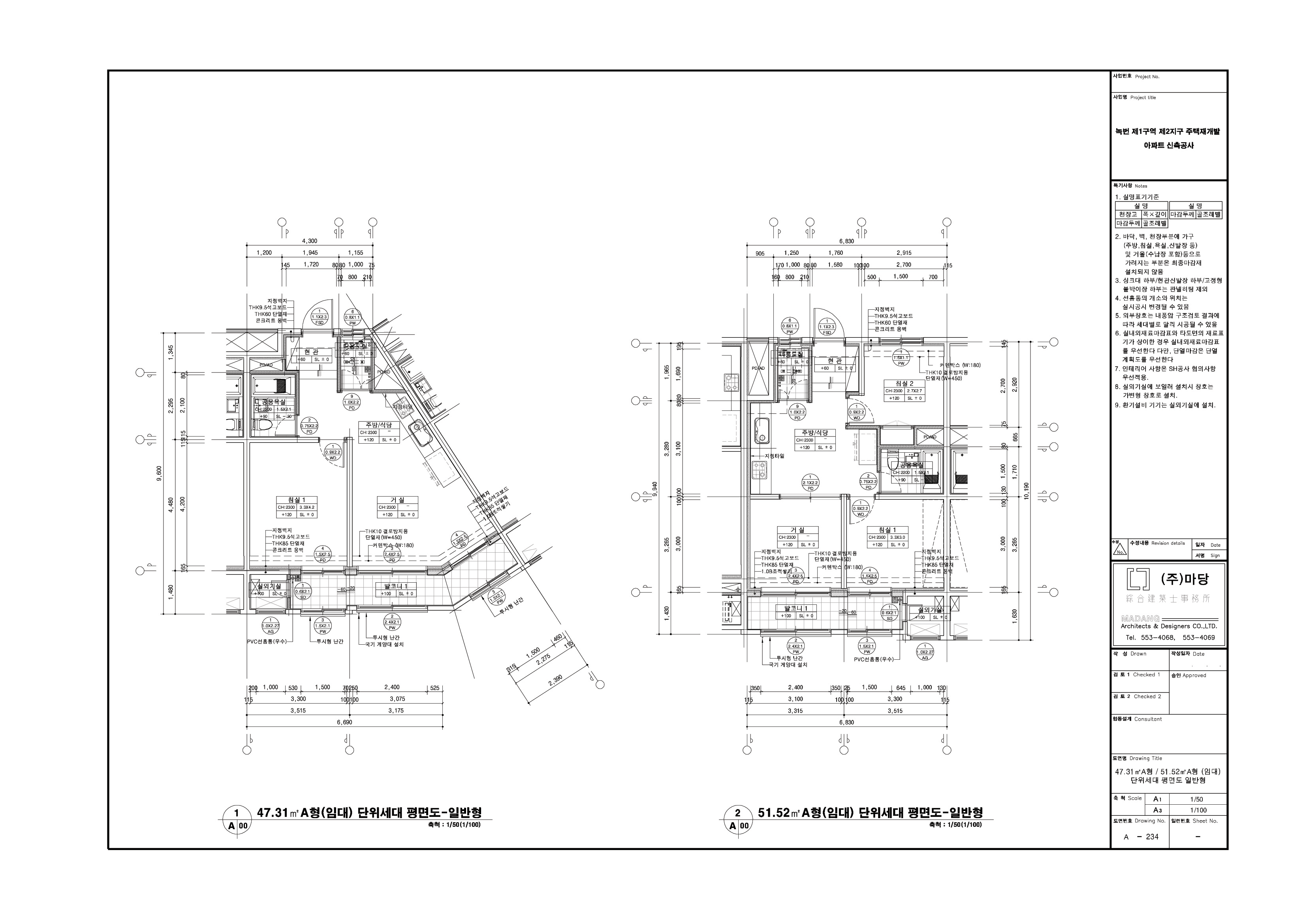
47.31A,51.52A(임대)-사업시행변경인가(안)

47.31A,51.52A(임대)-사업시행변경인가(안)
공급면적 (㎡) 47.31/51.52
사업시행인가(변경)일자 2013-11-28
형별 47.31A,51.52A(임대)
세대수 56
전용면적 (㎡) 47.31/51.52
공용면적 (㎡) 2.32/2.54

단위세대평면도 이미지

단위세대평면도 이미지

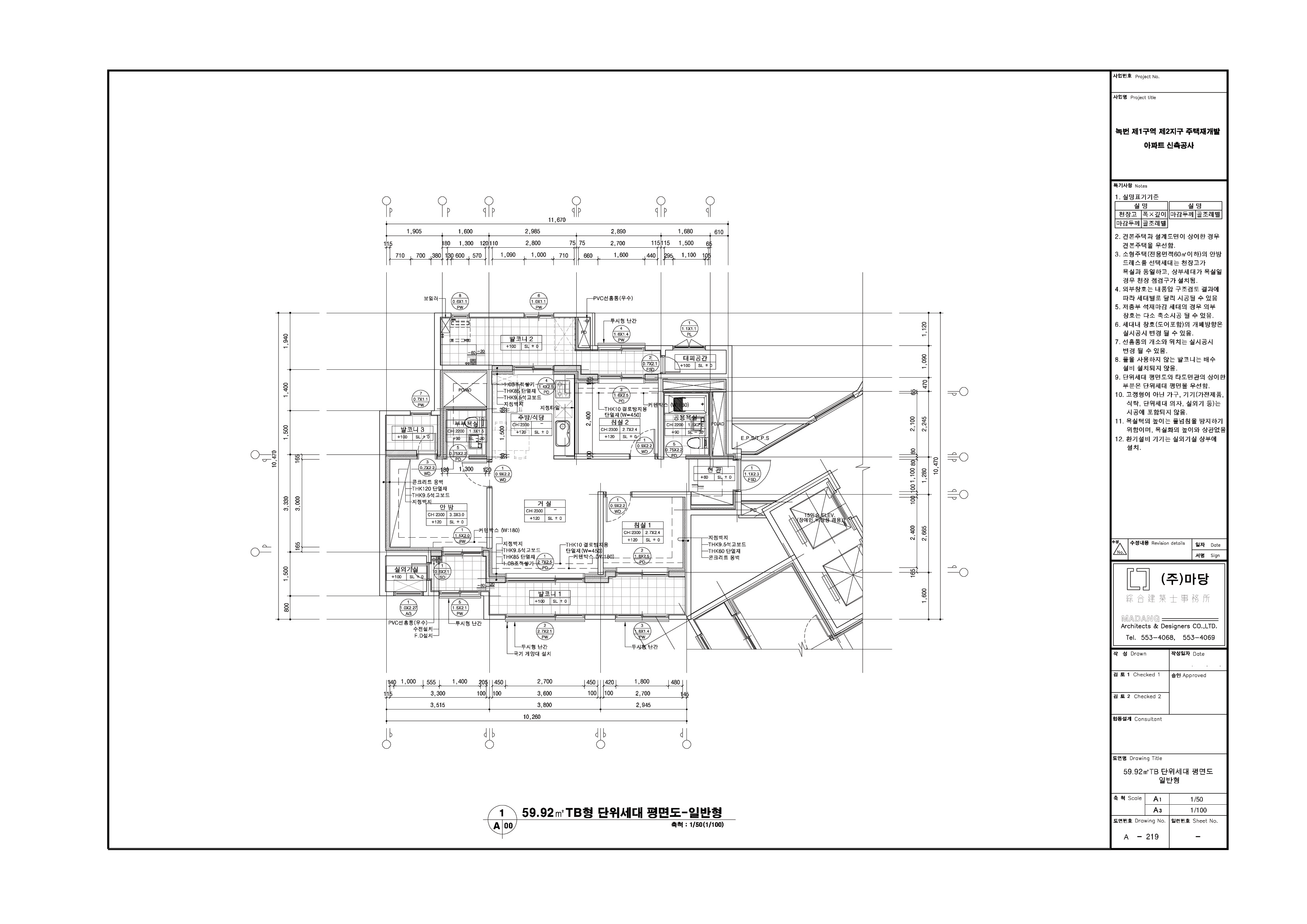
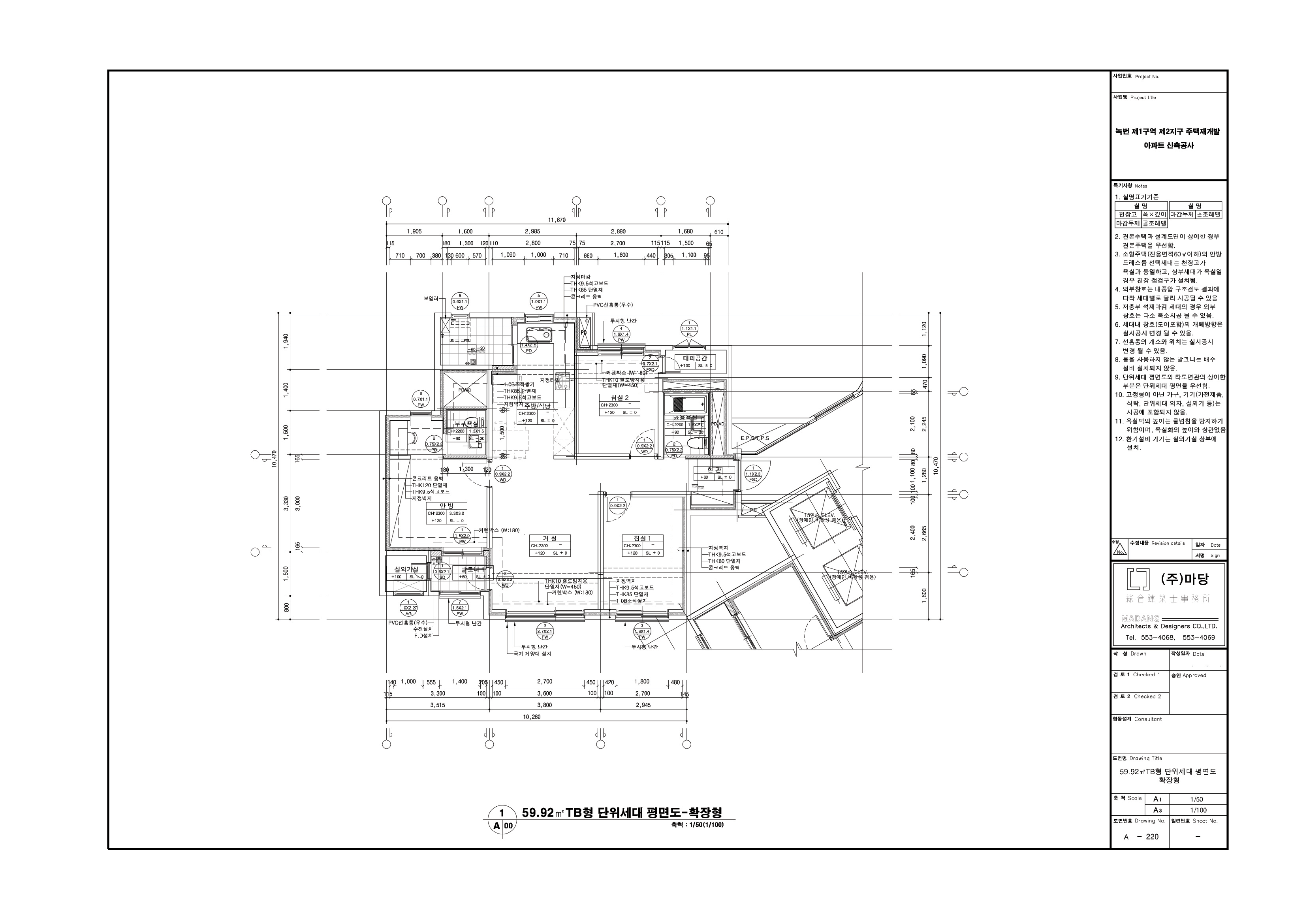
59.92TB-사업시행변경인가(안)

59.92TB-사업시행변경인가(안)
공급면적 (㎡) 119.83
사업시행인가(변경)일자 2013-11-28
형별 59.92TB
세대수 39
전용면적 (㎡) 59.92
공용면적 (㎡) 38.73

단위세대평면도 이미지

단위세대평면도 이미지

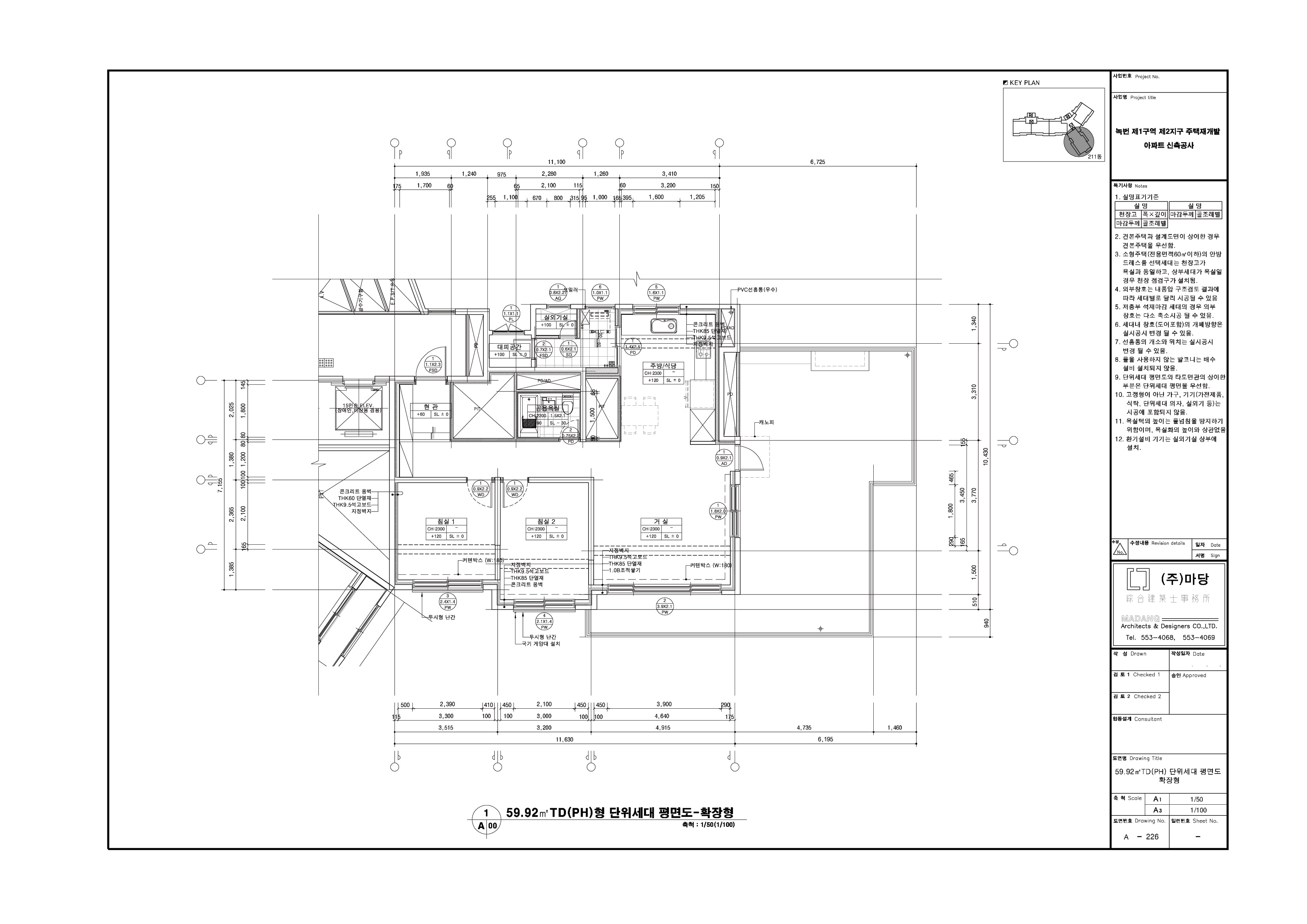
59.92TD(PH)-사업시행변경인가(안)

59.92TD(PH)-사업시행변경인가(안)
공급면적 (㎡) 122.07
사업시행인가(변경)일자 2013-11-28
형별 59.92TD(PH)
세대수 1
전용면적 (㎡) 59.92
공용면적 (㎡) 38.73

단위세대평면도 이미지

단위세대평면도 이미지

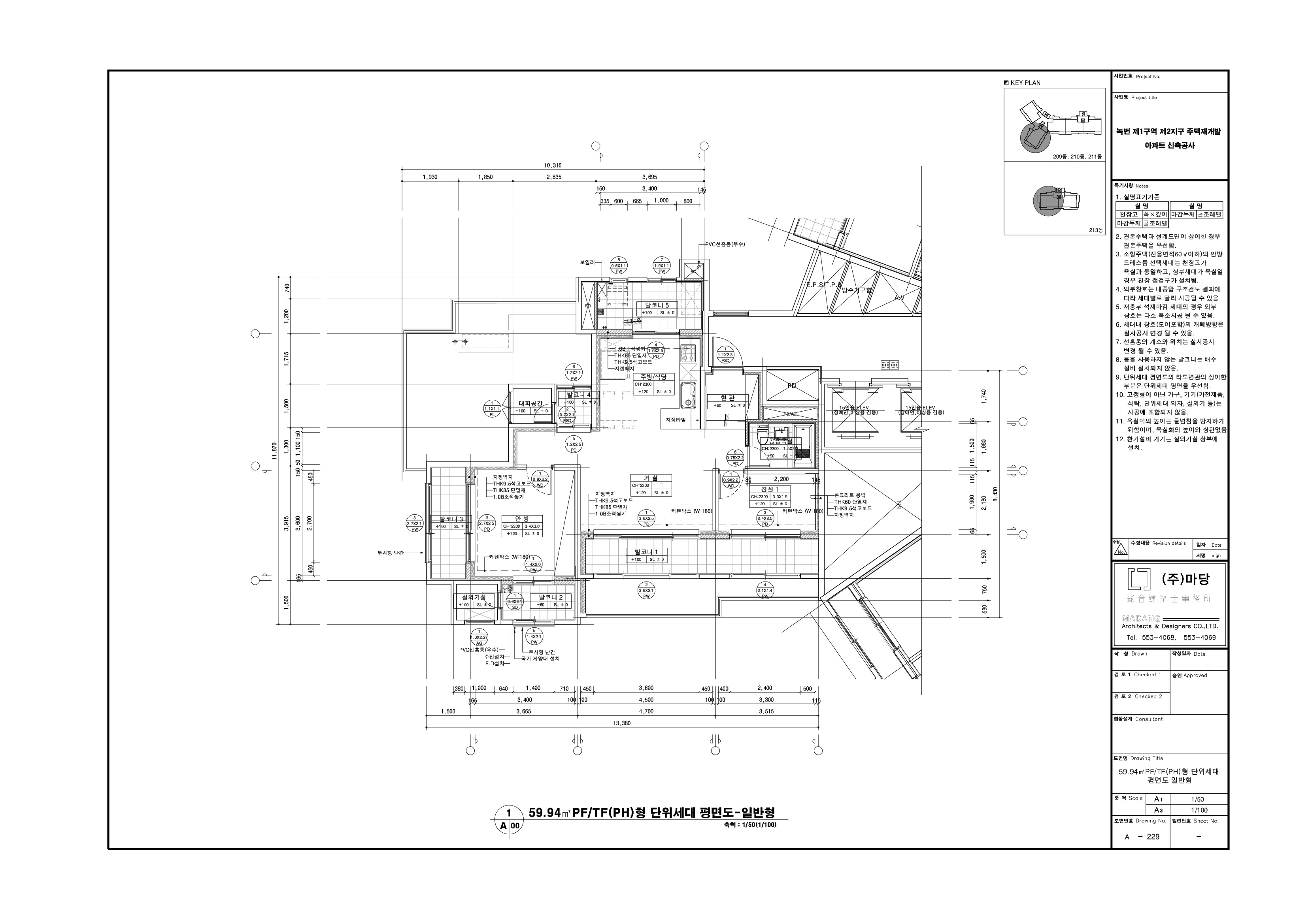
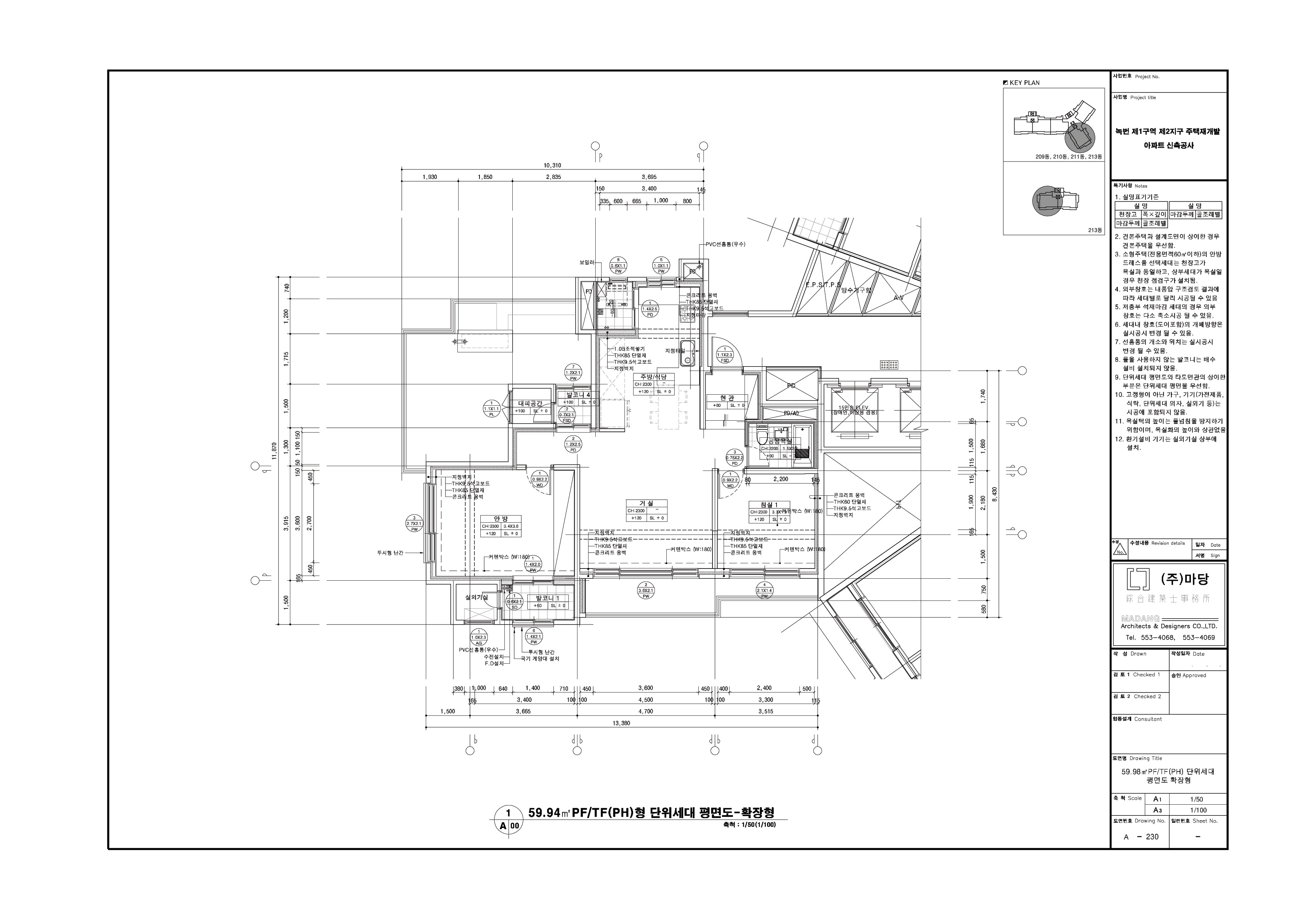
59.94TF.PF(PH)-사업시행변경인가(안)

59.94TF.PF(PH)-사업시행변경인가(안)
공급면적 (㎡) 125.07/121.03
사업시행인가(변경)일자 2013-11-28
형별 59.94TF.PF(PH)
세대수 3
전용면적 (㎡) 59.94
공용면적 (㎡) 38.78

단위세대평면도 이미지

단위세대평면도 이미지

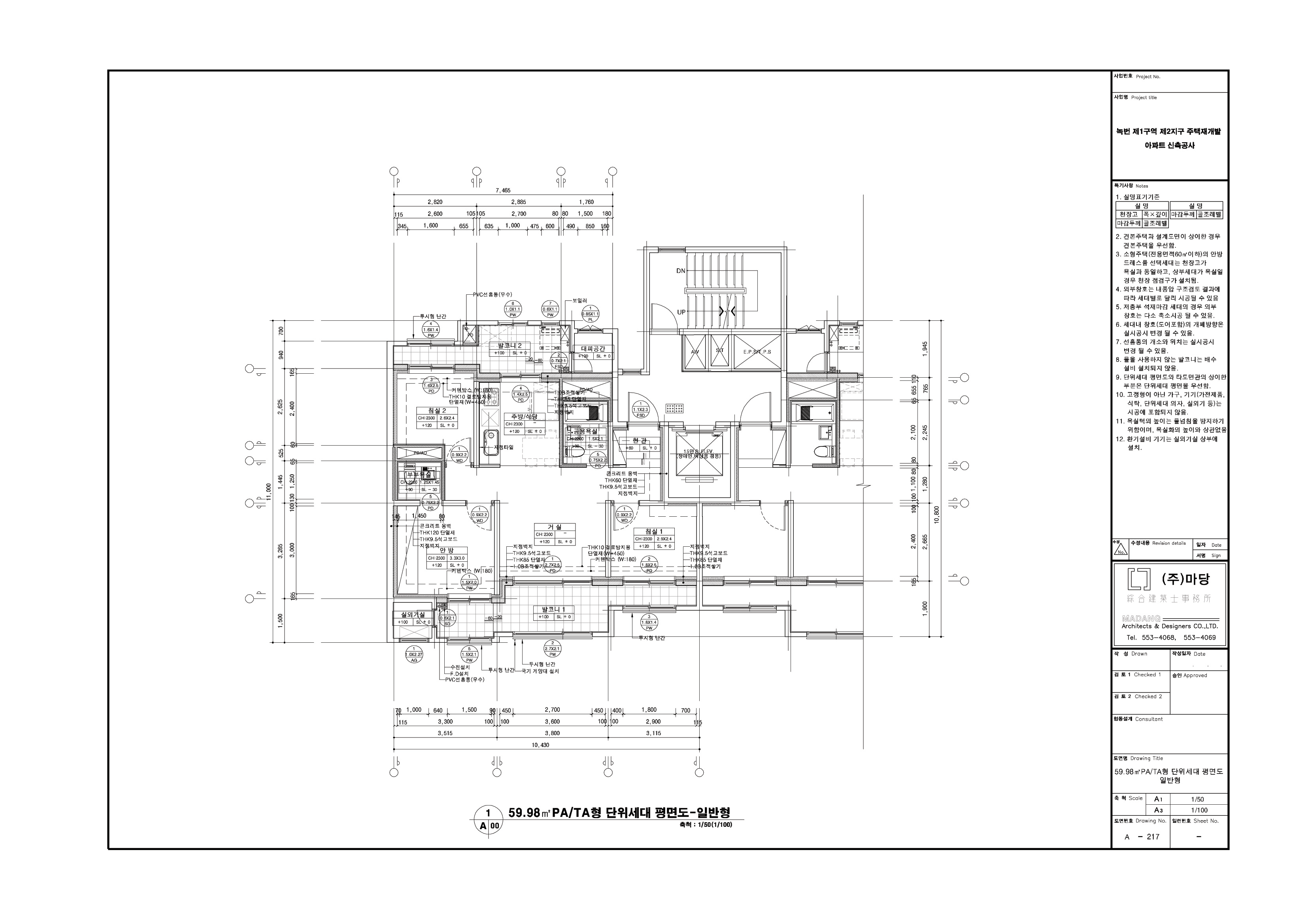
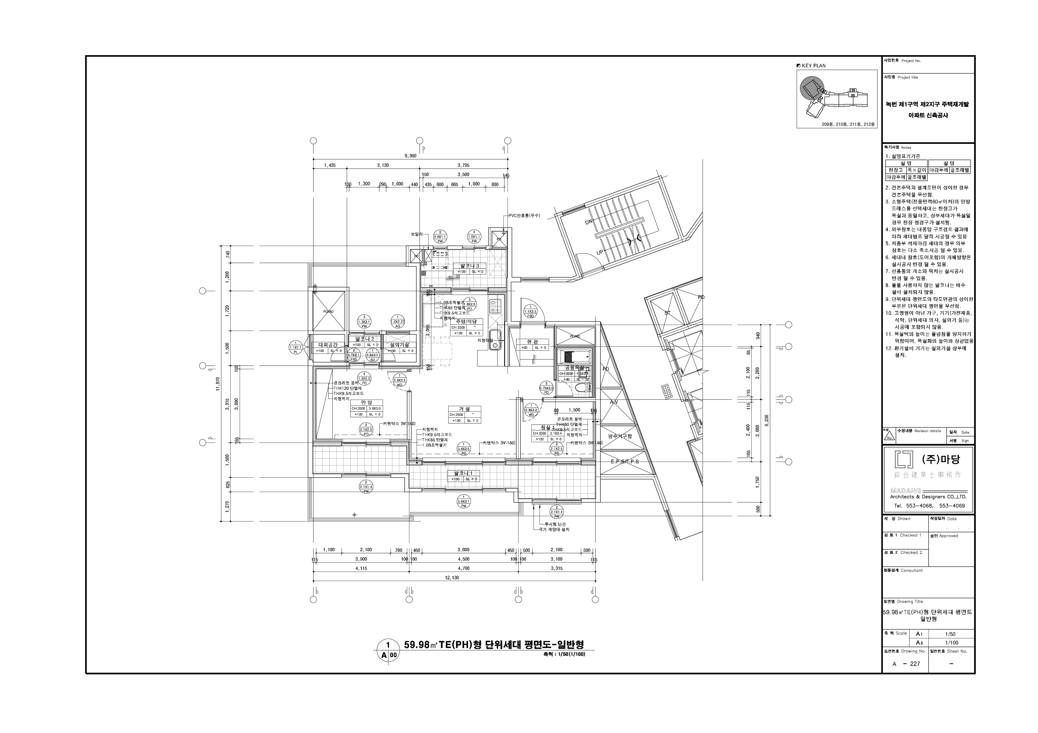
59.98PA.TA-사업시행변경인가(안)

59.98PA.TA-사업시행변경인가(안)
공급면적 (㎡) 120.98/126.51
사업시행인가(변경)일자 2013-11-28
형별 59.98PA.TA
세대수 209
전용면적 (㎡) 59.98
공용면적 (㎡) 38.77

단위세대평면도 이미지

단위세대평면도 이미지

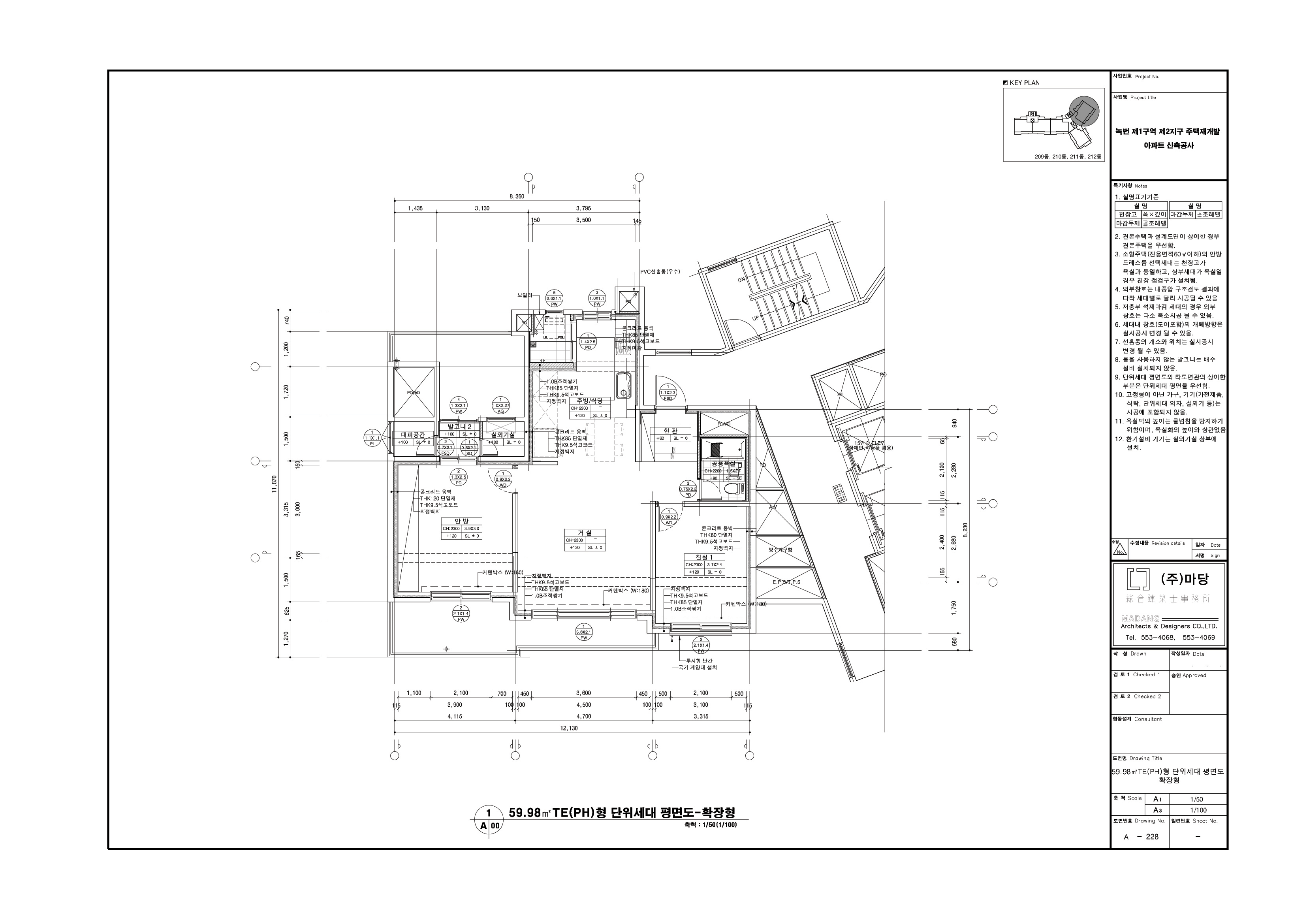
59.98TE(PH)-사업시행변경인가(안)

59.98TE(PH)-사업시행변경인가(안)
공급면적 (㎡) 123.40
사업시행인가(변경)일자 2013-11-28
형별 59.98TE(PH)
세대수 4
전용면적 (㎡) 59.98
공용면적 (㎡) 38.77

단위세대평면도 이미지

단위세대평면도 이미지

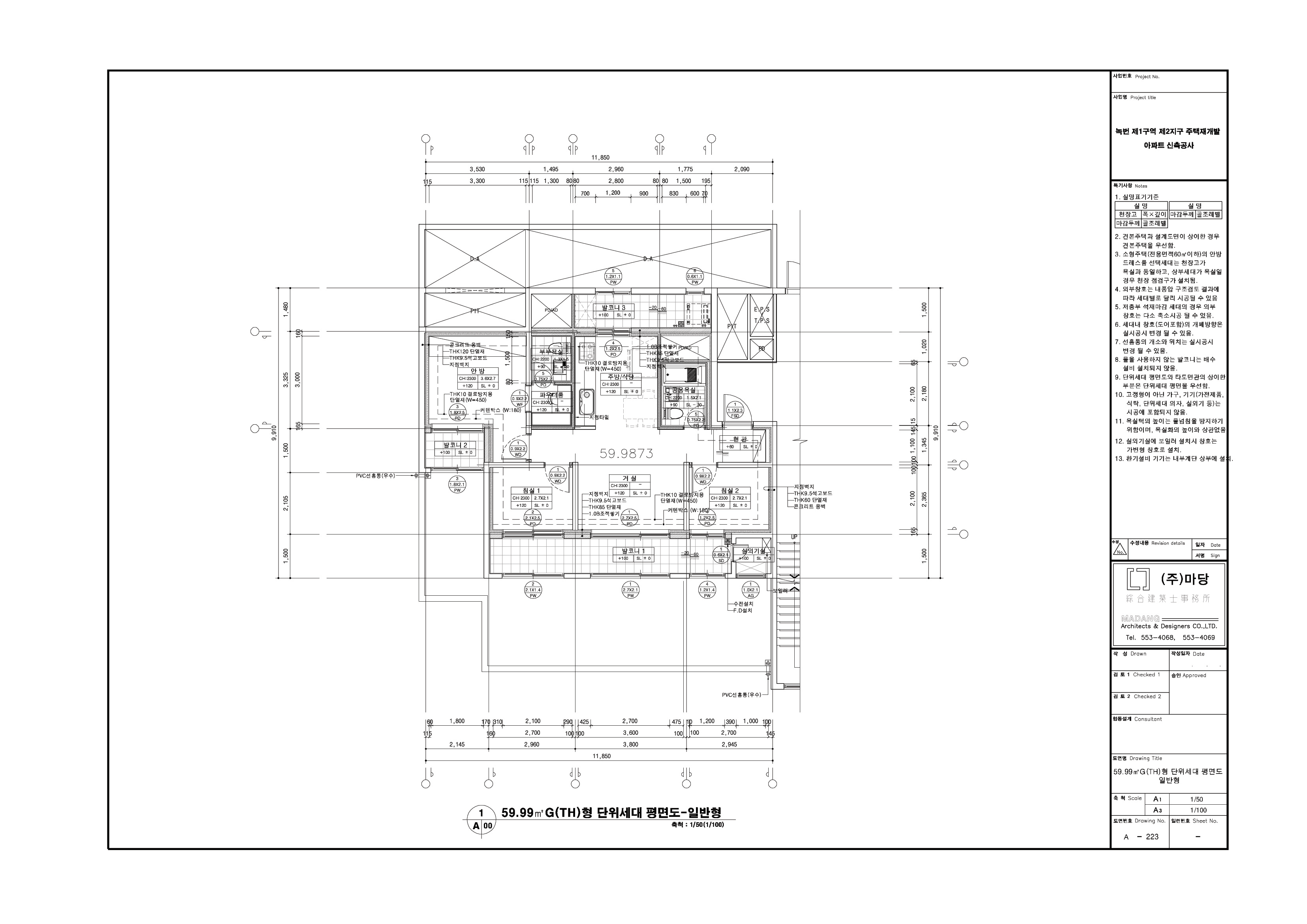
59.99G(TH)-사업시행변경인가(안)

59.99G(TH)-사업시행변경인가(안)
공급면적 (㎡) 130.00
사업시행인가(변경)일자 2013-11-28
형별 59.99G(TH)
세대수 17
전용면적 (㎡) 59.99
공용면적 (㎡) 38.78

단위세대평면도 이미지

단위세대평면도 이미지

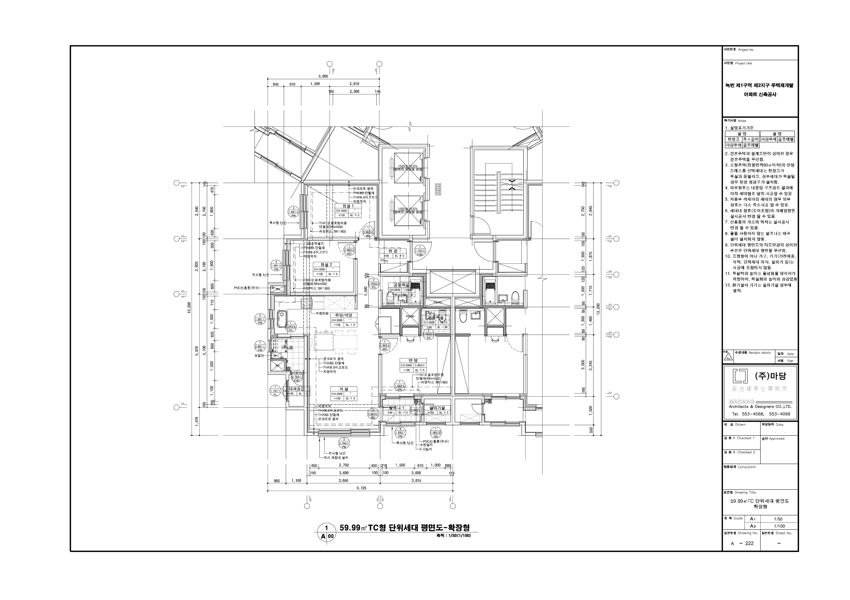
59.99TC-사업시행변경인가(안)

59.99TC-사업시행변경인가(안)
공급면적 (㎡) 122.78
사업시행인가(변경)일자 2013-11-28
형별 59.99TC
세대수 58
전용면적 (㎡) 59.99
공용면적 (㎡) 38.78

단위세대평면도 이미지

단위세대평면도 이미지

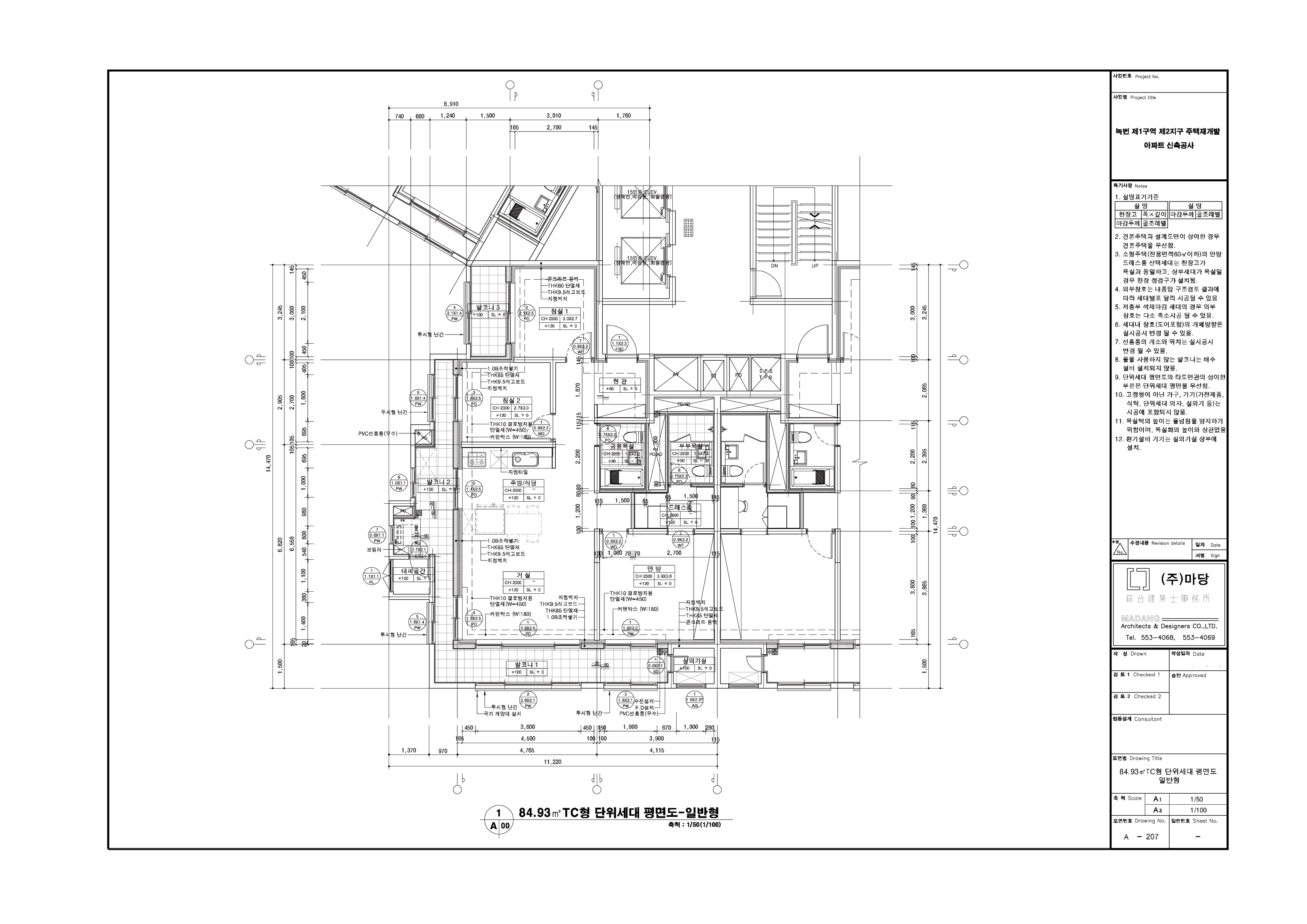
84.93TC-사업시행변경인가(안)

84.93TC-사업시행변경인가(안)
공급면적 (㎡) 168.30
사업시행인가(변경)일자 2013-11-28
형별 84.93TC
세대수 102
전용면적 (㎡) 84.93
공용면적 (㎡) 54.88

단위세대평면도 이미지

단위세대평면도 이미지

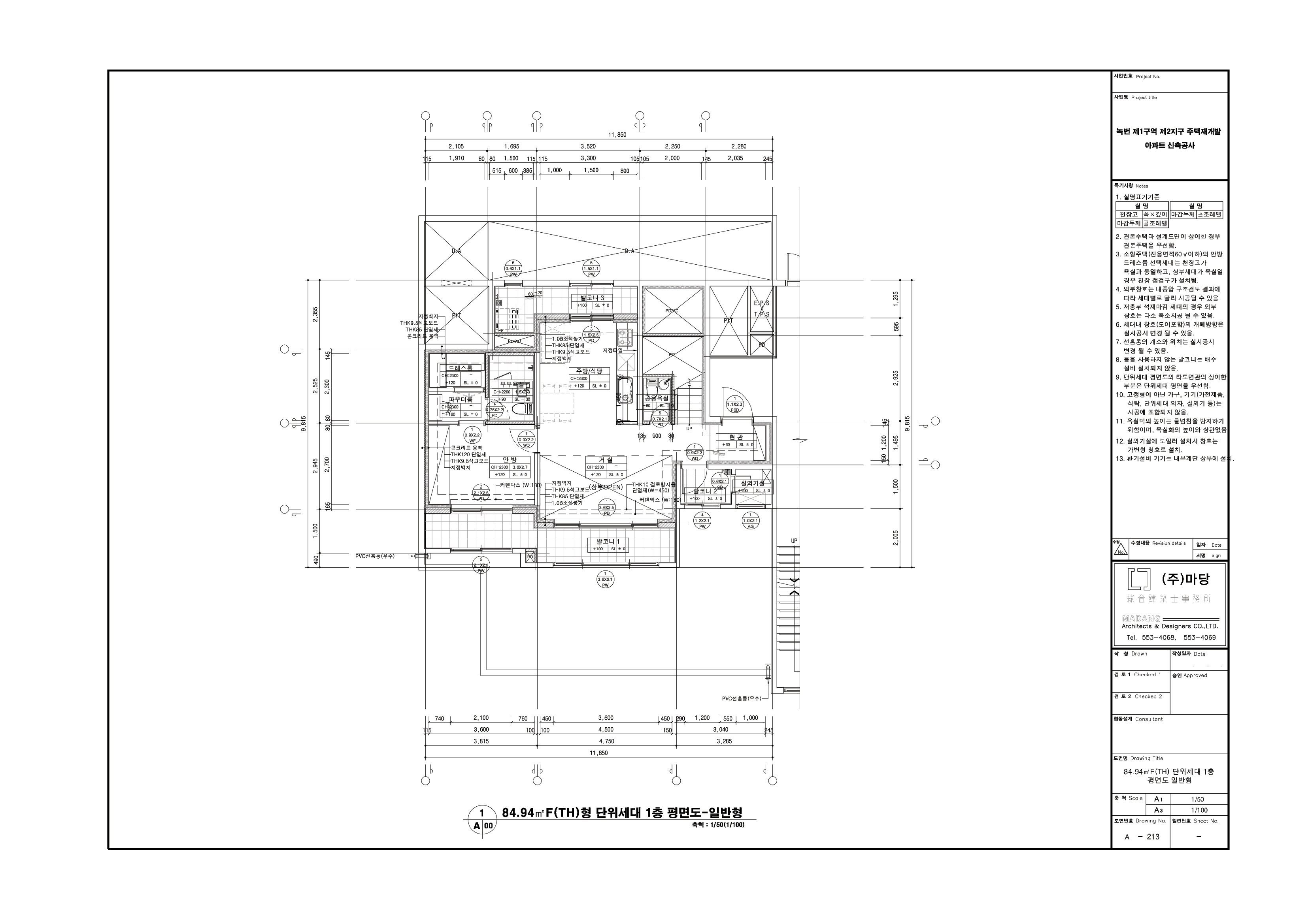
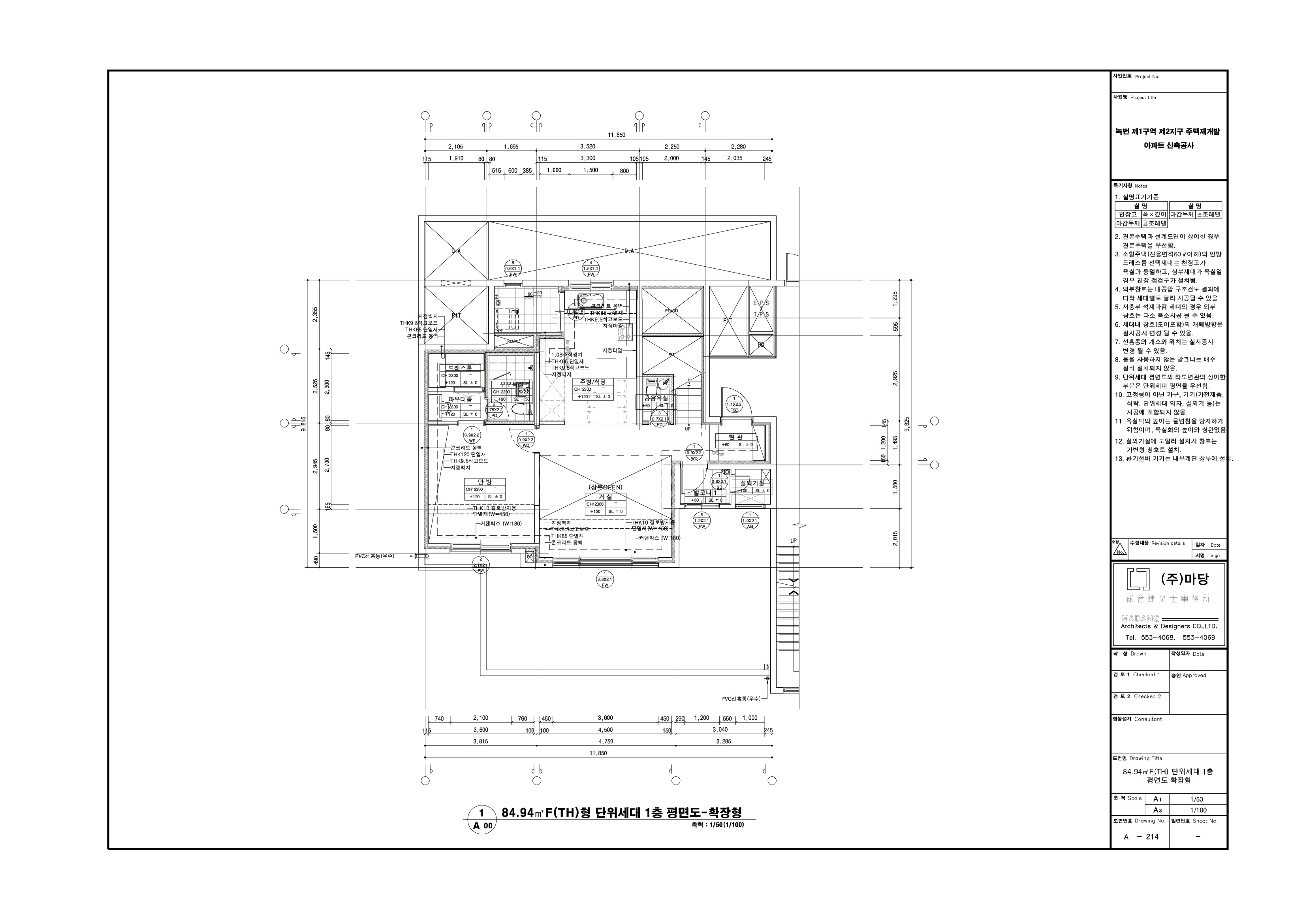
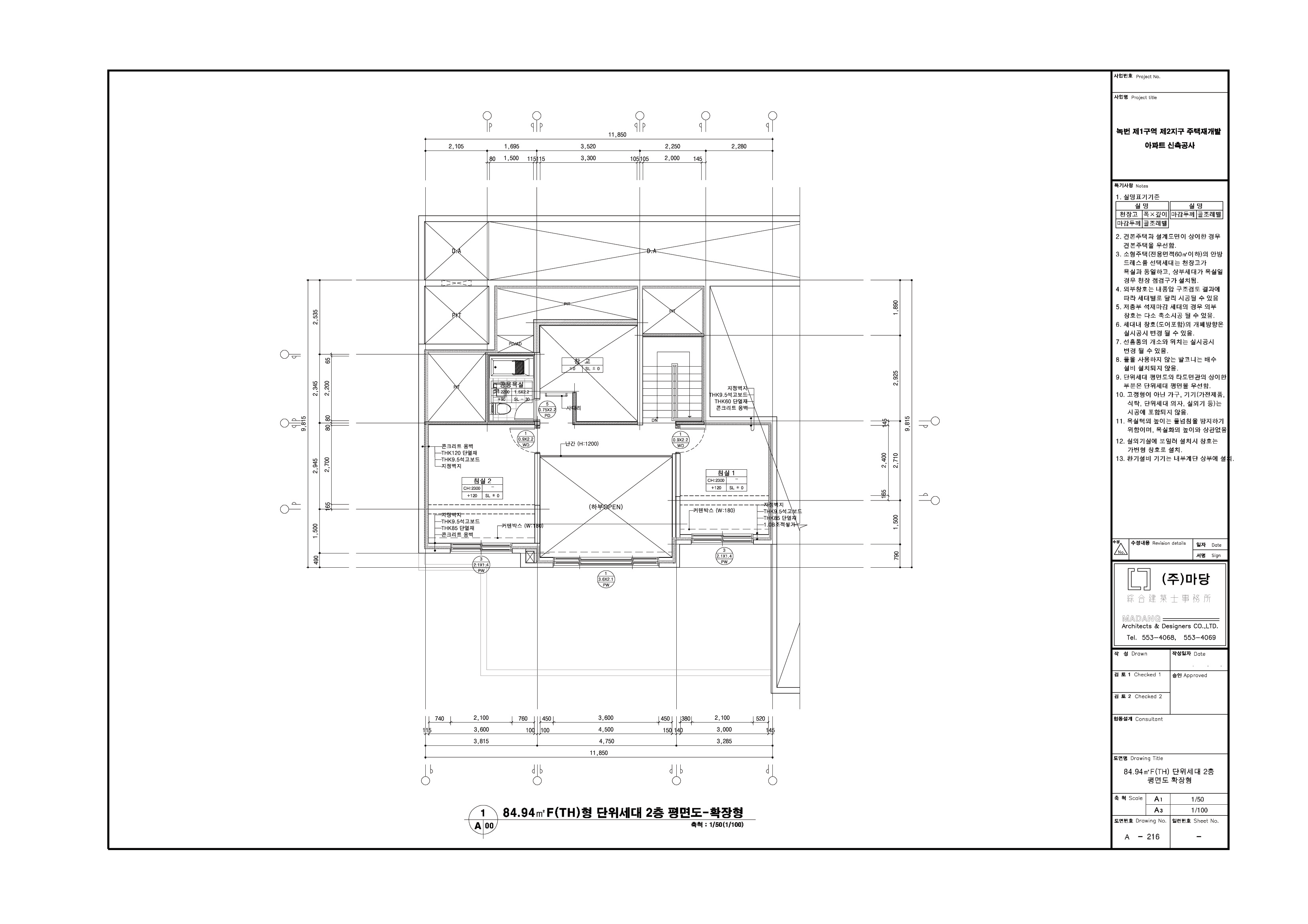
84.94F(TH)-사업시행변경인가(안)

84.94F(TH)-사업시행변경인가(안)
공급면적 (㎡) 179.01
사업시행인가(변경)일자 2013-11-28
형별 84.94F(TH)-1층(일반형)
세대수 2
전용면적 (㎡) 84.94
공용면적 (㎡) 54.89

단위세대평면도 이미지

단위세대평면도 이미지

단위세대평면도 이미지

단위세대평면도 이미지

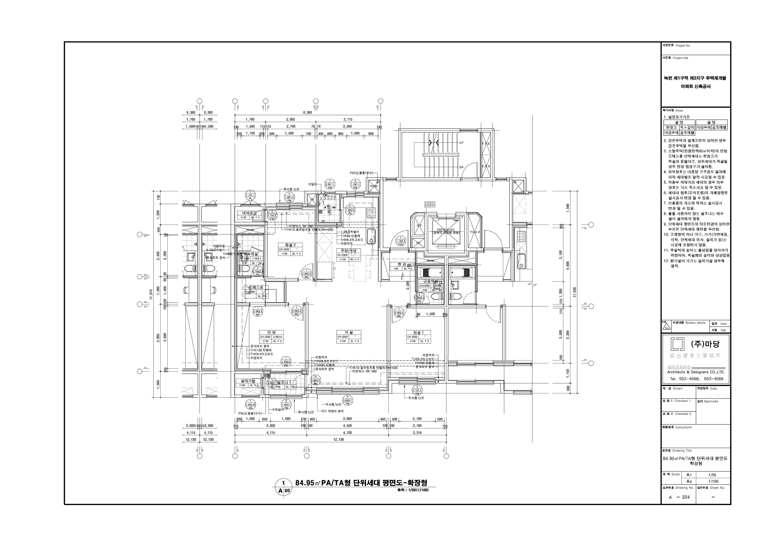
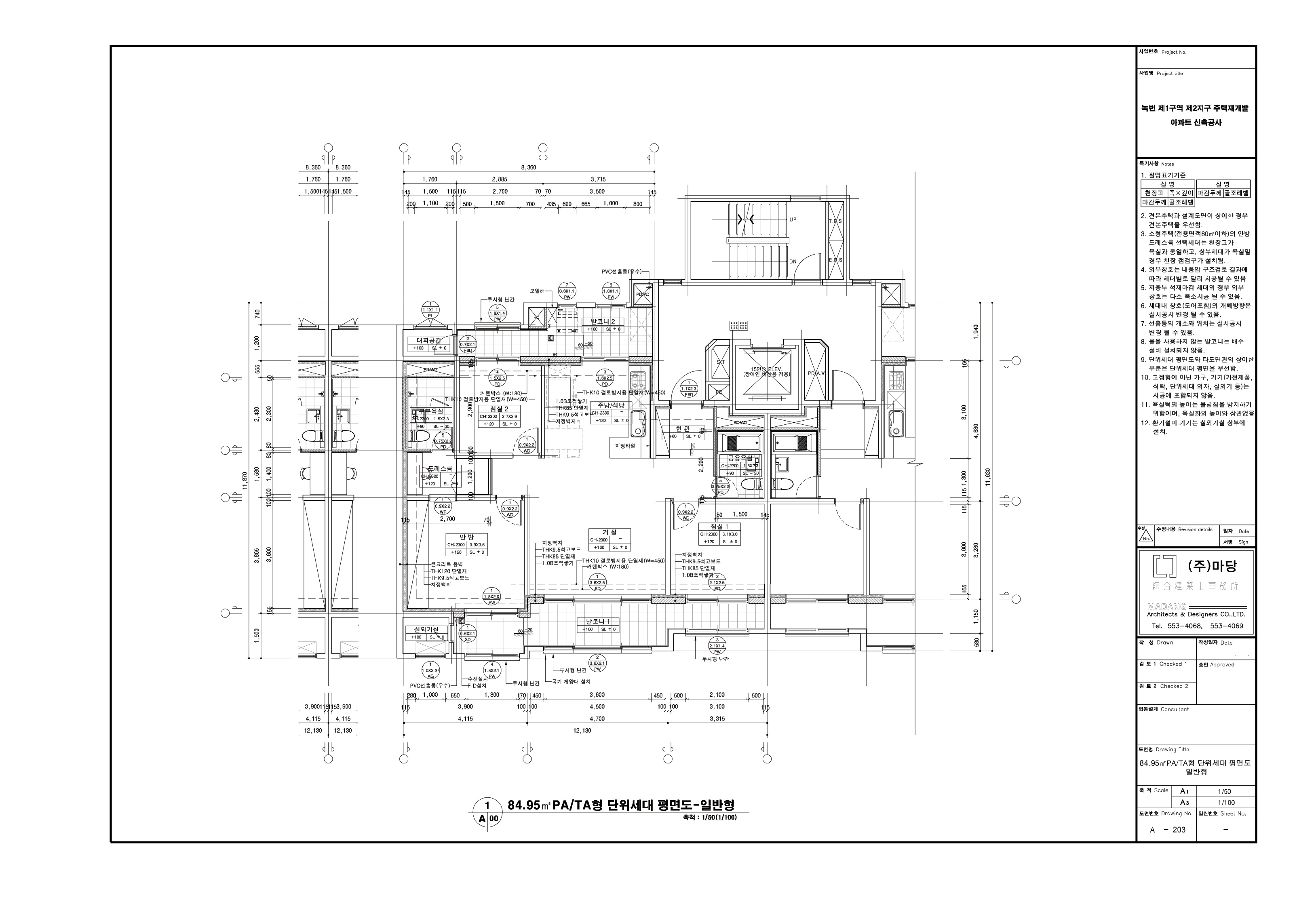
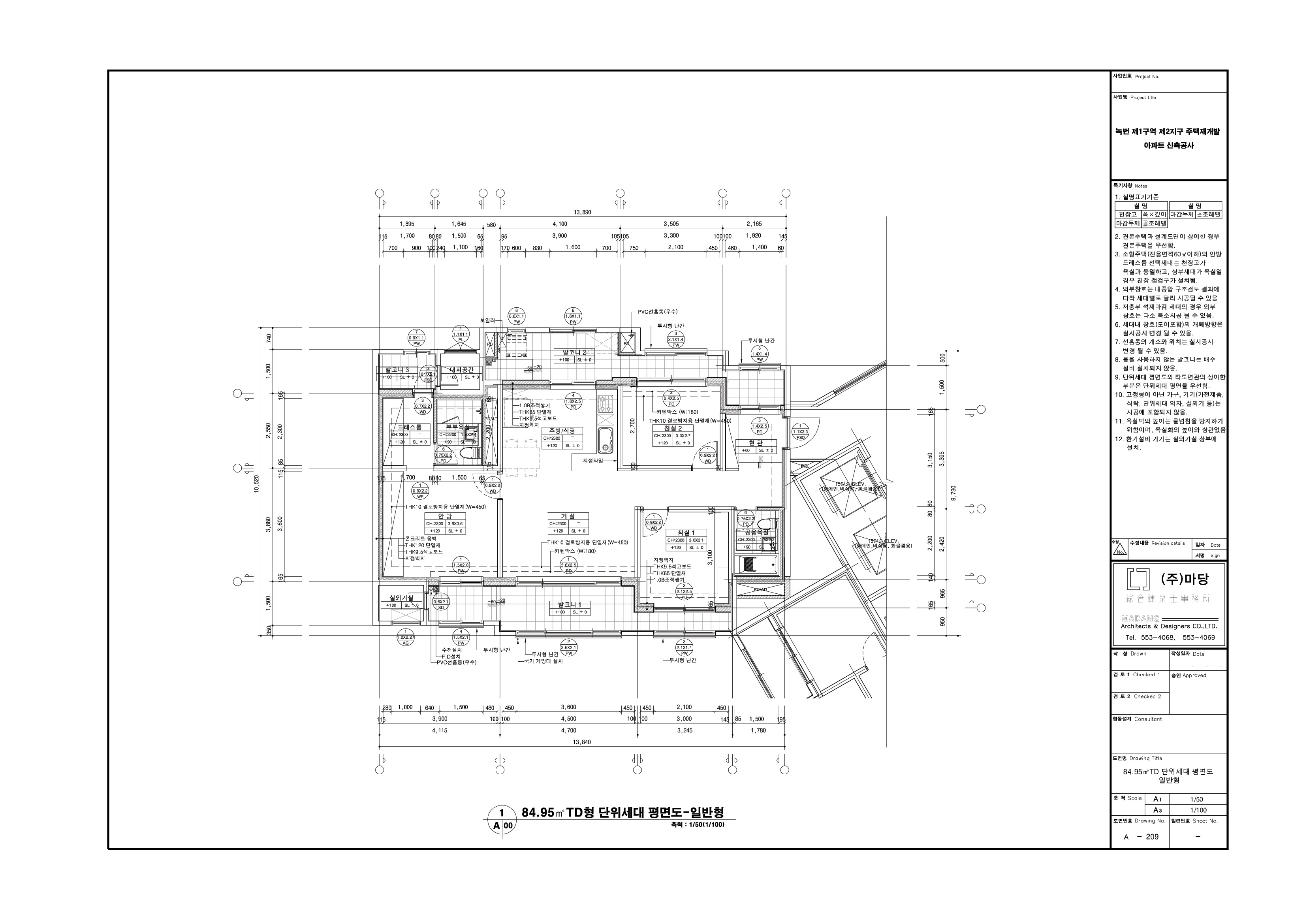
84.95PA.TA-사업시행변경인가(안)

84.95PA.TA-사업시행변경인가(안)
공급면적 (㎡) 166.77/170.91
사업시행인가(변경)일자 2013-11-28
형별 84.95PA.TA
세대수 481
전용면적 (㎡) 84.95
공용면적 (㎡) 54.90

단위세대평면도 이미지

단위세대평면도 이미지

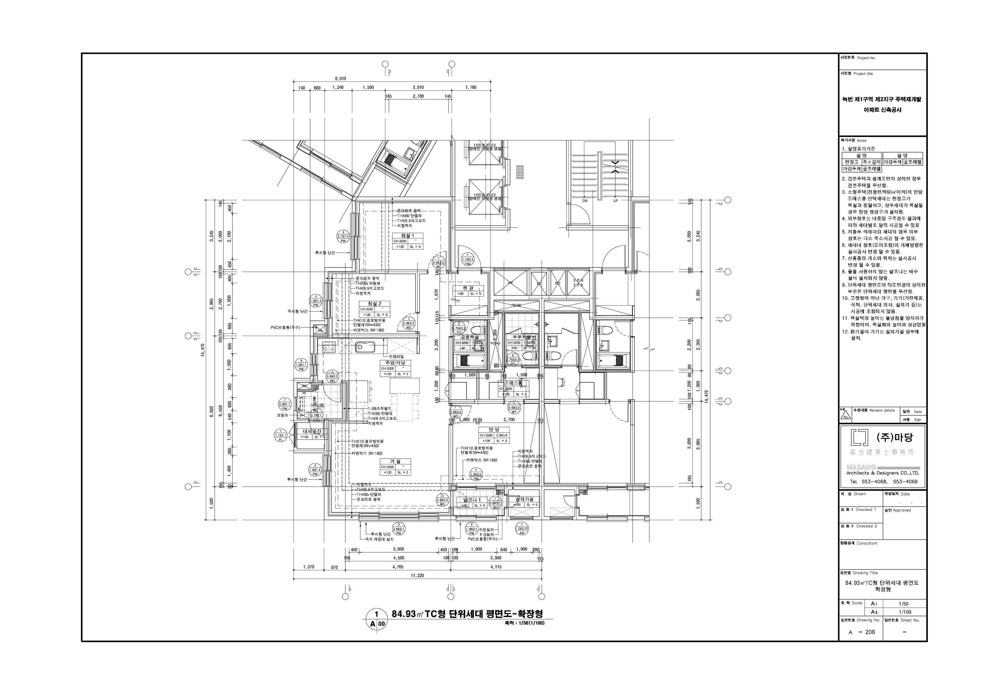
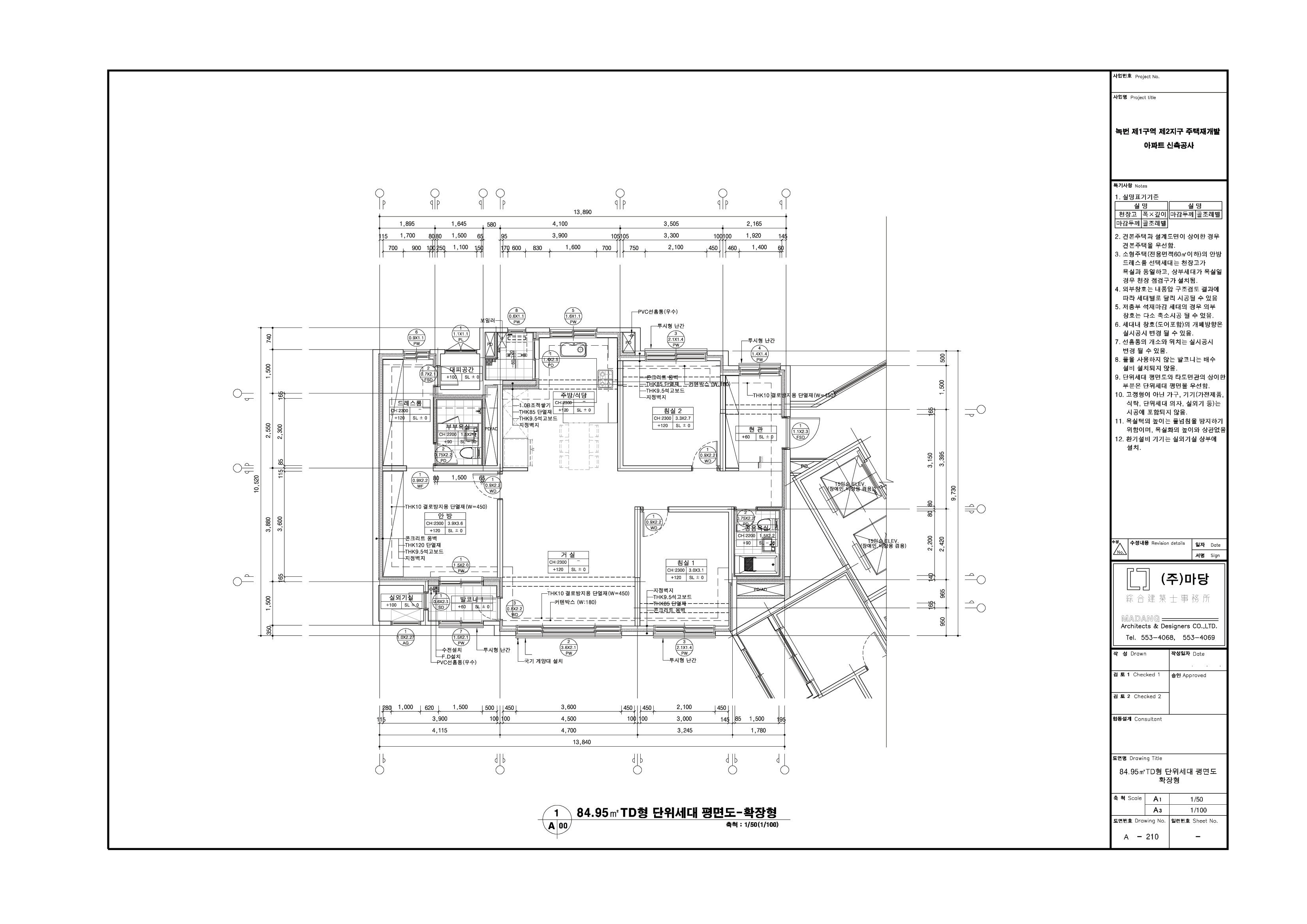
84.95TD-사업시행변경인가(안)

84.95TD-사업시행변경인가(안)
공급면적 (㎡) 164.76
사업시행인가(변경)일자 2013-11-28
형별 84.95TD
세대수 39
전용면적 (㎡) 84.95
공용면적 (㎡) 54.90

단위세대평면도 이미지

단위세대평면도 이미지

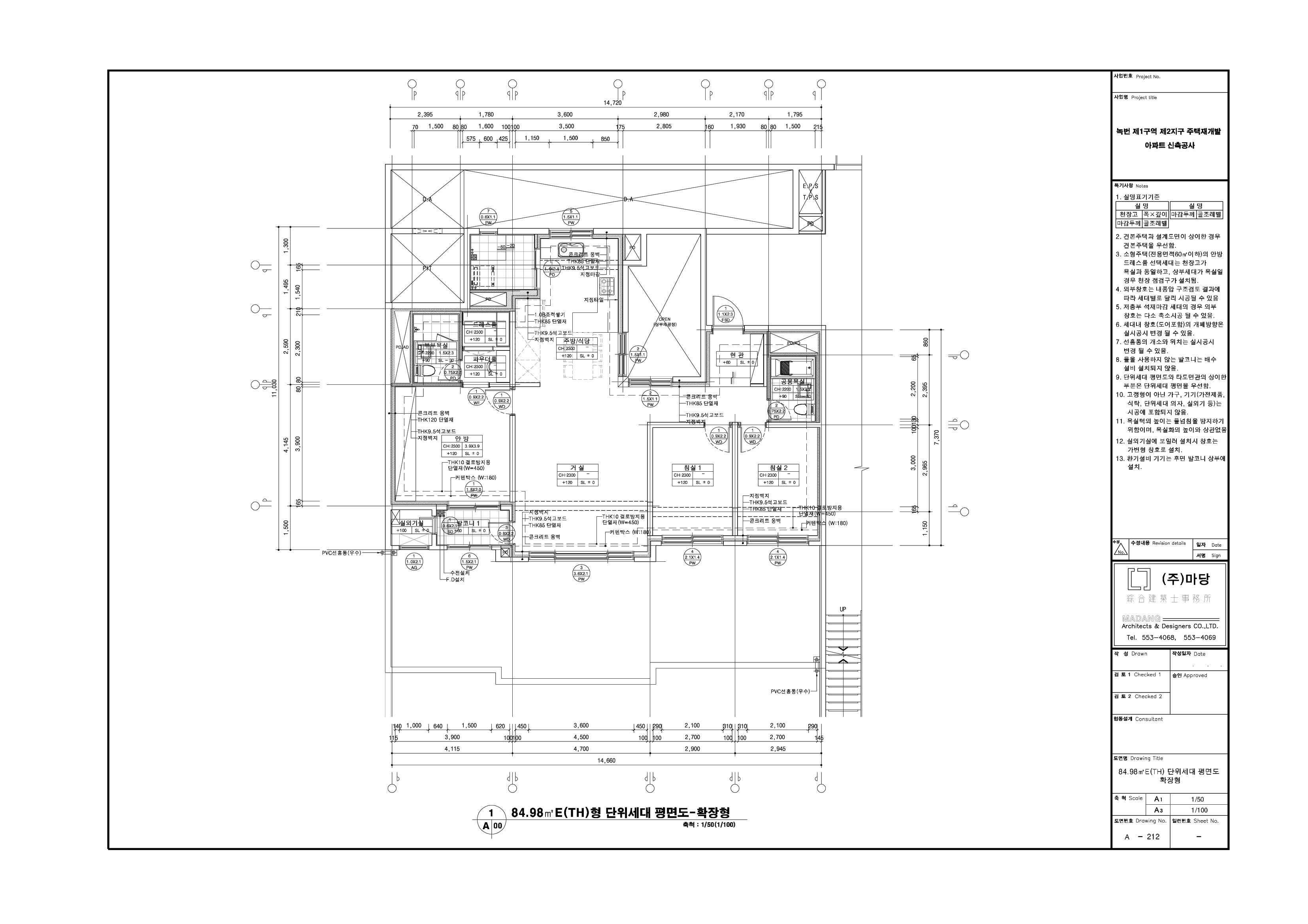
84.98E(TH)-사업시행변경인가(안)

84.98E(TH)-사업시행변경인가(안)
공급면적 (㎡) 189.62
사업시행인가(변경)일자 2013-11-28
형별 84.98E(TH)
세대수 4
전용면적 (㎡) 84.98
공용면적 (㎡) 54.91

단위세대평면도 이미지

단위세대평면도 이미지

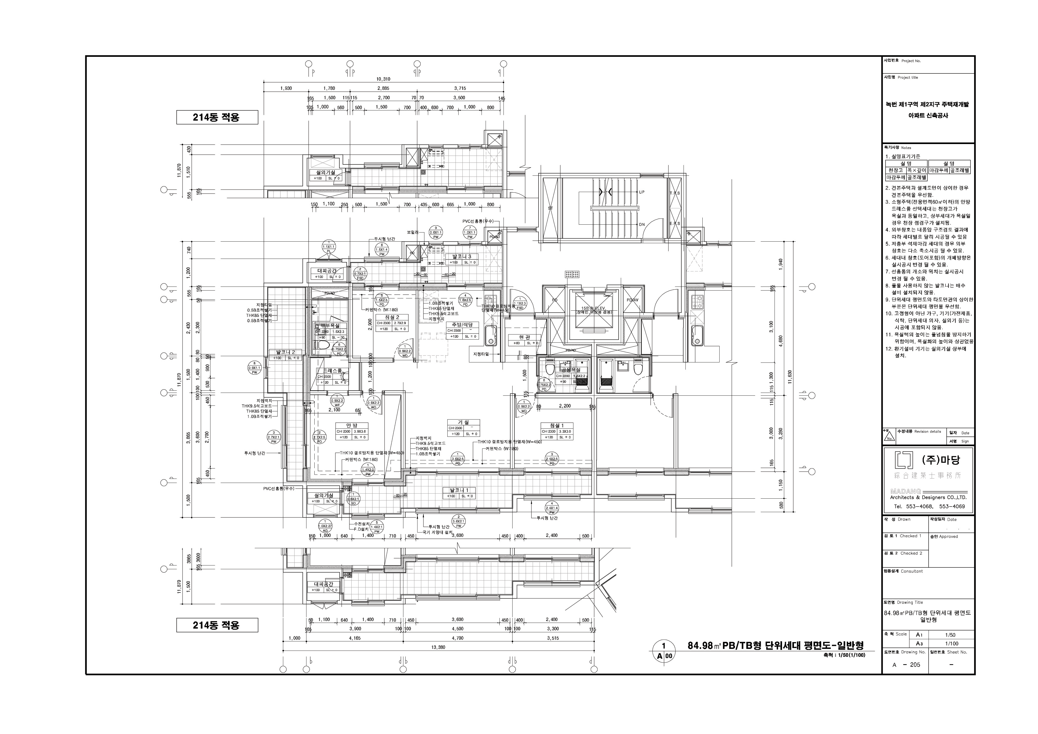
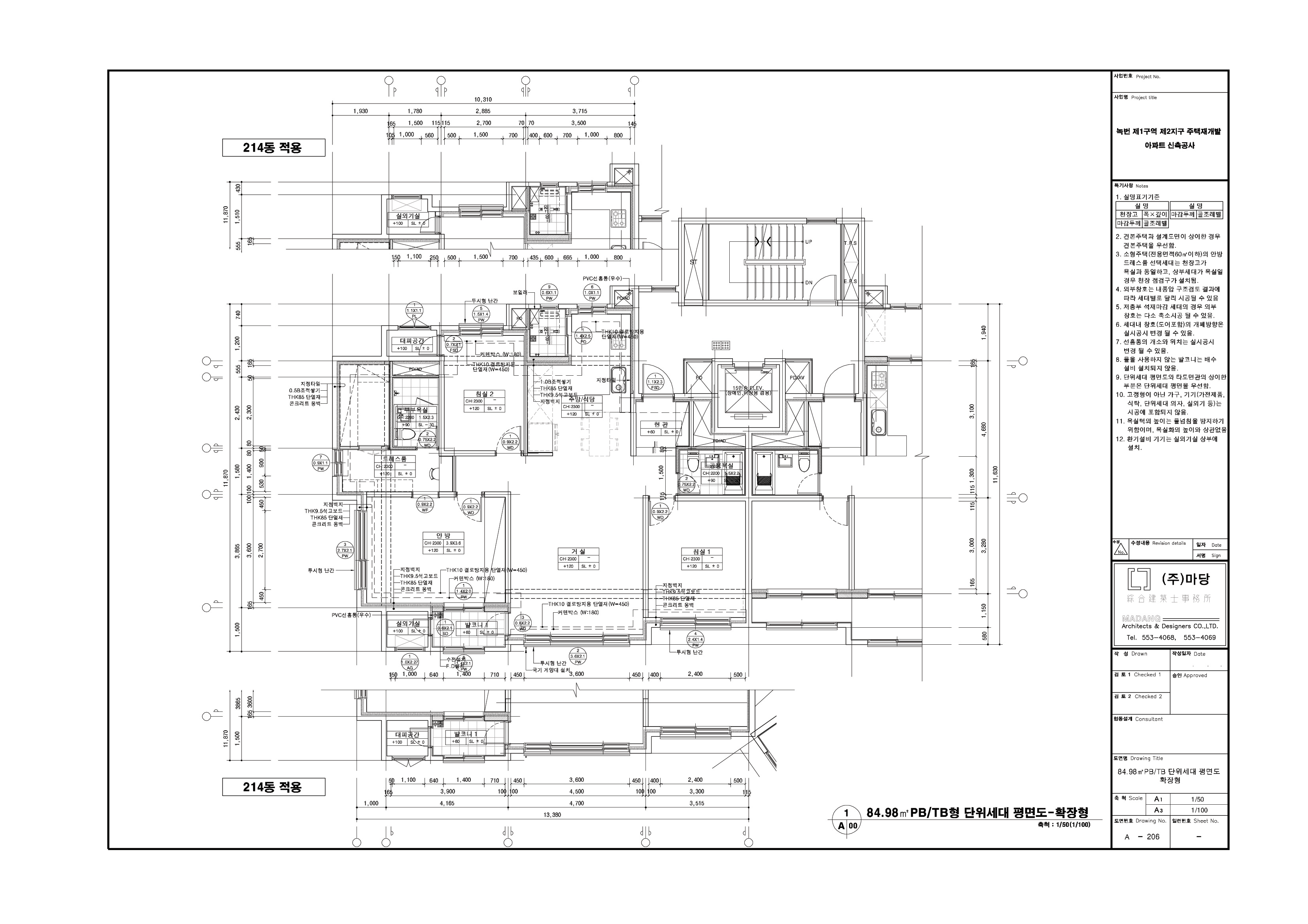
84.98PB.TB-사업시행변경인가(안)

84.98PB.TB-사업시행변경인가(안)
공급면적 (㎡) 168.92/174.30
사업시행인가(변경)일자 2013-11-28
형별 84.98PB.TB
세대수 76
전용면적 (㎡) 84.98
공용면적 (㎡) 54.91/54.91

단위세대평면도 이미지

단위세대평면도 이미지

근린생활시설 지상1층-사업시행변경인가(안)

근린생활시설 지상1층-사업시행변경인가(안)
공급면적 (㎡) 785.17
사업시행인가(변경)일자 2013-11-28
형별 판상형
세대수 14
전용면적 (㎡) 505.45
공용면적 (㎡) 296.16

단위세대평면도 이미지

근린생활시설 지하1층-사업시행변경인가(안)

근린생활시설 지하1층-사업시행변경인가(안)
공급면적 (㎡) 1,856.54
사업시행인가(변경)일자 2013-11-28
형별 판상형
세대수 8
전용면적 (㎡) 370.36
공용면적 (㎡) 216.98

단위세대평면도 이미지

사업추진 단계별
공개자료 조회

툴팁 아이콘
원하시는 사업 추진단계에 등록된 자료들을 조회해 보실 수 있습니다.