단위세대평면도
정비사업 추진과정을 유리알처럼 투명하게 공개

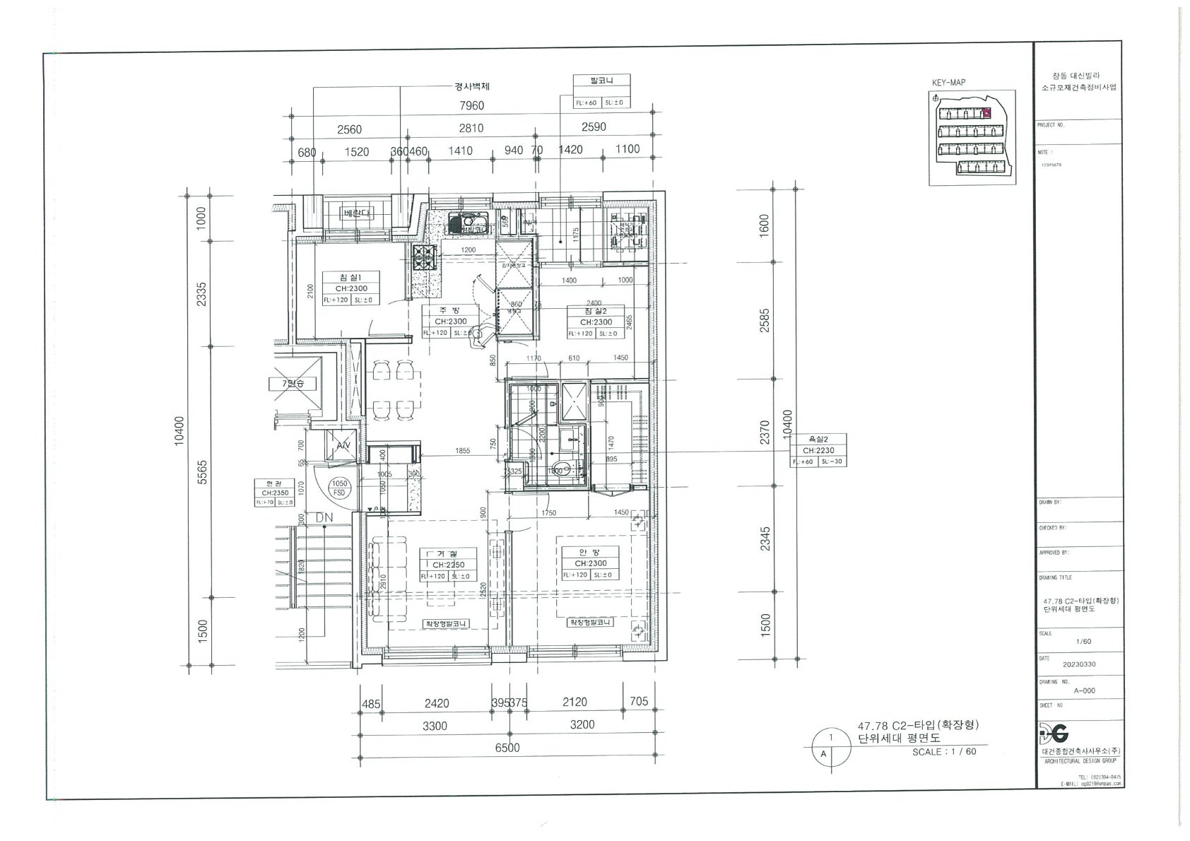
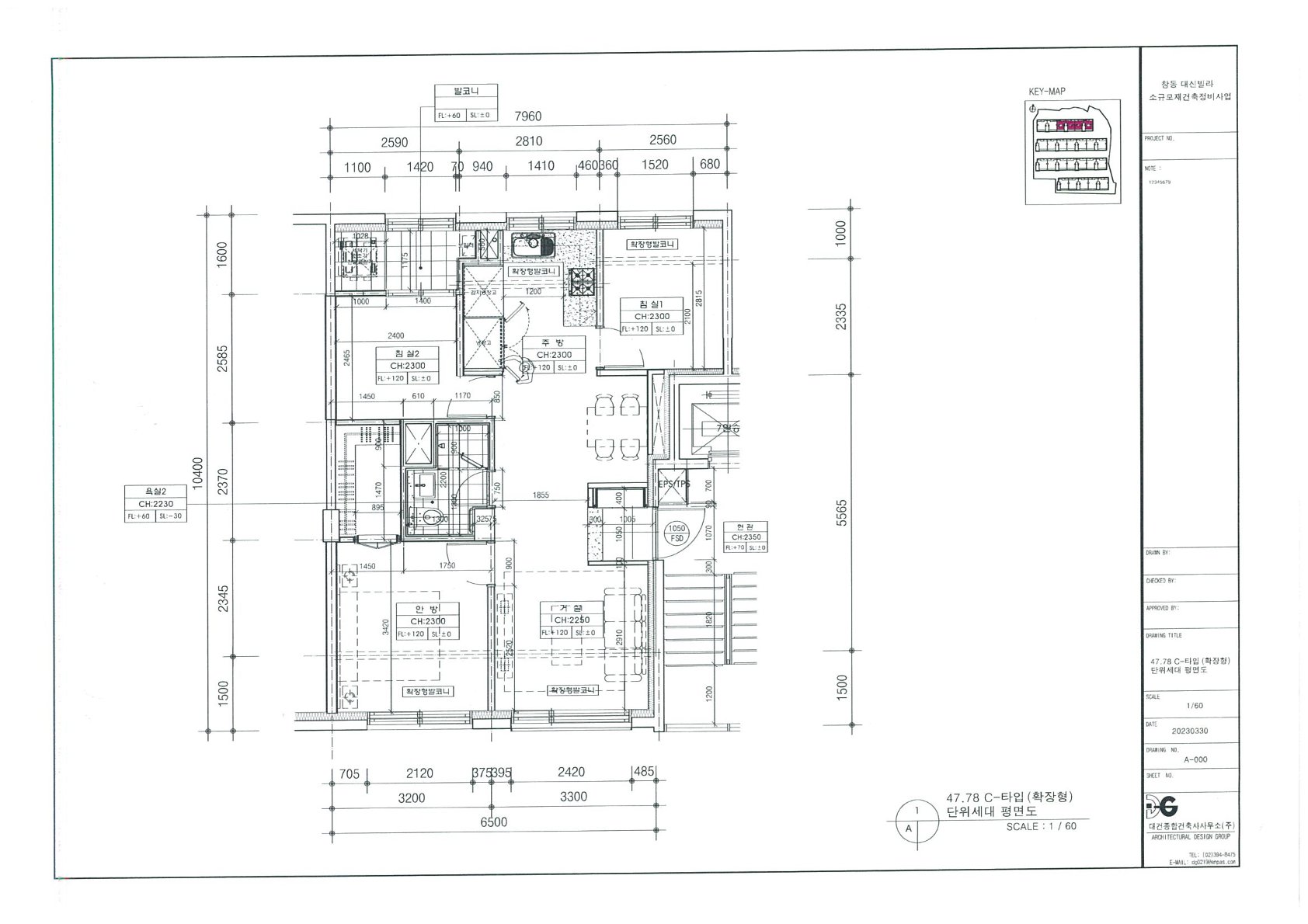
단위세대 C타입

단위세대 C타입
공급면적 (㎡) 62.751
사업시행인가(변경)일자 2025-04-10
형별 47.78C
세대수 18
전용면적 (㎡) 47.78
공용면적 (㎡) 14.971

단위세대평면도 이미지

단위세대평면도 이미지

단위세대평면도 이미지

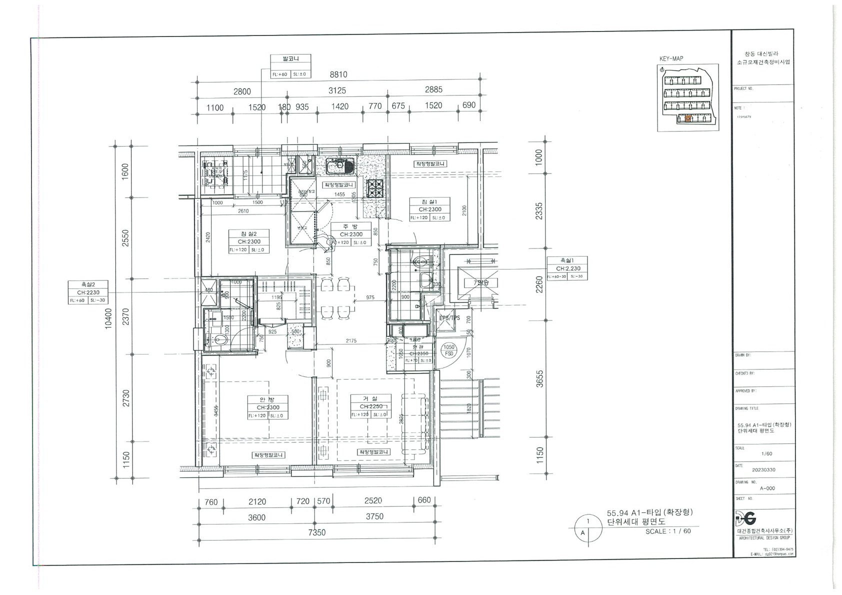
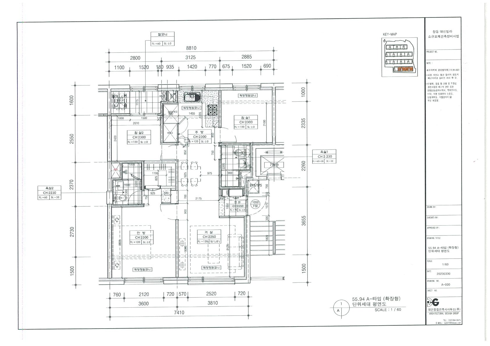
단위세대A 타입

단위세대A 타입
공급면적 (㎡) 73.117
사업시행인가(변경)일자 2025-04-10
형별 55.94
세대수 19
전용면적 (㎡) 55.94
공용면적 (㎡) 17.177

단위세대평면도 이미지

단위세대평면도 이미지

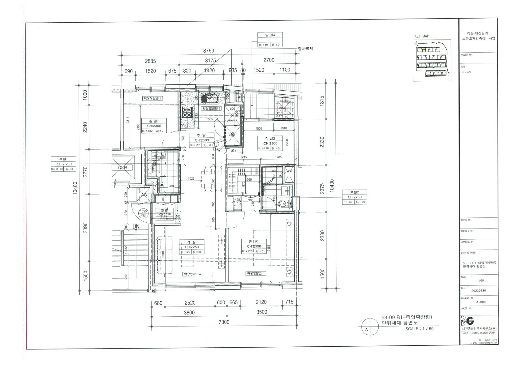
단위세대B 타입

단위세대B 타입
공급면적 (㎡) 69.467
사업시행인가(변경)일자 2025-04-10
형별 53.09B
세대수 84
전용면적 (㎡) 53.09
공용면적 (㎡) 16.377

단위세대평면도 이미지

단위세대평면도 이미지

사업추진 단계별
공개자료 조회

툴팁 아이콘
원하시는 사업 추진단계에 등록된 자료들을 조회해 보실 수 있습니다.