단위세대평면도
정비사업 추진과정을 유리알처럼 투명하게 공개

단위세대평면도[A타입:25.82평]

단위세대평면도[A타입:25.82평]
공급면적 (㎡) 85.35
사업시행인가(변경)일자 2025-03-13
형별 A타입 [25.82평]
세대수 5
전용면적 (㎡) 67.12
공용면적 (㎡) 18.23

단위세대평면도 이미지

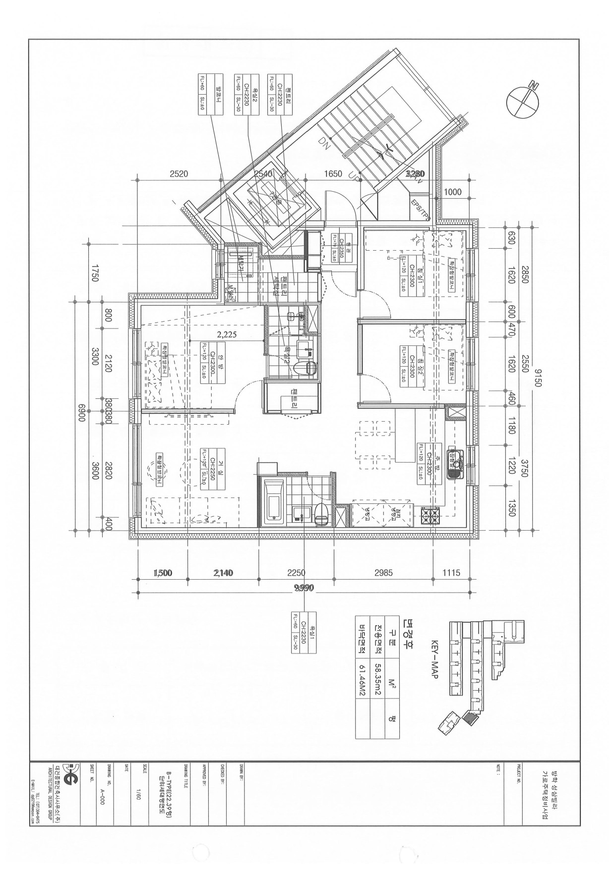
단위세대평면도[B타입:22.40평]

단위세대평면도[B타입:22.40평]
공급면적 (㎡) 74.04
사업시행인가(변경)일자 2025-03-13
형별 B타입 [22.40평]
세대수 5
전용면적 (㎡) 58.35
공용면적 (㎡) 15.69

단위세대평면도 이미지

단위세대평면도[C타입:21.64평]

단위세대평면도[C타입:21.64평]
공급면적 (㎡) 74.0471.55
사업시행인가(변경)일자 2025-03-13
형별 C타입 [21.64평]
세대수 5
전용면적 (㎡) 55.47
공용면적 (㎡) 16.08

단위세대평면도 이미지

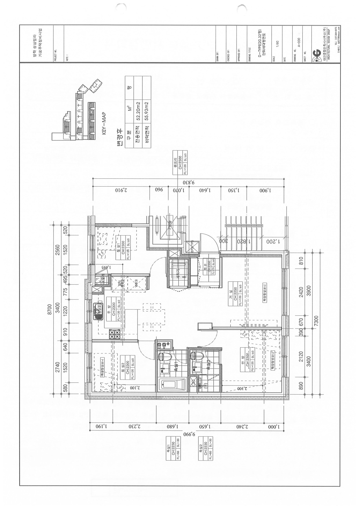
단위세대평면도[D타입:20.32평]

단위세대평면도[D타입:20.32평]
공급면적 (㎡) 67.19
사업시행인가(변경)일자 2025-03-13
형별 D타입 [20.32평]
세대수 50
전용면적 (㎡) 52.20
공용면적 (㎡) 14.99

단위세대평면도 이미지

단위세대평면도[E타입:18.96평]

단위세대평면도[E타입:18.96평]
공급면적 (㎡) 62.69
사업시행인가(변경)일자 2025-03-13
형별 E타입 [18.96평]
세대수 8
전용면적 (㎡) 48.25
공용면적 (㎡) 14.44

단위세대평면도 이미지

단위세대평면도[F타입:18.55평]

단위세대평면도[F타입:18.55평]
공급면적 (㎡) 61.34
사업시행인가(변경)일자 2025-03-13
형별 F타입 [18.55평]
세대수 37
전용면적 (㎡) 47.62
공용면적 (㎡) 13.72

단위세대평면도 이미지

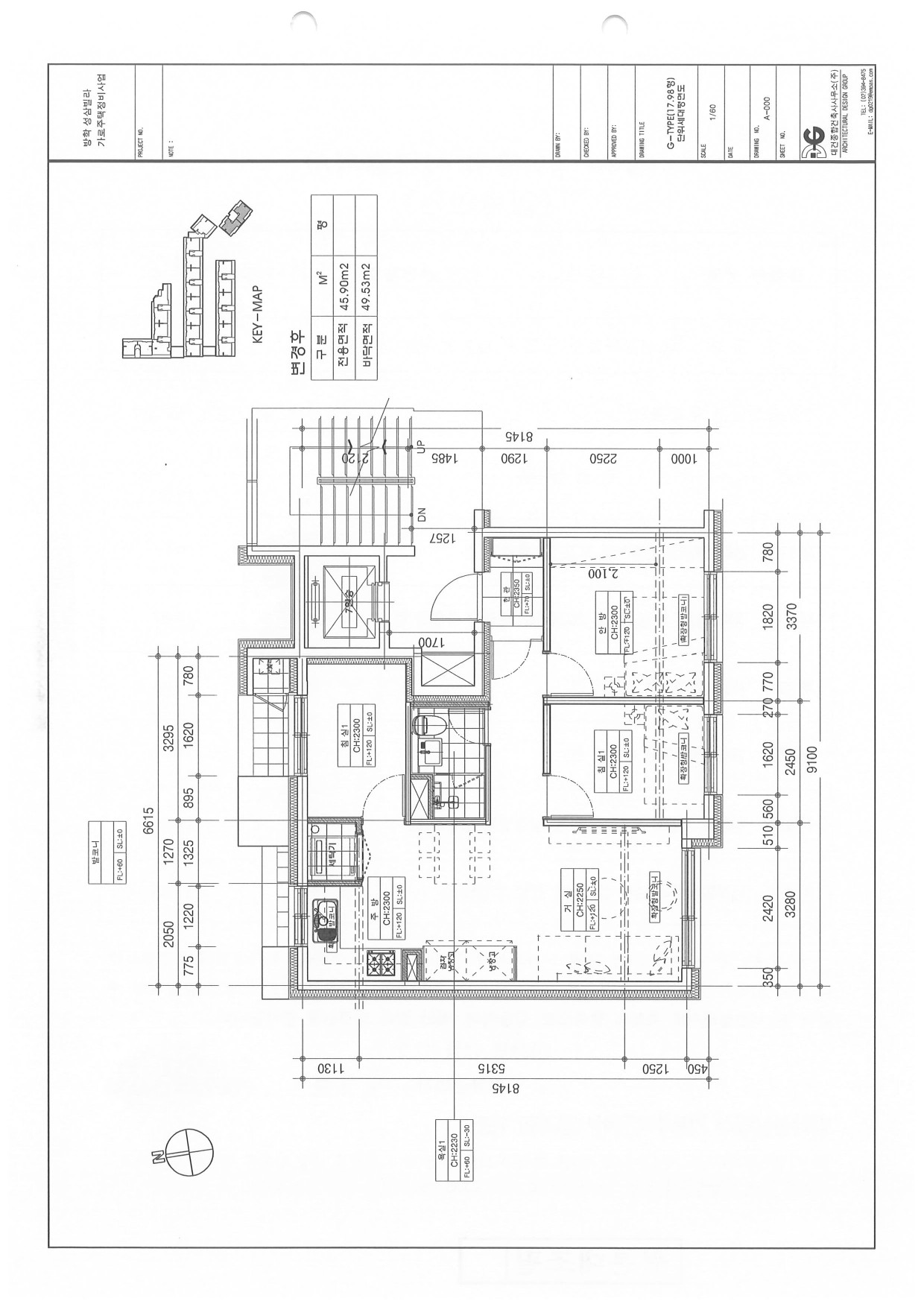
단위세대평면도[G타입:17.98평]

단위세대평면도[G타입:17.98평]
공급면적 (㎡) 59.43
사업시행인가(변경)일자 2025-03-13
형별 G타입 [17.98평]
세대수 2
전용면적 (㎡) 45.90
공용면적 (㎡) 13.53

단위세대평면도 이미지

단위세대평면도[H타입:16.38평]

단위세대평면도[H타입:16.38평]
공급면적 (㎡) 54.15
사업시행인가(변경)일자 2025-03-13
형별 H타입 [16.38평]
세대수 1
전용면적 (㎡) 41.51
공용면적 (㎡) 12.64

단위세대평면도 이미지

사업추진 단계별
공개자료 조회

툴팁 아이콘
원하시는 사업 추진단계에 등록된 자료들을 조회해 보실 수 있습니다.