단위세대평면도
정비사업 추진과정을 유리알처럼 투명하게 공개

성삼연립재건축정비사업

성삼연립재건축정비사업
공급면적 (㎡) 49.846
사업시행인가(변경)일자 2015-02-11
형별 15평형
세대수 12
전용면적 (㎡) 37.553
공용면적 (㎡) 12.293

단위세대평면도 이미지

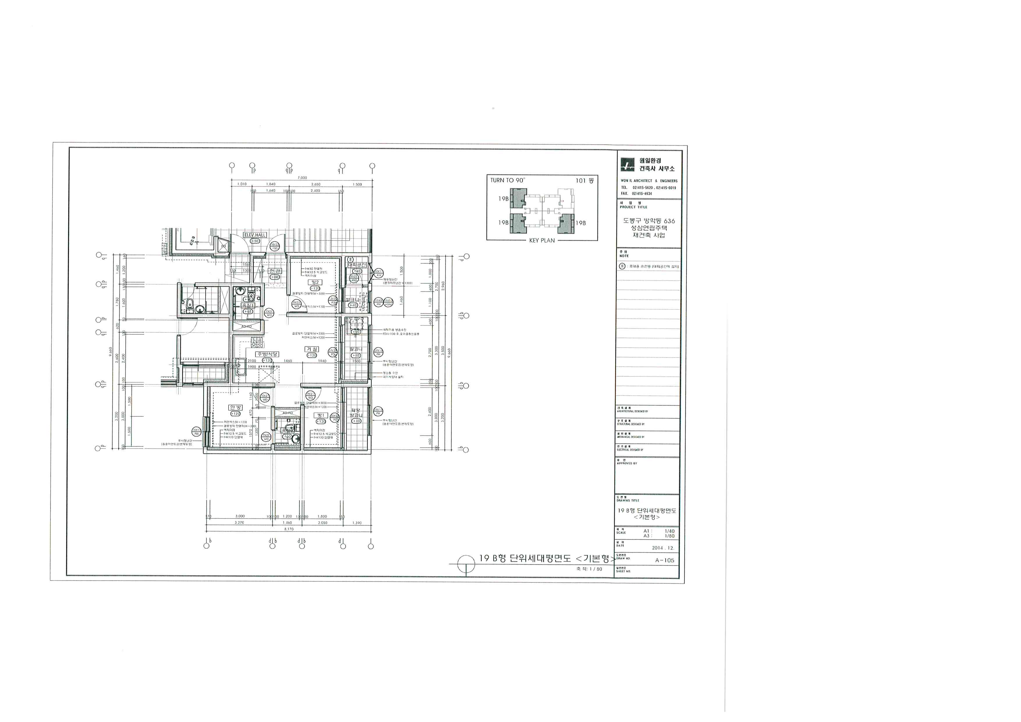
성삼연립재건축정비사업

성삼연립재건축정비사업
공급면적 (㎡) 64.222
사업시행인가(변경)일자 2015-02-11
형별 19평B형
세대수 20
전용면적 (㎡) 49.126
공용면적 (㎡) 15.096

단위세대평면도 이미지

성삼연립재건축정비사업

성삼연립재건축정비사업
공급면적 (㎡) 64.291
사업시행인가(변경)일자 2015-02-11
형별 19평A형
세대수 6
전용면적 (㎡) 49.167
공용면적 (㎡) 15.124

단위세대평면도 이미지

성삼연립재건축정비사업

성삼연립재건축정비사업
공급면적 (㎡) 66.790
사업시행인가(변경)일자 2015-02-11
형별 20평A형
세대수 22
전용면적 (㎡) 51.021
공용면적 (㎡) 15.769

단위세대평면도 이미지

성삼연립재건축정비사업

성삼연립재건축정비사업
공급면적 (㎡) 66.674
사업시행인가(변경)일자 2015-02-11
형별 20평B형
세대수 12
전용면적 (㎡) 51.001
공용면적 (㎡) 15.673

단위세대평면도 이미지

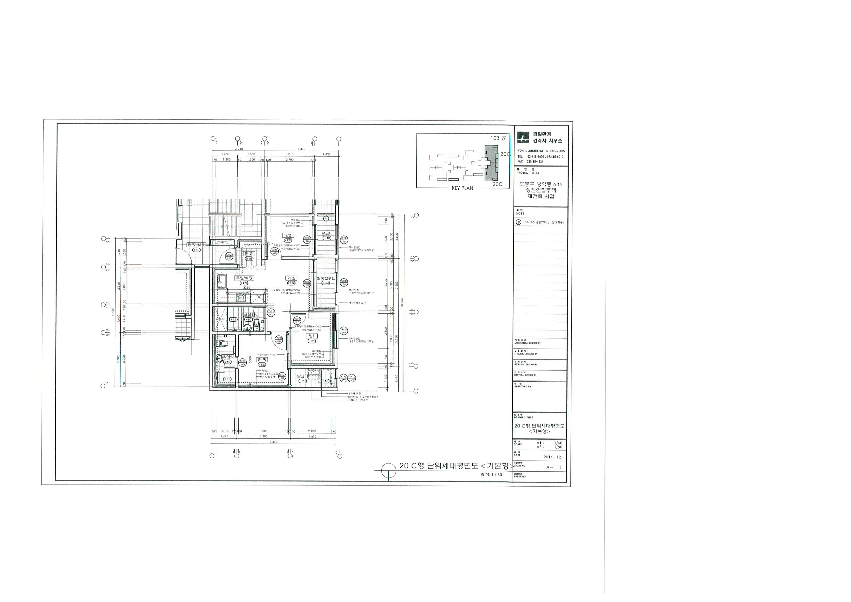
성삼연립재건축정비사업

성삼연립재건축정비사업
공급면적 (㎡) 67.078
사업시행인가(변경)일자 2015-02-11
형별 20평C형
세대수 12
전용면적 (㎡) 51.257
공용면적 (㎡) 15.821

단위세대평면도 이미지

성삼연립재건축정비사업

성삼연립재건축정비사업
공급면적 (㎡) 67.358
사업시행인가(변경)일자 2015-02-11
형별 20평D형
세대수 26
전용면적 (㎡) 51.867
공용면적 (㎡) 15.491

단위세대평면도 이미지

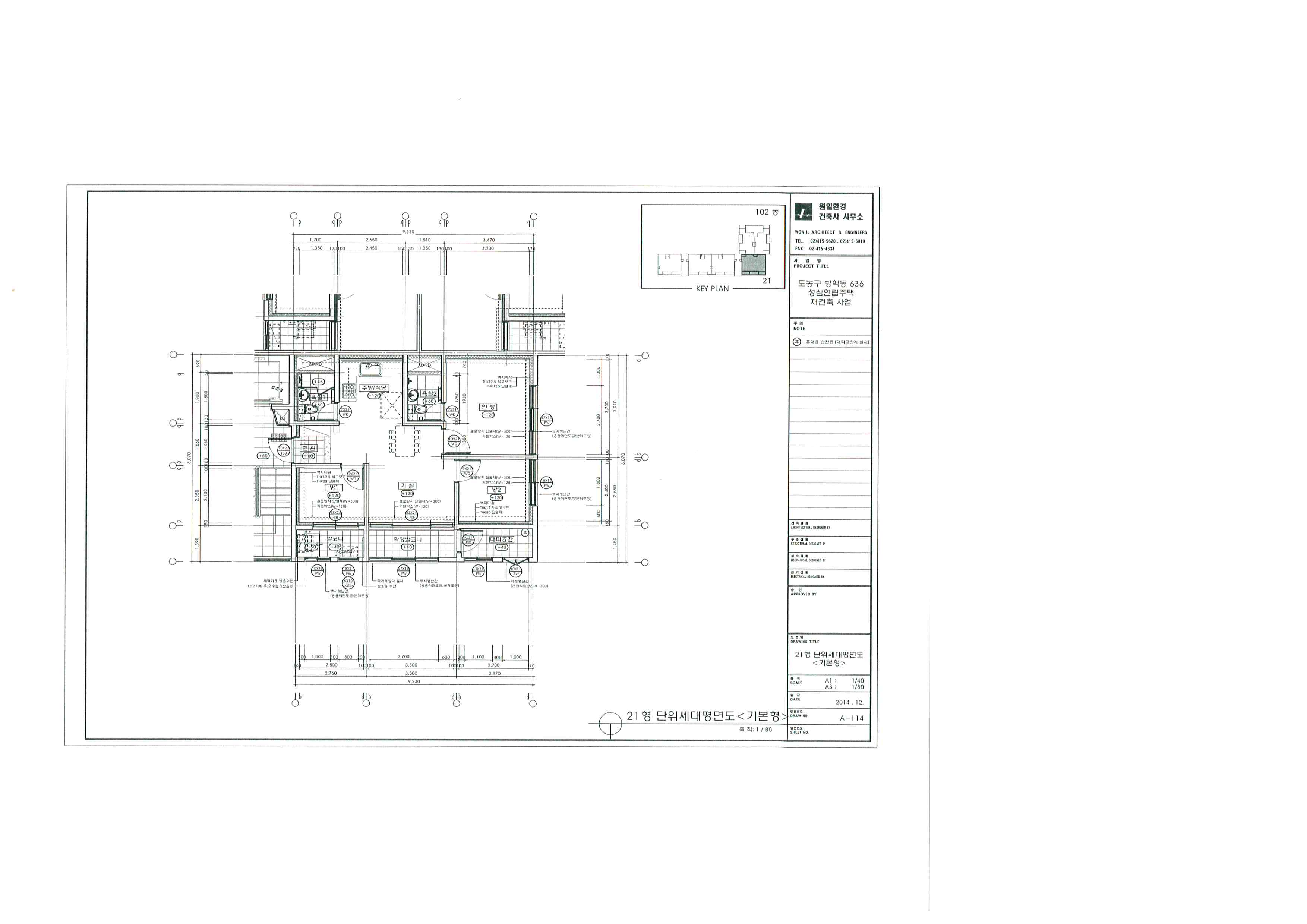
성삼연립재건축정비사업

성삼연립재건축정비사업
공급면적 (㎡) 70.703
사업시행인가(변경)일자 2015-02-11
형별 21평형
세대수 6
전용면적 (㎡) 54.564
공용면적 (㎡) 16.139

단위세대평면도 이미지

성삼연립재건축정비사업

성삼연립재건축정비사업
공급면적 (㎡) 73.040
사업시행인가(변경)일자 2015-02-11
형별 22평형
세대수 18
전용면적 (㎡) 55.539
공용면적 (㎡) 16.501

단위세대평면도 이미지

사업추진 단계별
공개자료 조회

툴팁 아이콘
원하시는 사업 추진단계에 등록된 자료들을 조회해 보실 수 있습니다.