단위세대평면도
정비사업 추진과정을 유리알처럼 투명하게 공개

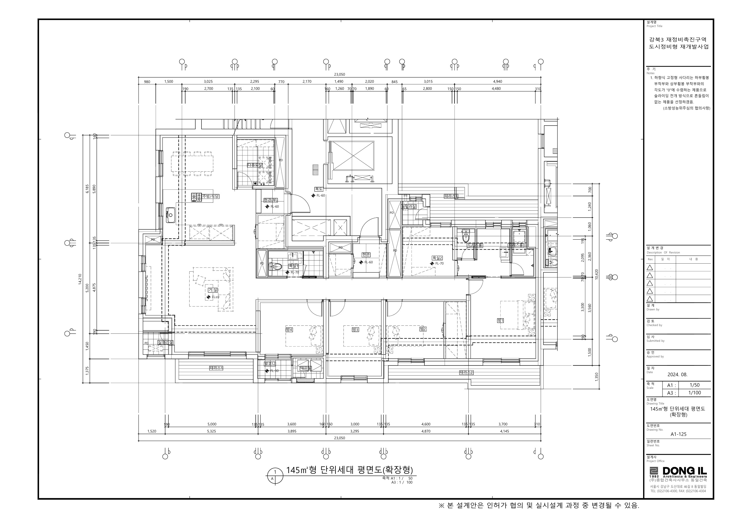
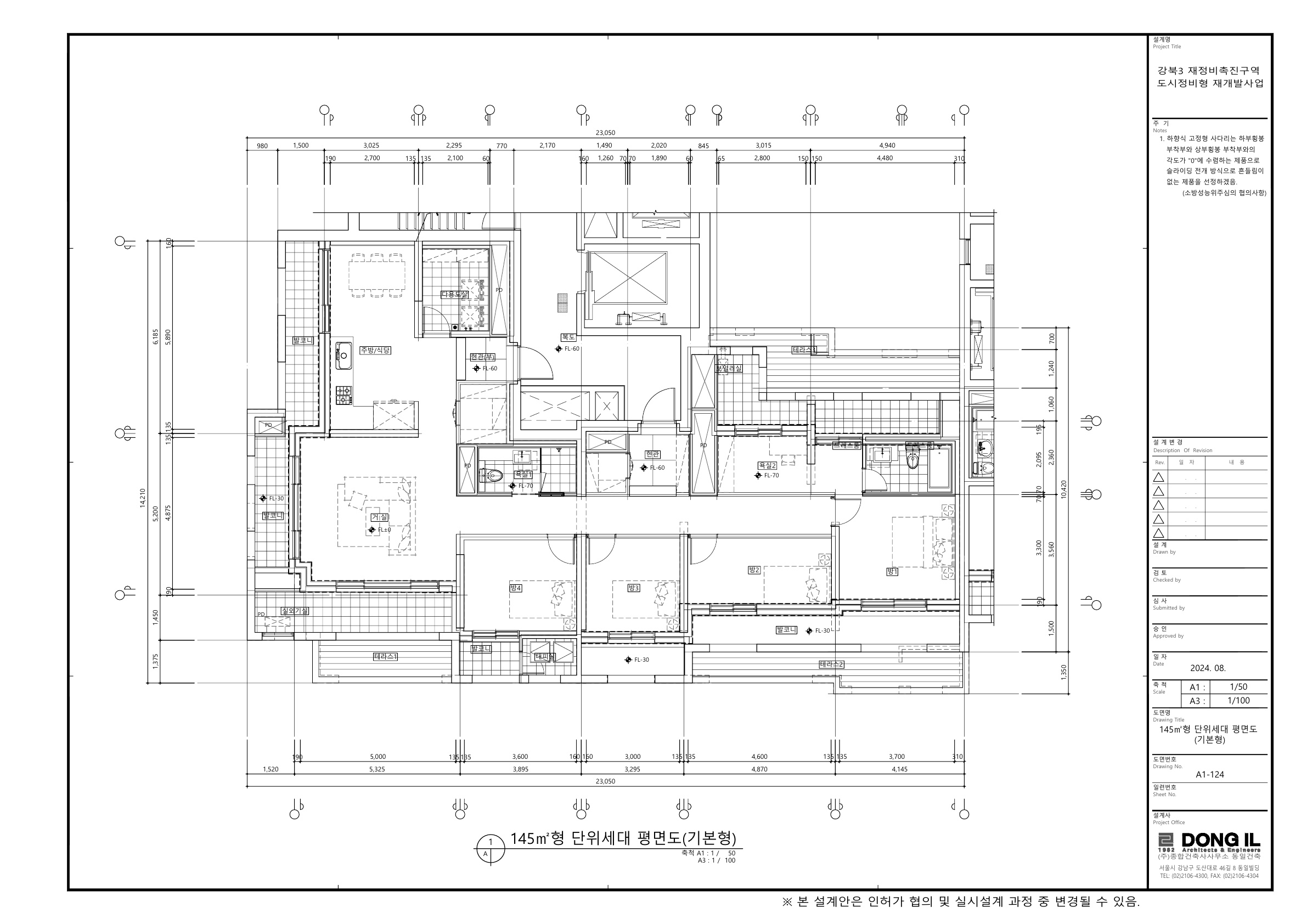
145형 단위세대 평면도

145형 단위세대 평면도
공급면적 (㎡) 204.8068
사업시행인가(변경)일자 2024-10-18
형별 145형
세대수 2
전용면적 (㎡) 145.9271
공용면적 (㎡) 58.8797

단위세대평면도 이미지

단위세대평면도 이미지

39형 단위세대 평면도

39형 단위세대 평면도
공급면적 (㎡) 56.404
사업시행인가(변경)일자 2024-10-18
형별 39A
세대수 54
전용면적 (㎡) 39.9156
공용면적 (㎡) 16.4884

단위세대평면도 이미지

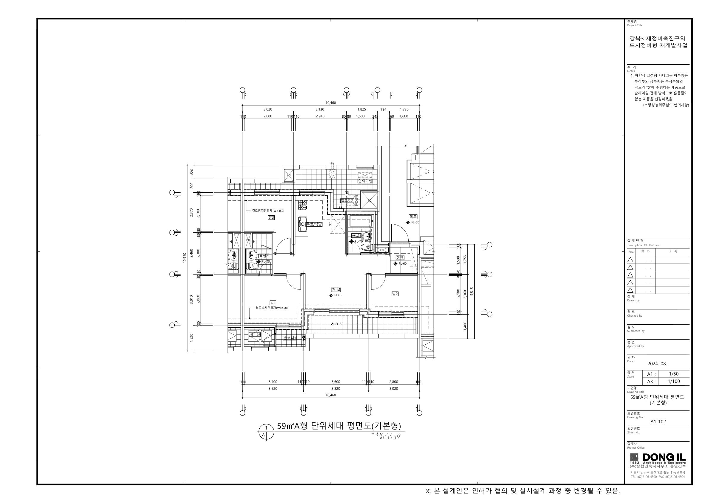
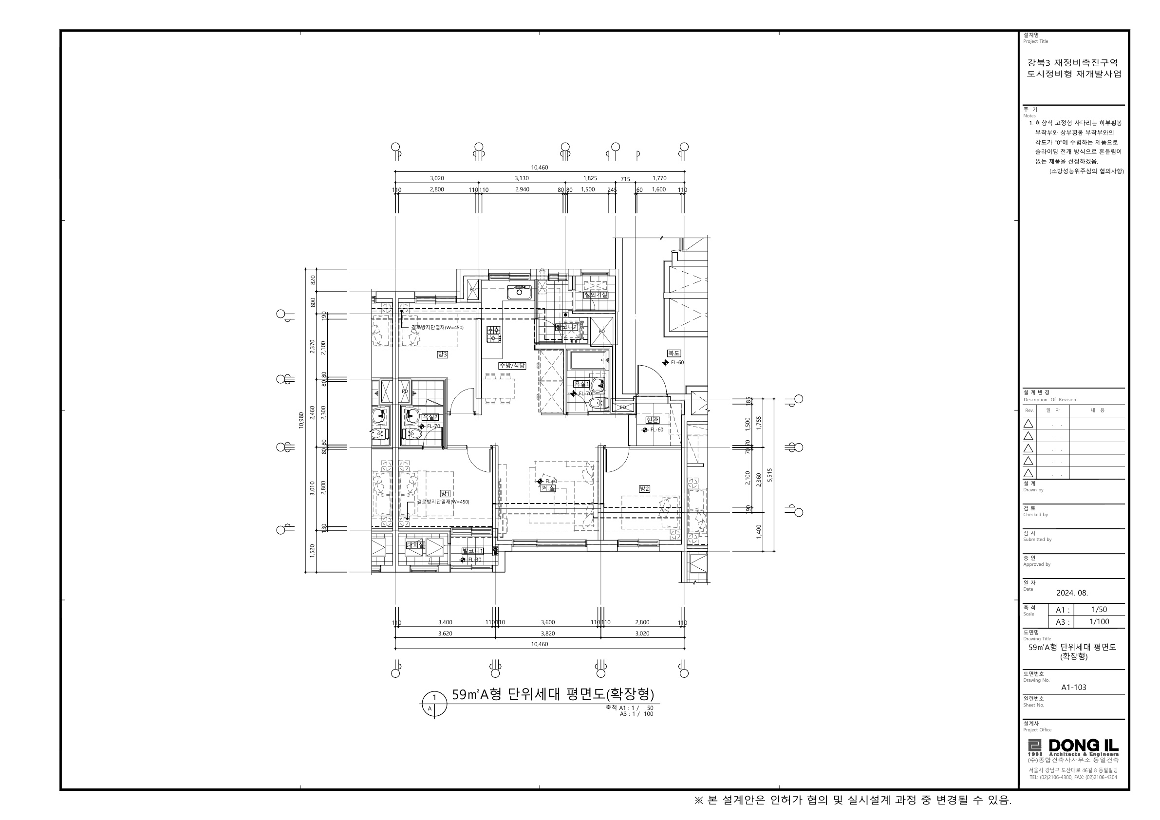
59 A형 단위세대 평면도

59 A형 단위세대 평면도
공급면적 (㎡) 84.7933
사업시행인가(변경)일자 2024-10-18
형별 59A형
세대수 108
전용면적 (㎡) 59.9319
공용면적 (㎡) 24.8614

단위세대평면도 이미지

단위세대평면도 이미지

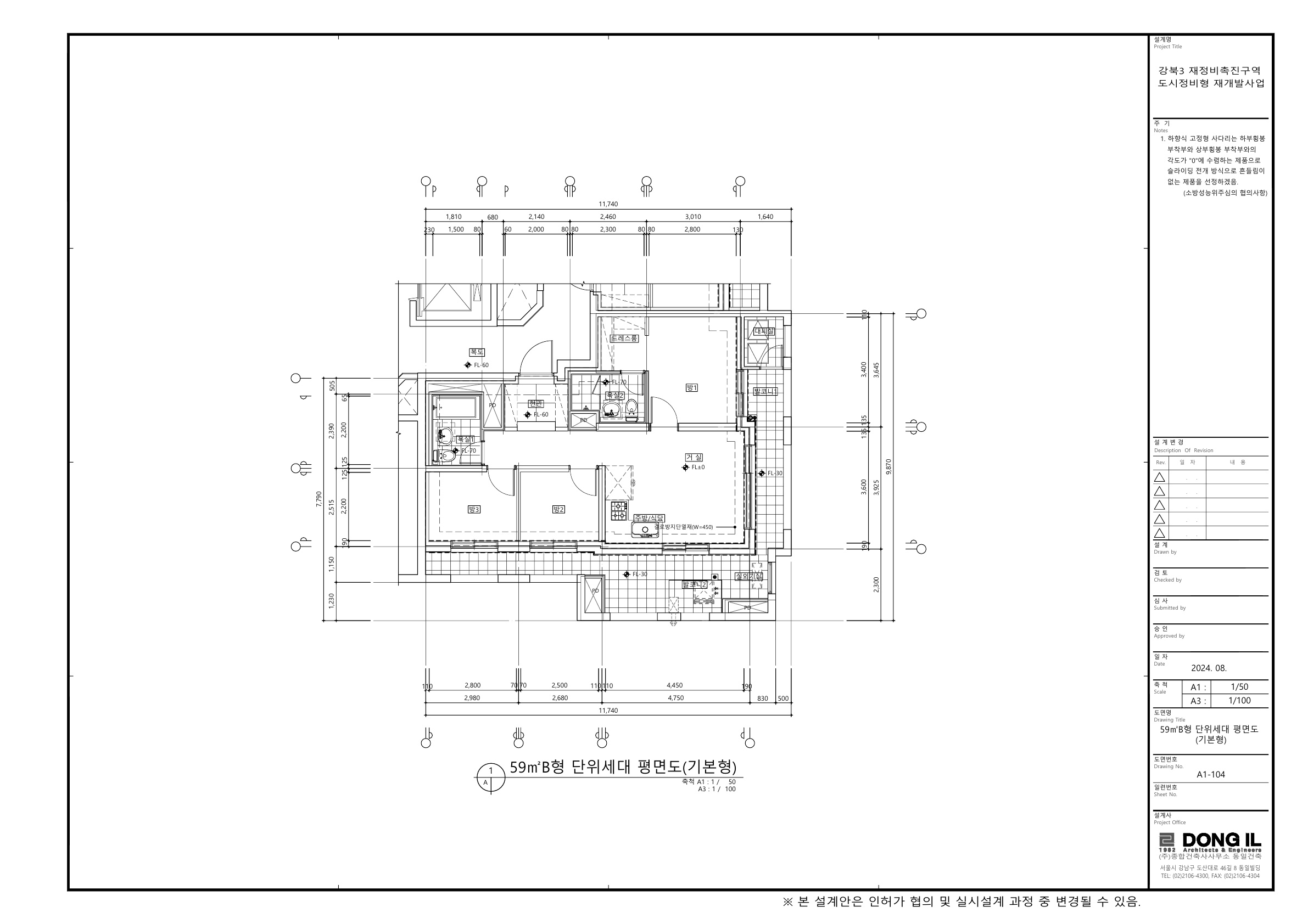
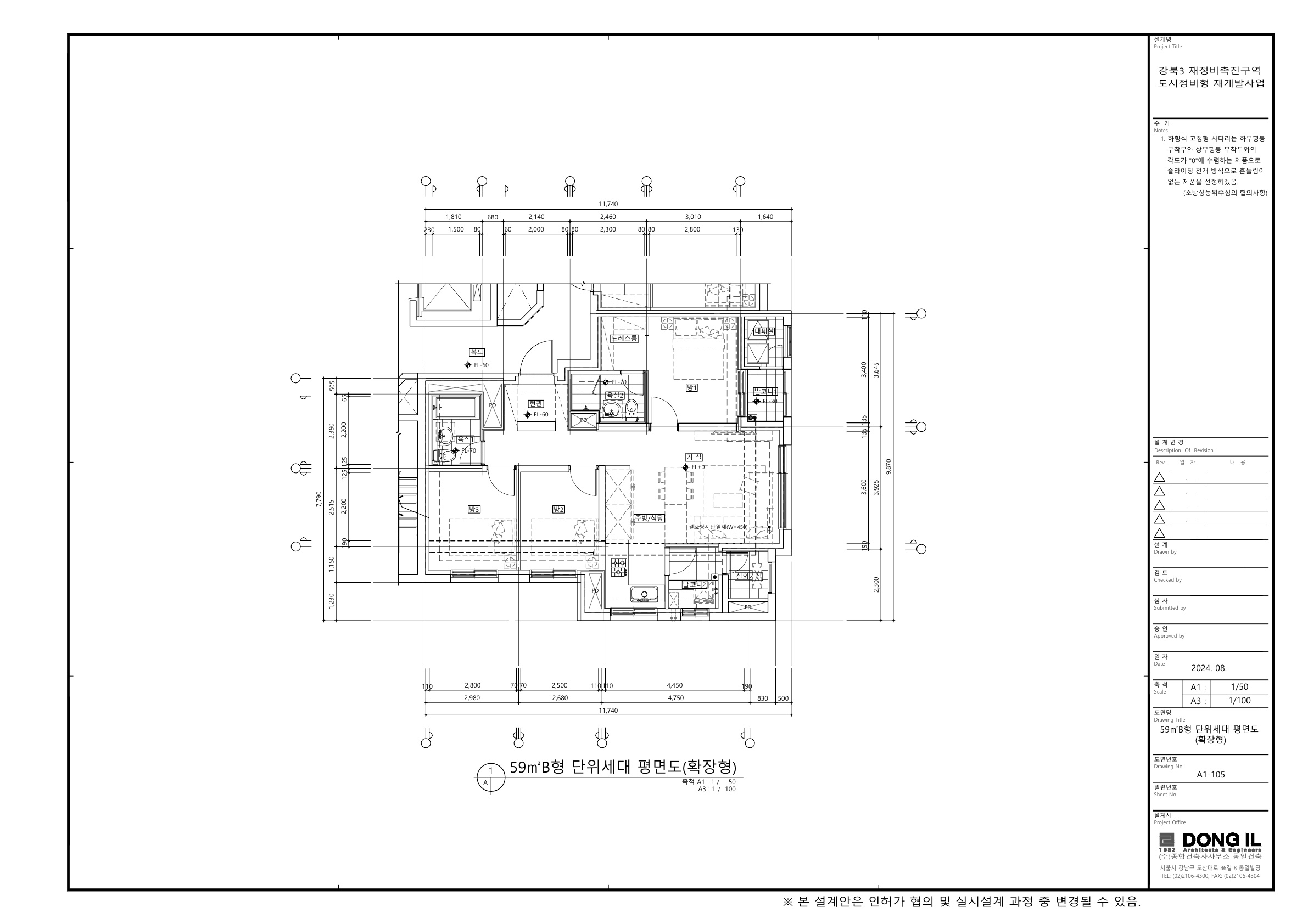
59 B형 단위세대 평면도

59 B형 단위세대 평면도
공급면적 (㎡) 85.0019
사업시행인가(변경)일자 2024-10-18
형별 59B형
세대수 106
전용면적 (㎡) 59.9759
공용면적 (㎡) 25.026

단위세대평면도 이미지

단위세대평면도 이미지

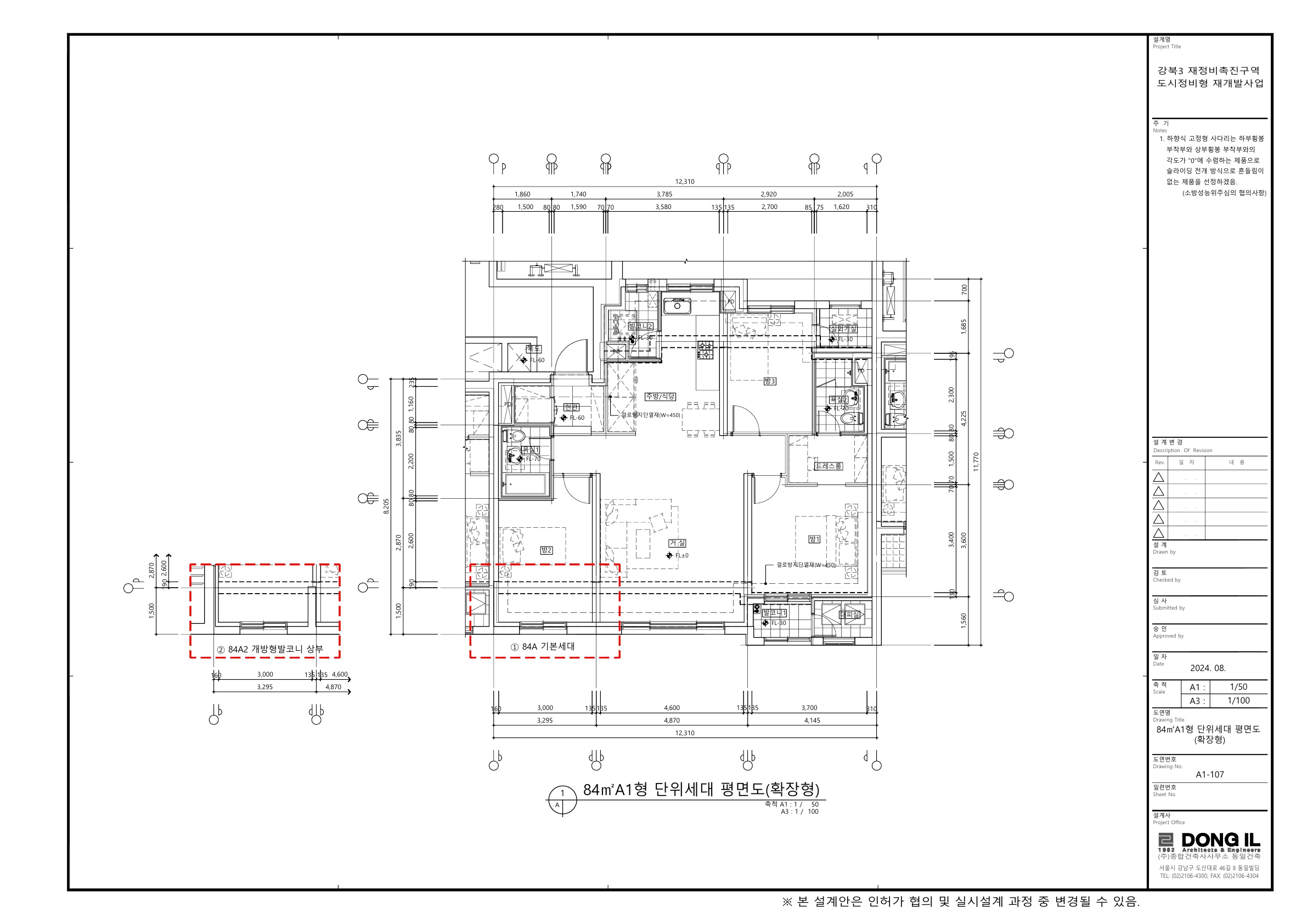
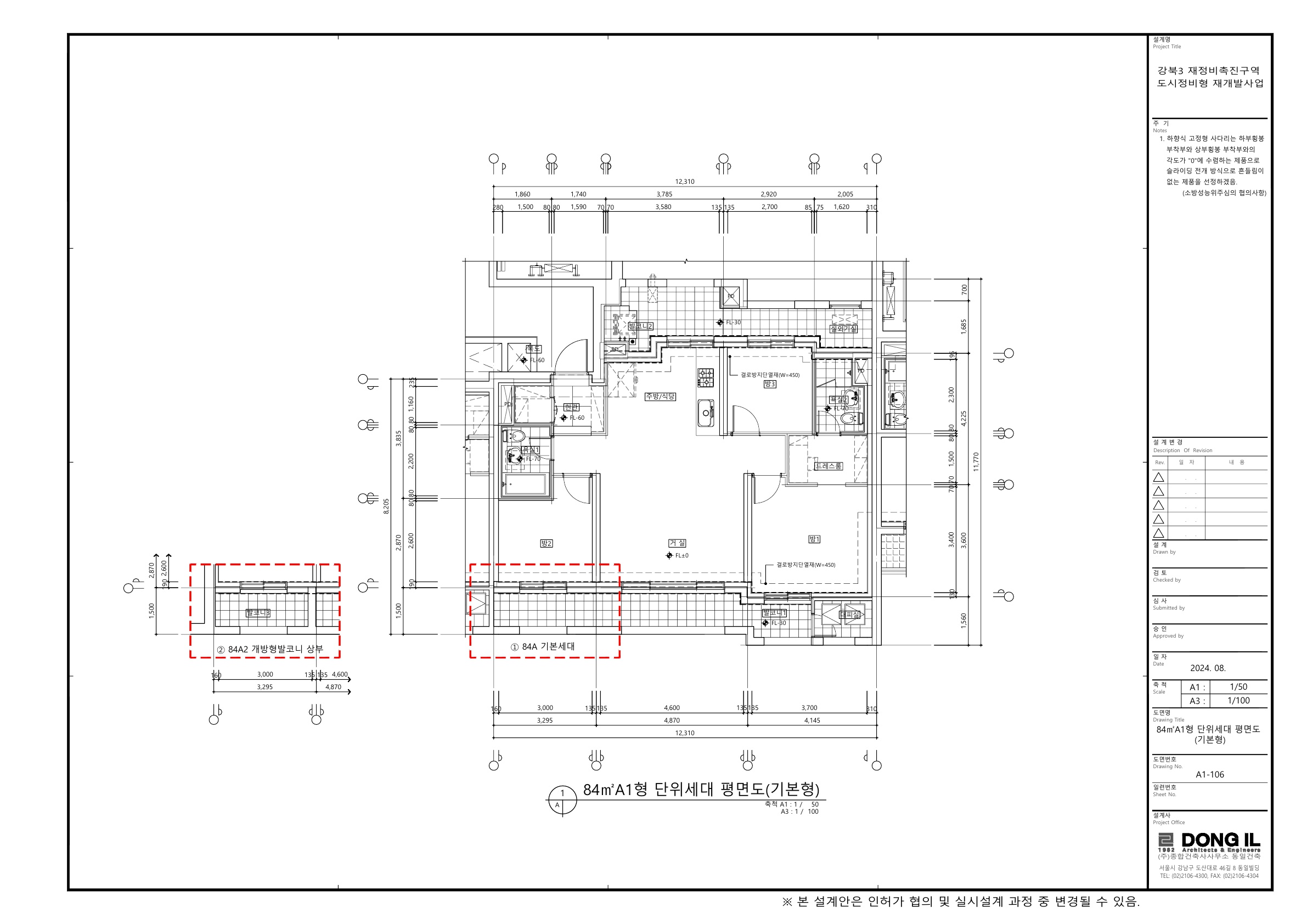
84 A1형 단위세대 평면도

84 A1형 단위세대 평면도
공급면적 (㎡) 118.5337
사업시행인가(변경)일자 2024-10-18
형별 84 A1형
세대수 182
전용면적 (㎡) 84.6669
공용면적 (㎡) 33.8668

단위세대평면도 이미지

단위세대평면도 이미지

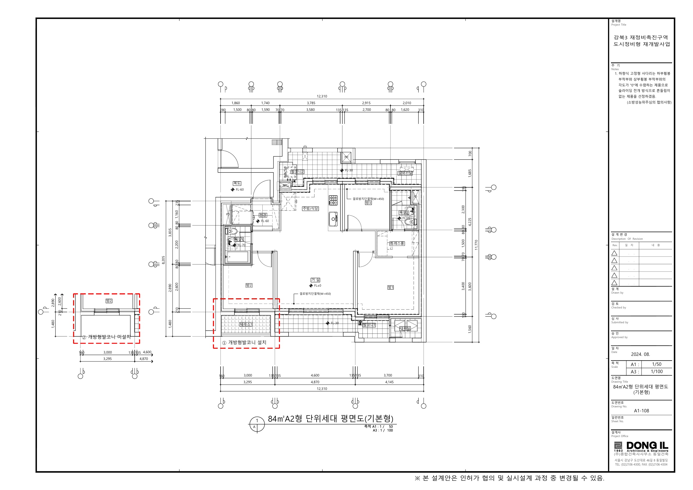
84 A2형 단위세대 평면도

84 A2형 단위세대 평면도
공급면적 (㎡) 118.5996
사업시행인가(변경)일자 2024-10-18
형별 84 A2형
세대수 34
전용면적 (㎡) 84.6669
공용면적 (㎡) 33.9327

단위세대평면도 이미지

단위세대평면도 이미지

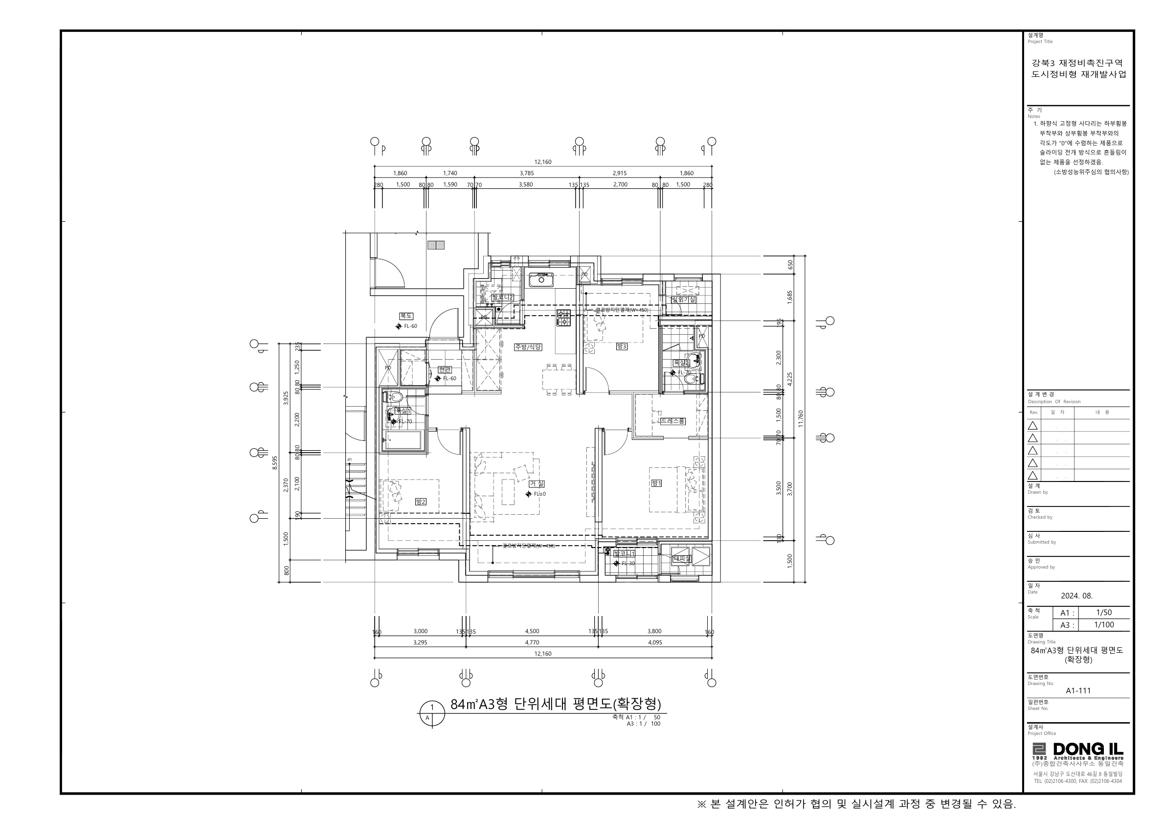
84 A3형 단위세대 평면도

84 A3형 단위세대 평면도
공급면적 (㎡) 118.8920
사업시행인가(변경)일자 2024-10-18
형별 84 A3형
세대수 24
전용면적 (㎡) 84.9634
공용면적 (㎡) 33.9286

단위세대평면도 이미지

단위세대평면도 이미지

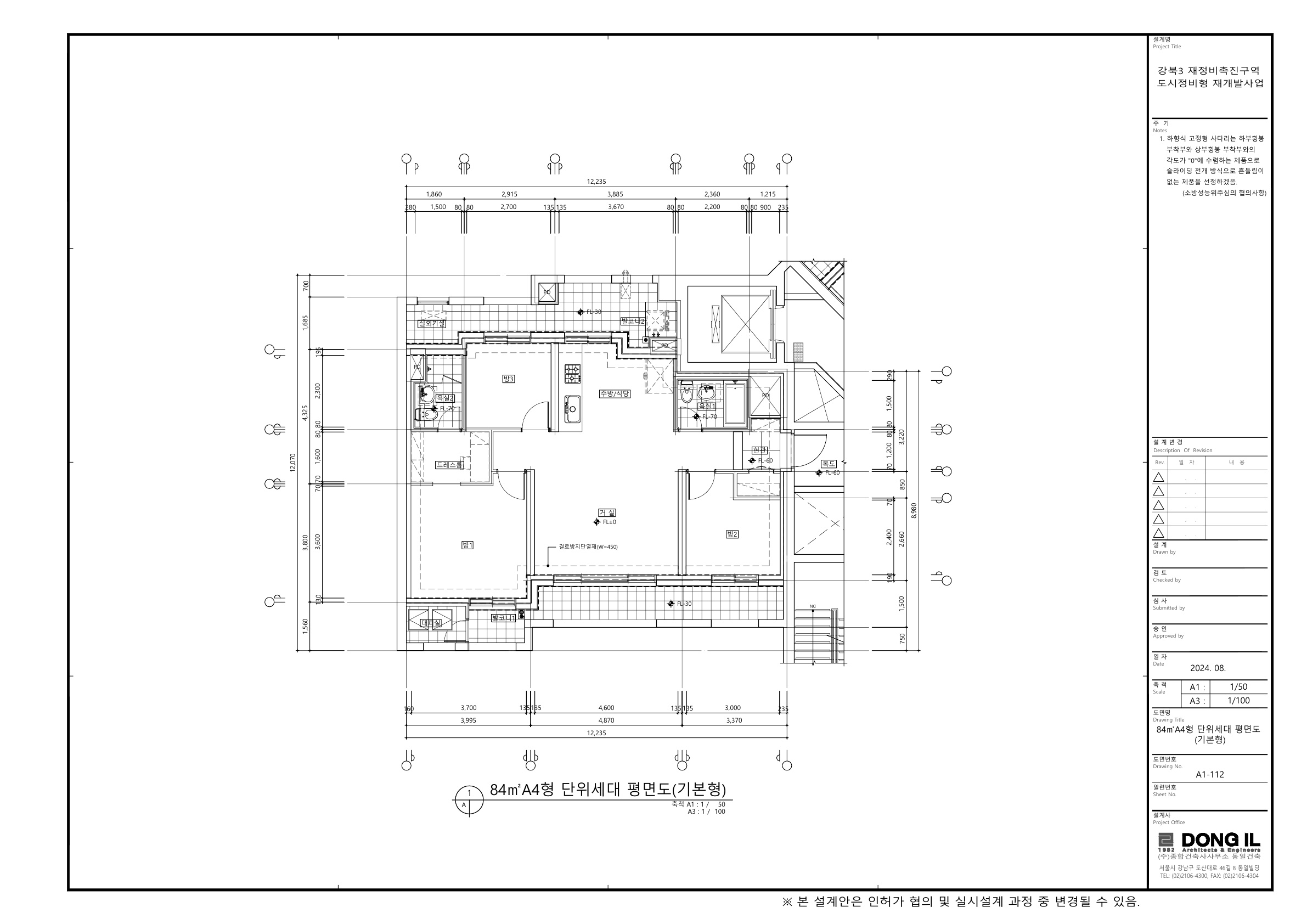
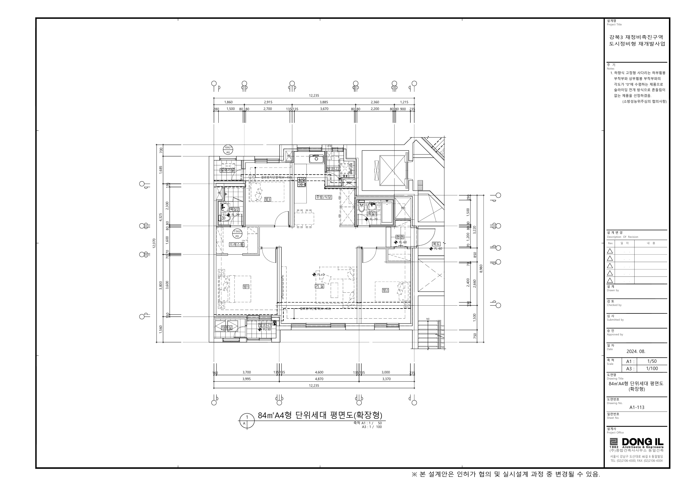
84 A4형 단위세대 평면도

84 A4형 단위세대 평면도
공급면적 (㎡) 119.1230
사업시행인가(변경)일자 2024-10-18
형별 84 A4
세대수 58
전용면적 (㎡) 84.9492
공용면적 (㎡) 34.1738

단위세대평면도 이미지

단위세대평면도 이미지

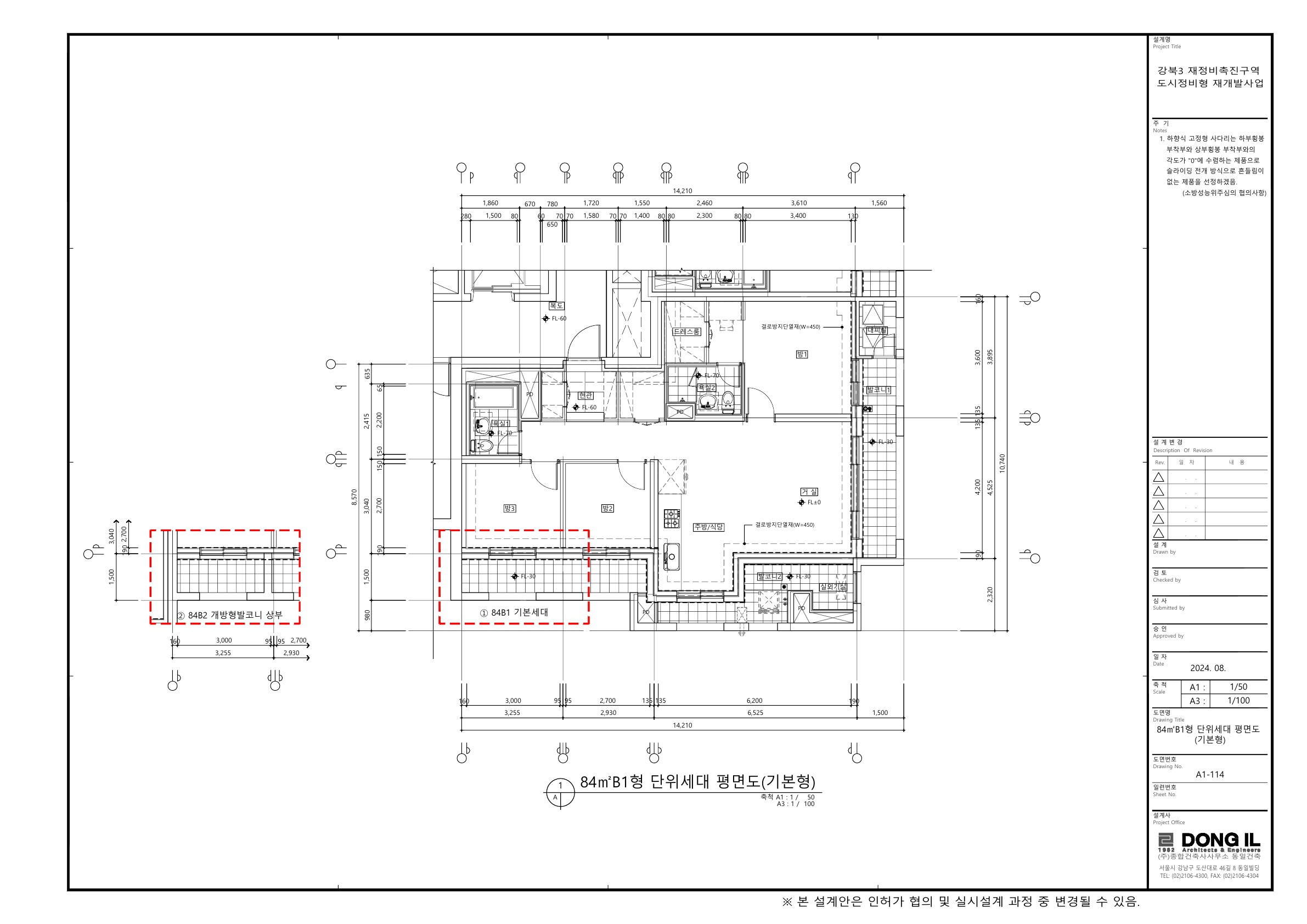
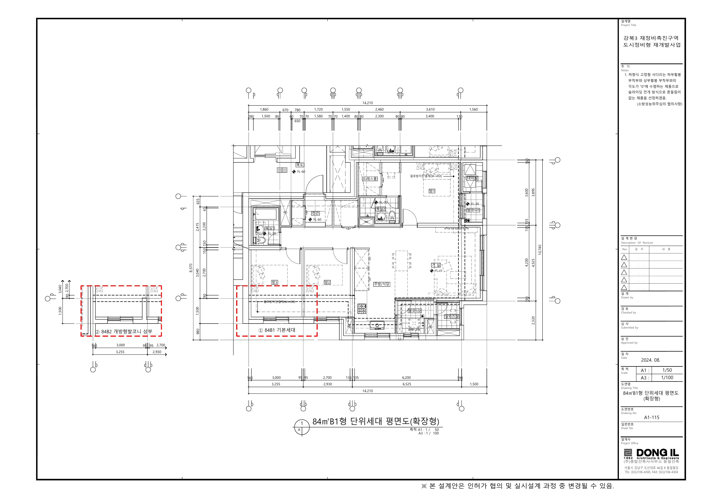
84 B1형 단위세대 평면도

84 B1형 단위세대 평면도
공급면적 (㎡) 119.5789
사업시행인가(변경)일자 2024-10-18
형별 84 B1형
세대수 247
전용면적 (㎡) 84.5950
공용면적 (㎡) 34.9839

단위세대평면도 이미지

단위세대평면도 이미지

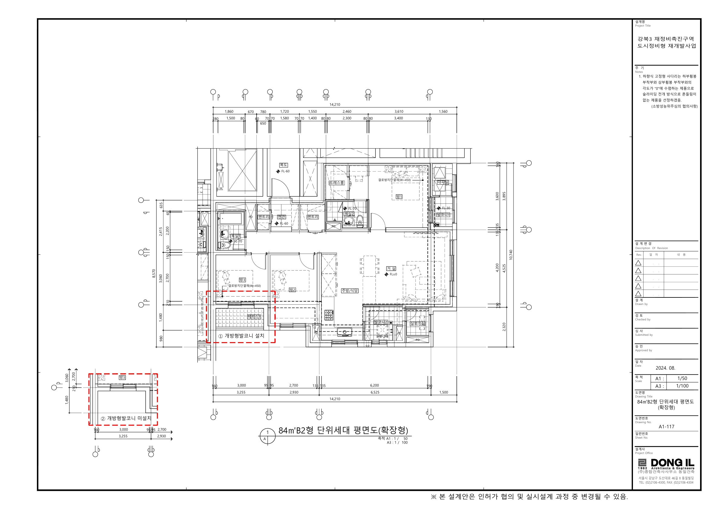
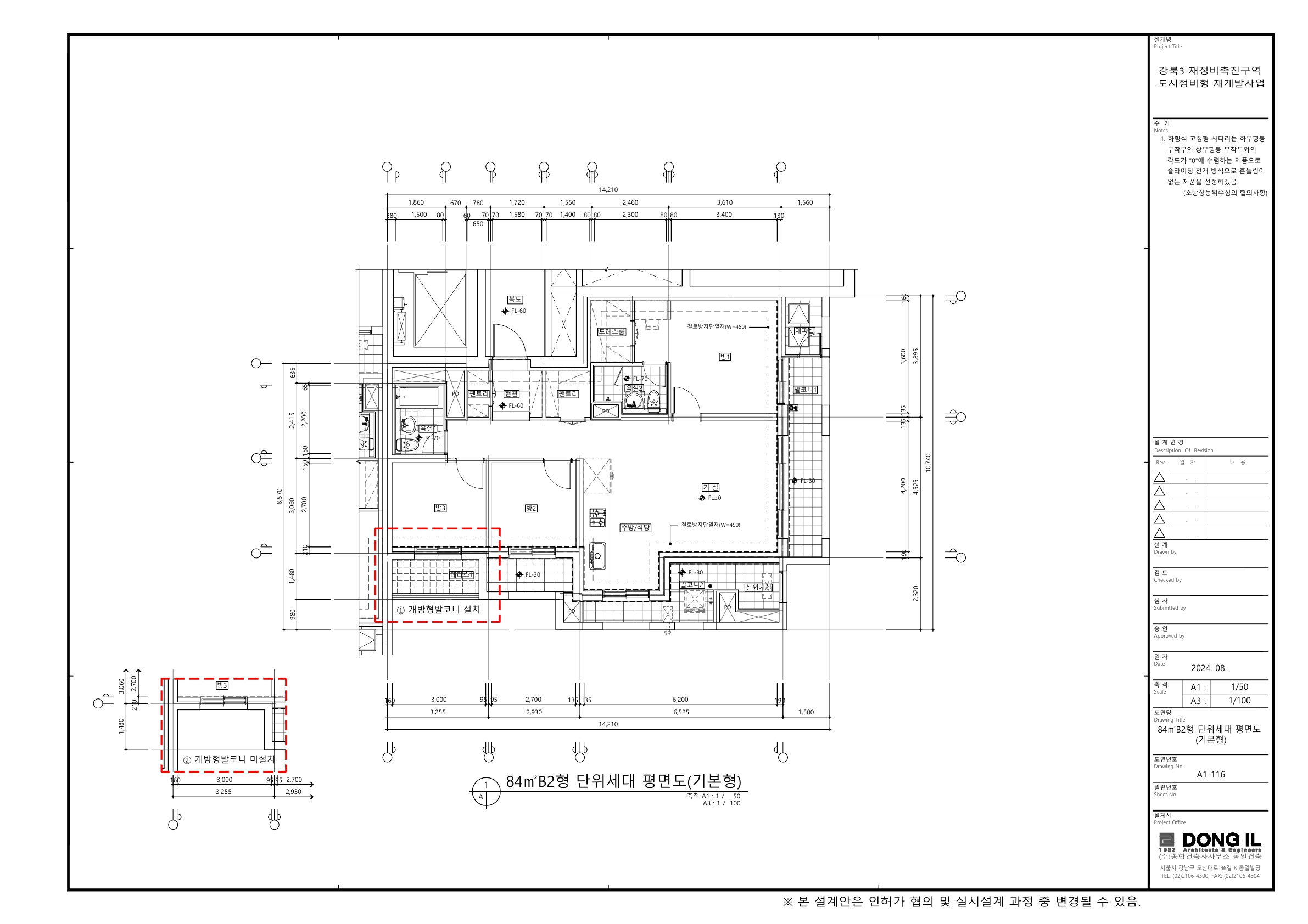
84 B2형 단위세대 평면도

84 B2형 단위세대 평면도
공급면적 (㎡) 119.6440
사업시행인가(변경)일자 2024-10-18
형별 84 B2형
세대수 66
전용면적 (㎡) 84.5950
공용면적 (㎡) 35.0490

단위세대평면도 이미지

단위세대평면도 이미지

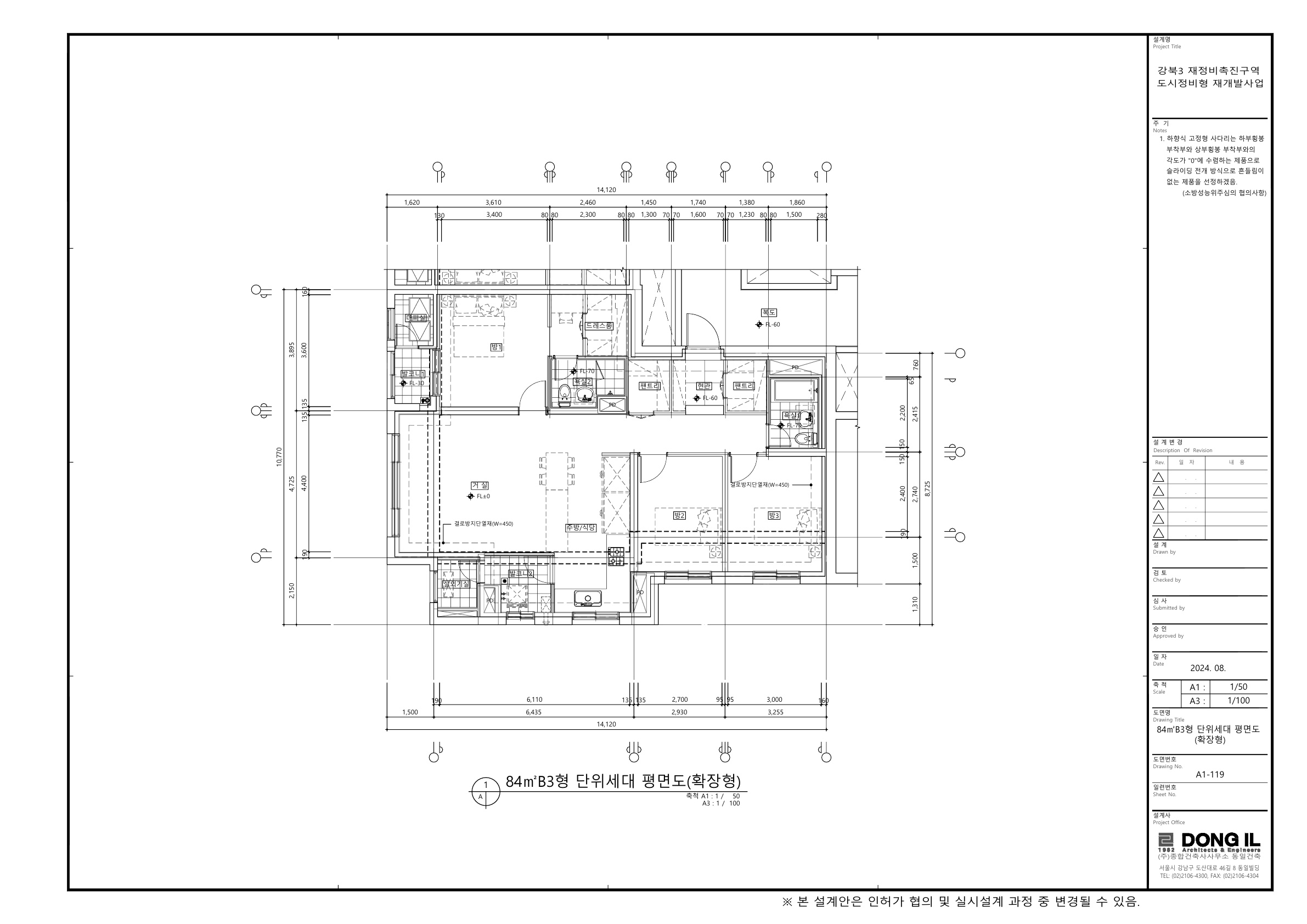
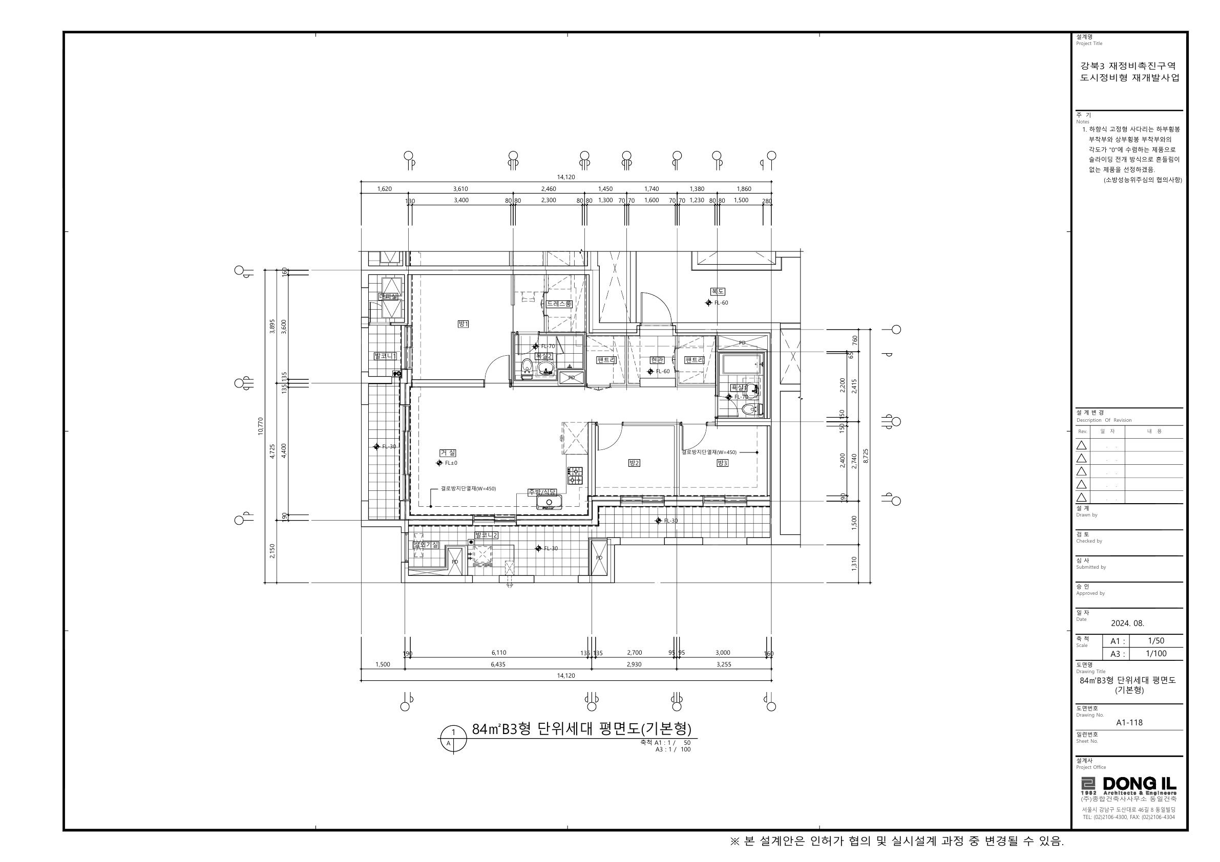
84 B3형 단위세대 평면도

84 B3형 단위세대 평면도
공급면적 (㎡) 119.3904
사업시행인가(변경)일자 2024-10-18
형별 84 B3형
세대수 22
전용면적 (㎡) 84.7942
공용면적 (㎡) 34.5962

단위세대평면도 이미지

단위세대평면도 이미지

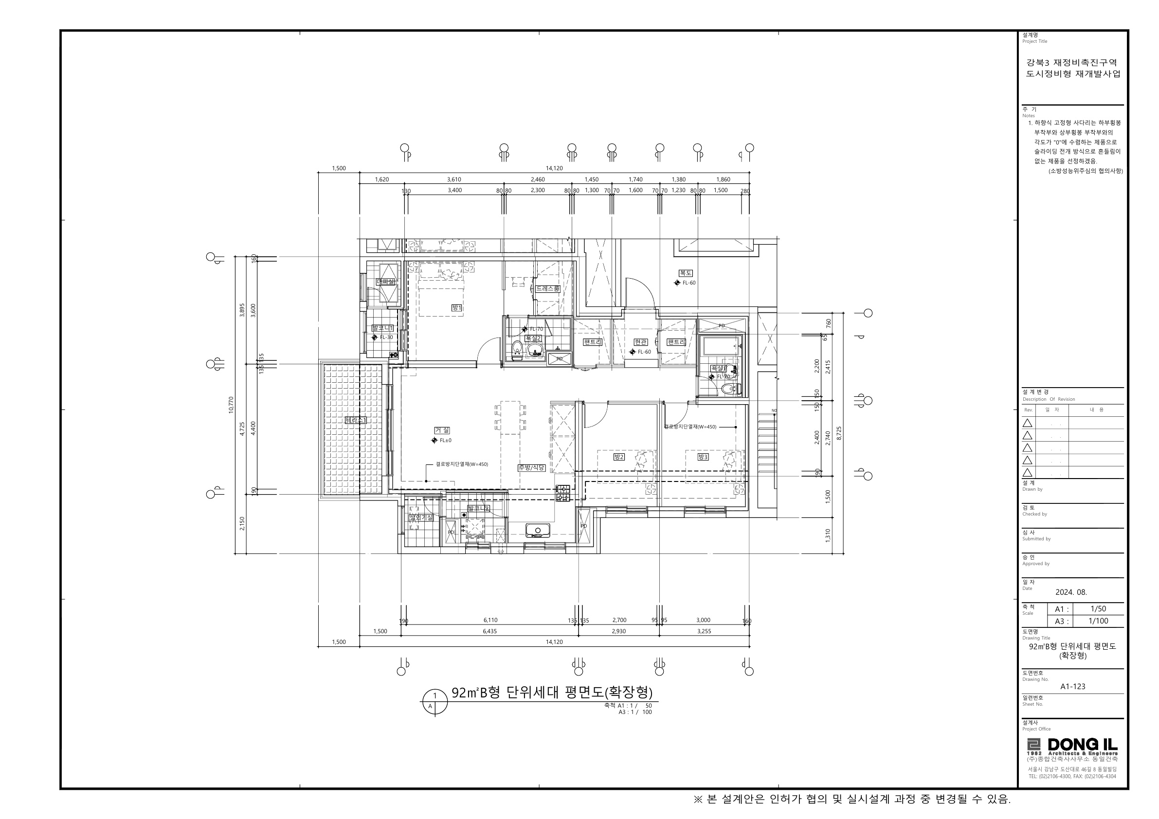
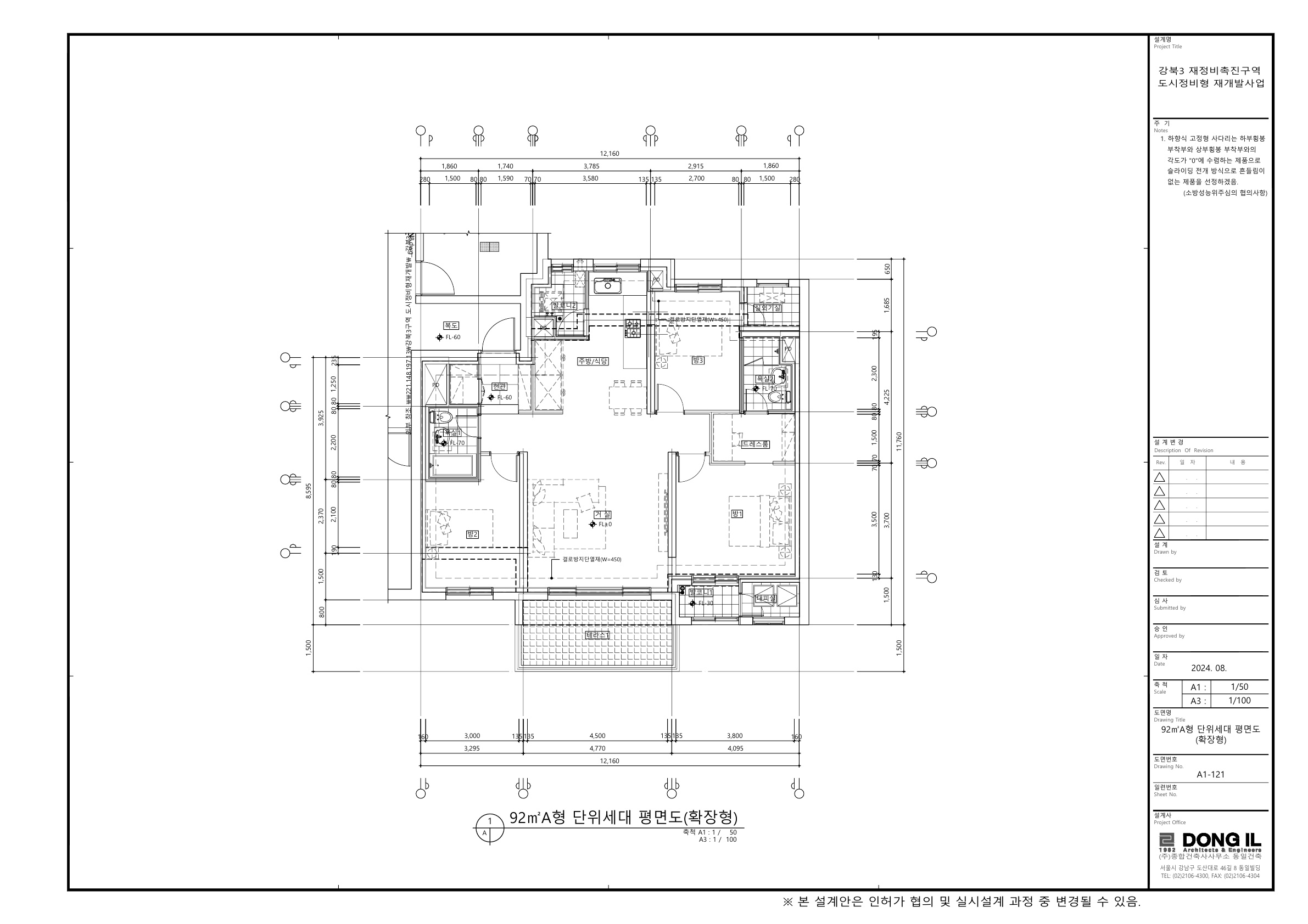
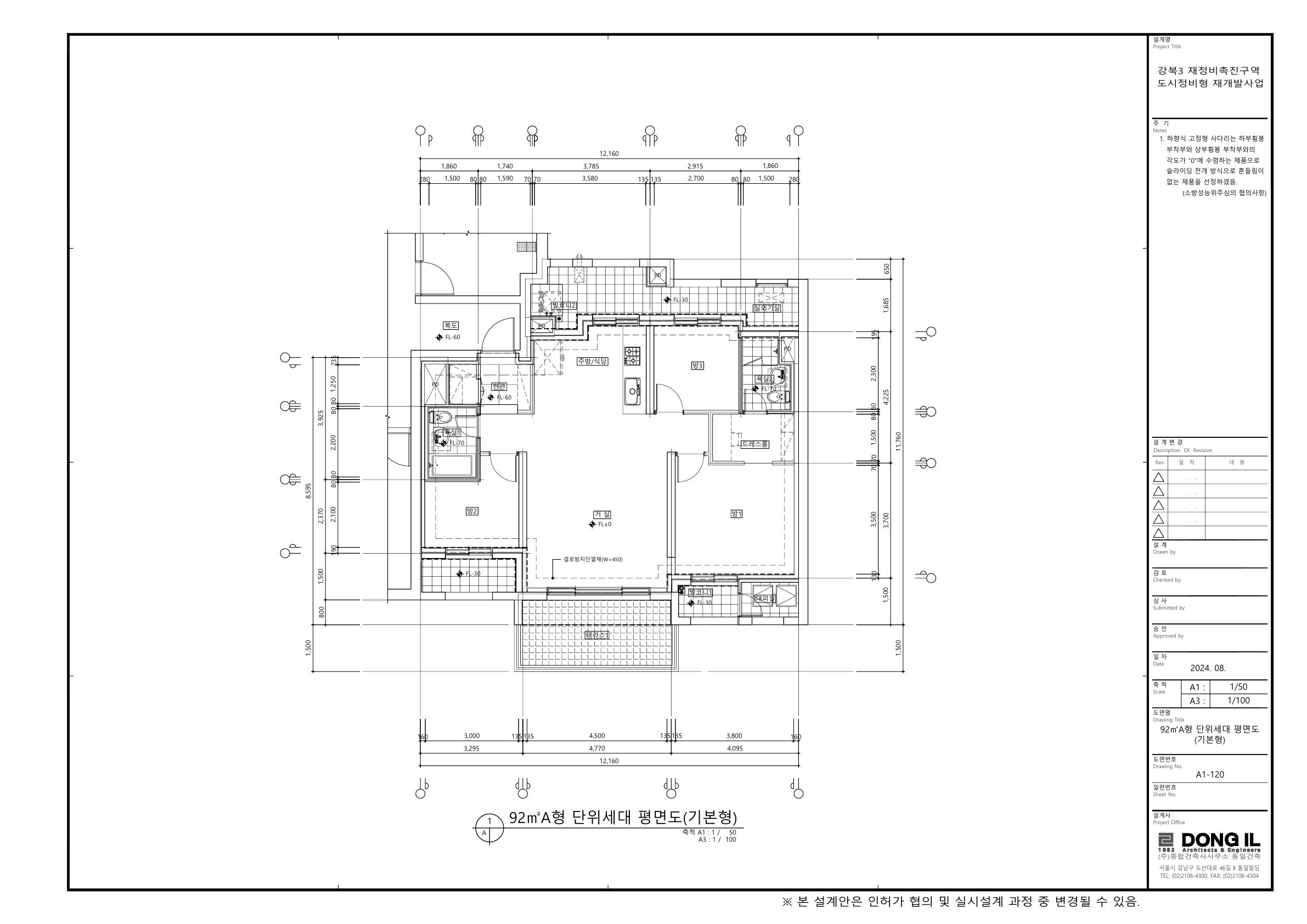
92 A형 단위세대 평면도

92 A형 단위세대 평면도
공급면적 (㎡) 128.9685
사업시행인가(변경)일자 2024-10-18
형별 92 A형
세대수 9
전용면적 (㎡) 92.4712
공용면적 (㎡) 36.4973

단위세대평면도 이미지

단위세대평면도 이미지

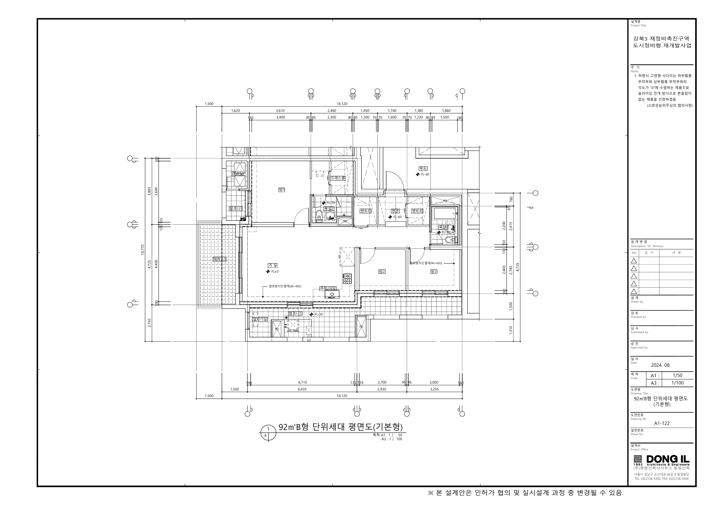
92 B형 단위세대 평면도

92 B형 단위세대 평면도
공급면적 (㎡) 129.9653
사업시행인가(변경)일자 2024-10-18
형별 92 B형
세대수 8
전용면적 (㎡) 92.6134
공용면적 (㎡) 37.3519

단위세대평면도 이미지

단위세대평면도 이미지

사업추진 단계별
공개자료 조회

툴팁 아이콘
원하시는 사업 추진단계에 등록된 자료들을 조회해 보실 수 있습니다.