단위세대평면도
정비사업 추진과정을 유리알처럼 투명하게 공개

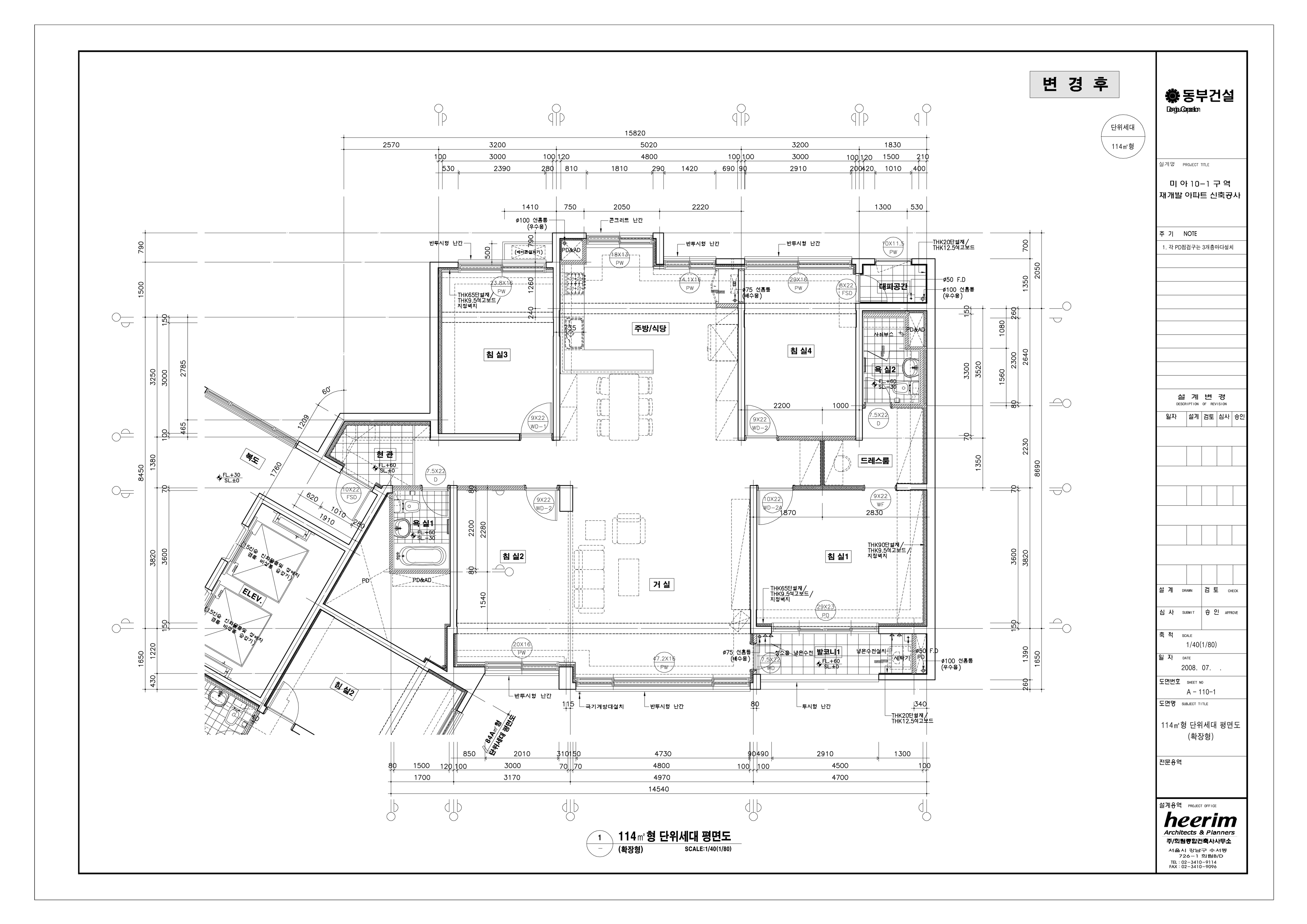
114㎡형 단위세대평면도

114㎡형 단위세대평면도
공급면적 (㎡) 143.659
사업시행인가(변경)일자 2009-12-07
형별 114㎡형
세대수 43
전용면적 (㎡) 114.475
공용면적 (㎡) 29.184

단위세대평면도 이미지

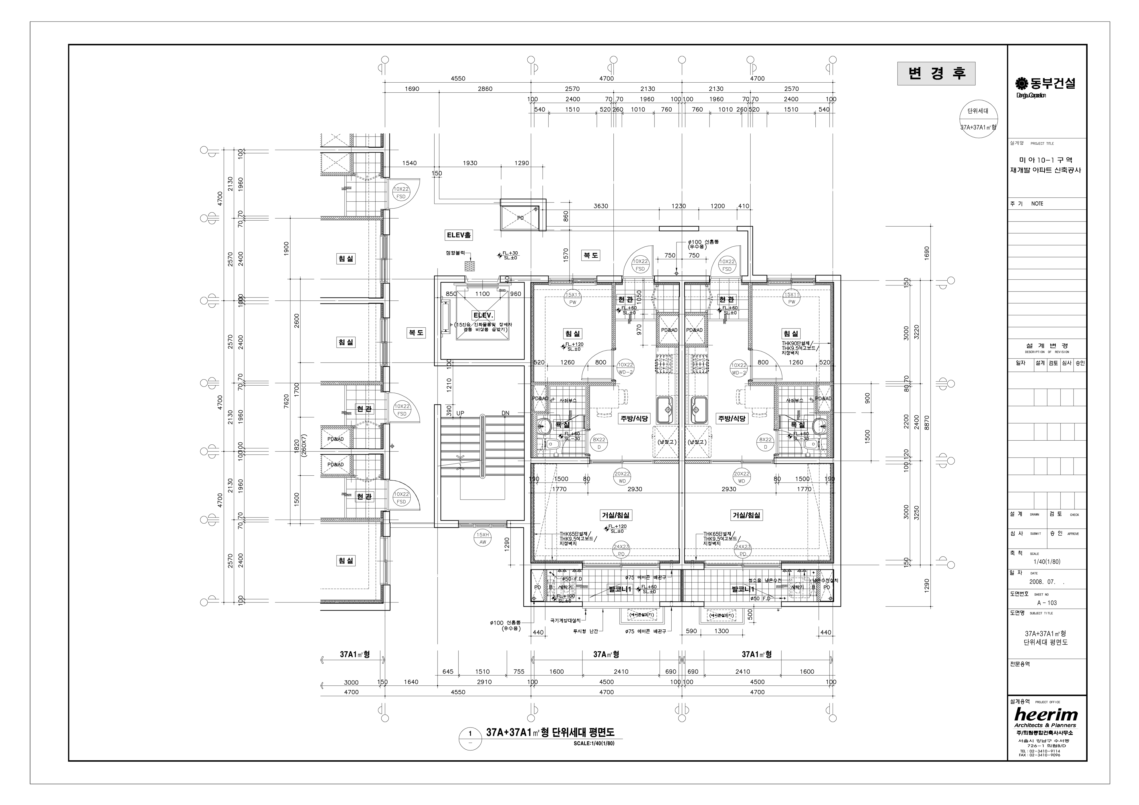
37A+37A1㎡형 단위세대평면도

37A+37A1㎡형 단위세대평면도
공급면적 (㎡) 51.208
사업시행인가(변경)일자 2009-12-07
형별 37A+37A1㎡형
세대수 50, 10
전용면적 (㎡) 37.059
공용면적 (㎡) 14.149

단위세대평면도 이미지

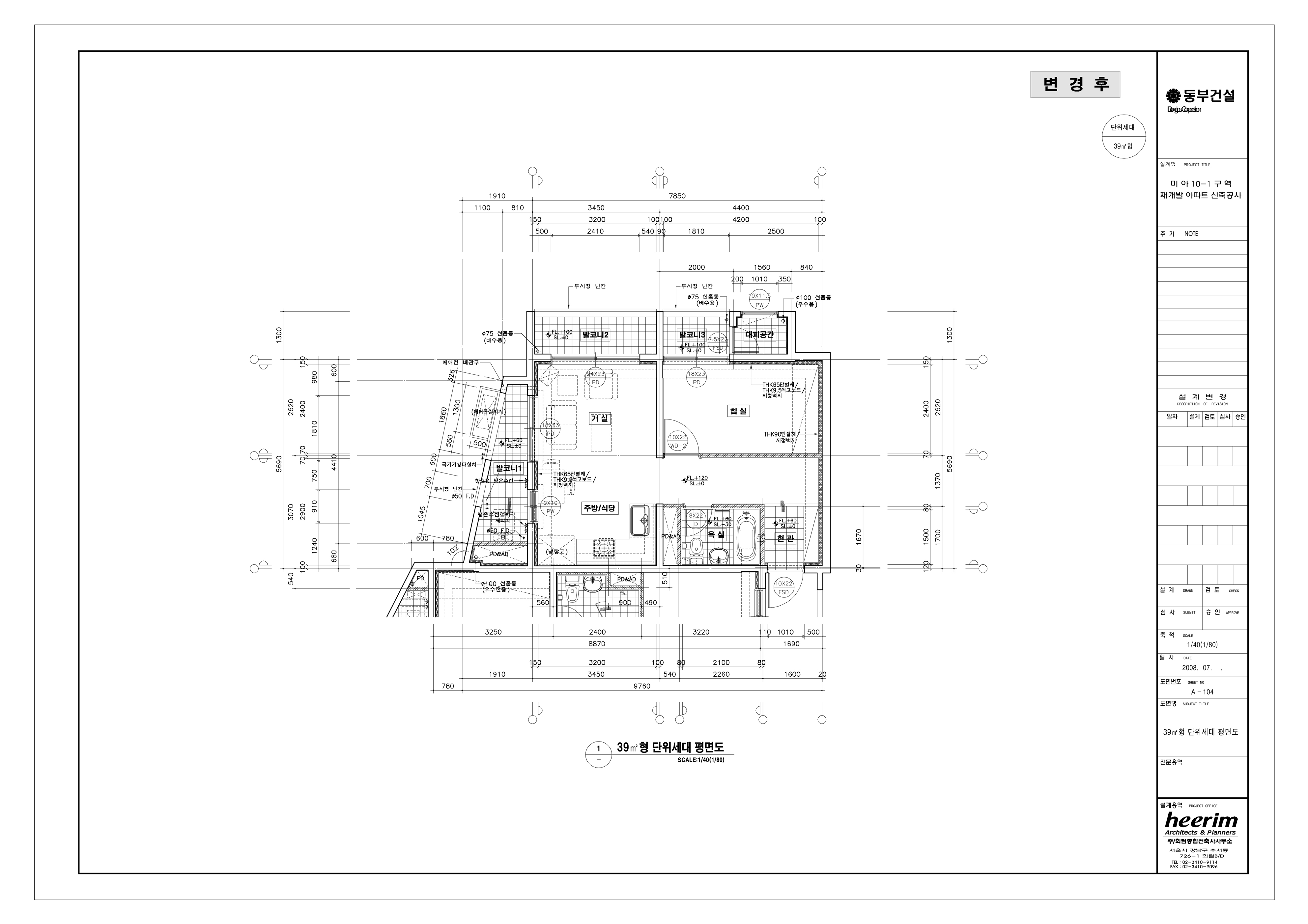
39㎡형 단위세대평면도

39㎡형 단위세대평면도
공급면적 (㎡) 55.299
사업시행인가(변경)일자 2009-12-07
형별 39㎡형
세대수 10
전용면적 (㎡) 39.977
공용면적 (㎡) 15.322

단위세대평면도 이미지

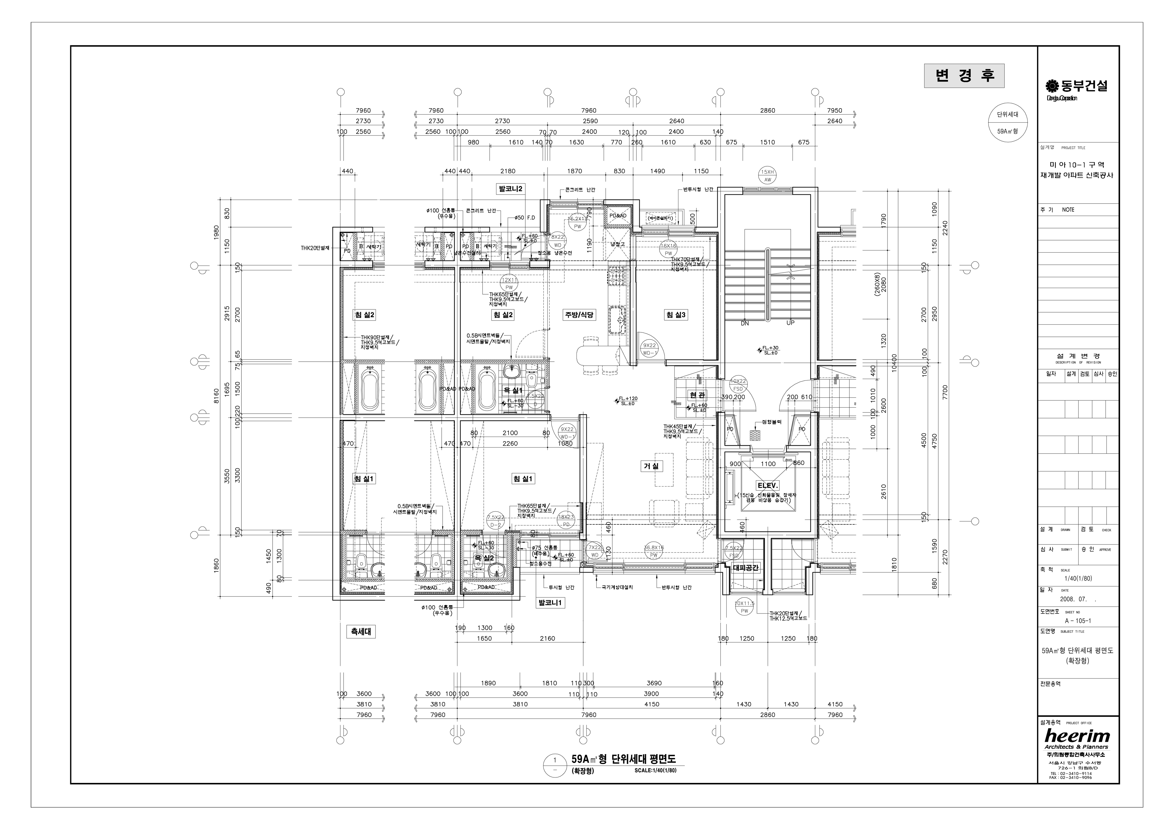
59A㎡형 단위세대평면도

59A㎡형 단위세대평면도
공급면적 (㎡) 79.357
사업시행인가(변경)일자 2009-12-07
형별 59A㎡형
세대수 89
전용면적 (㎡) 59.818
공용면적 (㎡) 19.539

단위세대평면도 이미지

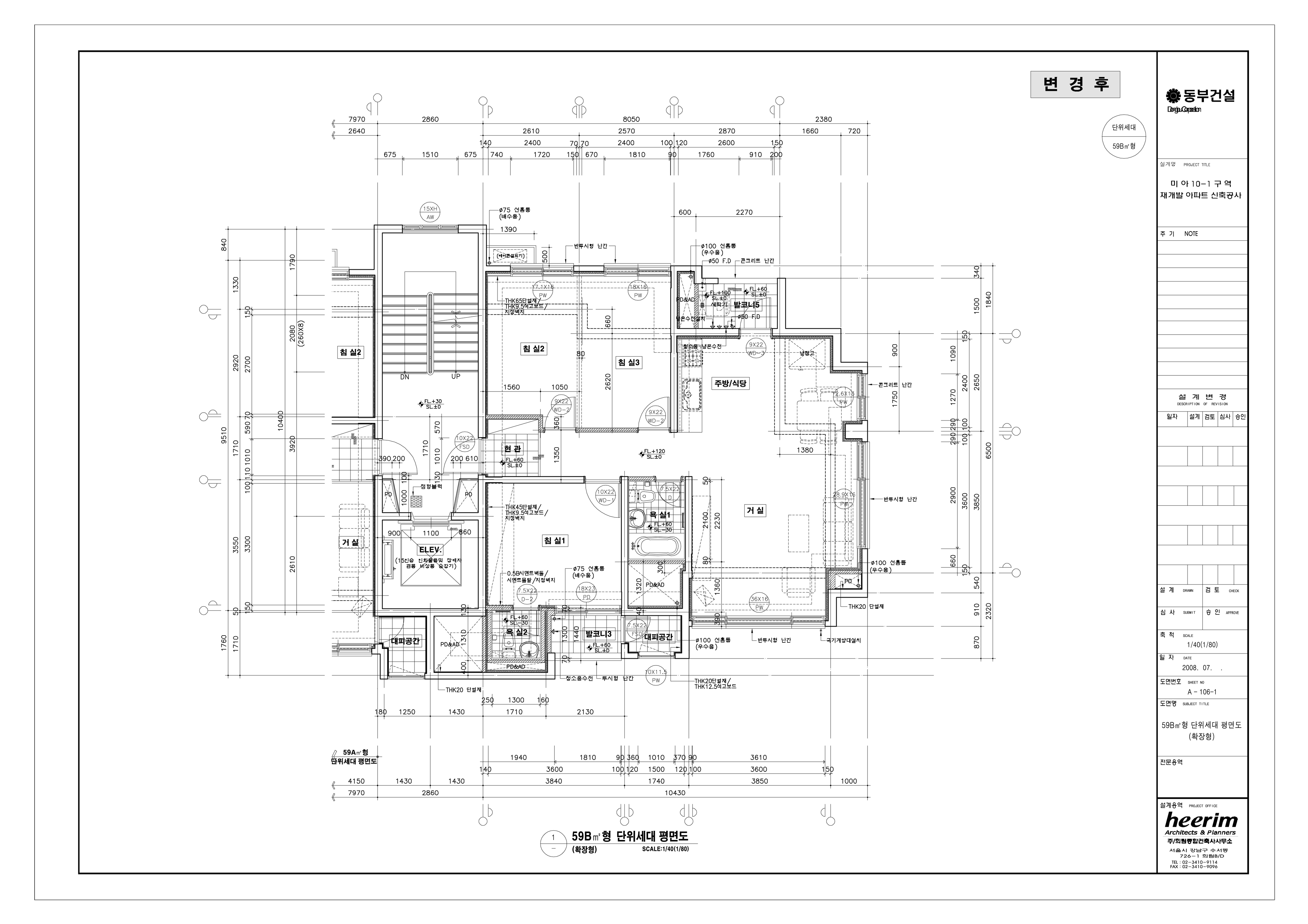
59B㎡형 단위세대평면도

59B㎡형 단위세대평면도
공급면적 (㎡) 80.200
사업시행인가(변경)일자 2009-12-07
형별 59B㎡형
세대수 25
전용면적 (㎡) 59.762
공용면적 (㎡) 20.438

단위세대평면도 이미지

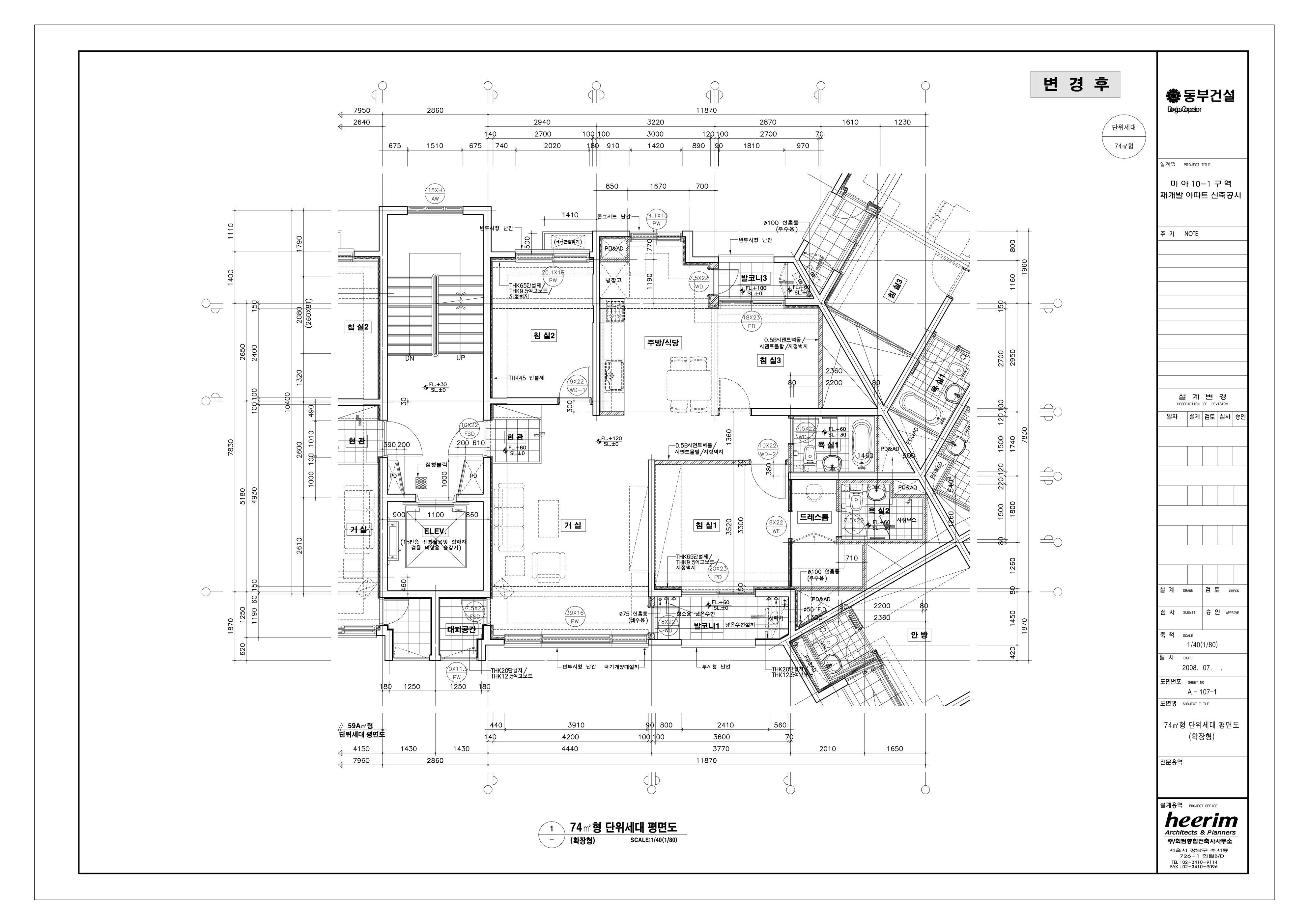
74㎡형 단위세대평면도

74㎡형 단위세대평면도
공급면적 (㎡) 96.554
사업시행인가(변경)일자 2009-12-07
형별 74㎡형
세대수 30
전용면적 (㎡) 74.628
공용면적 (㎡) 21.926

단위세대평면도 이미지

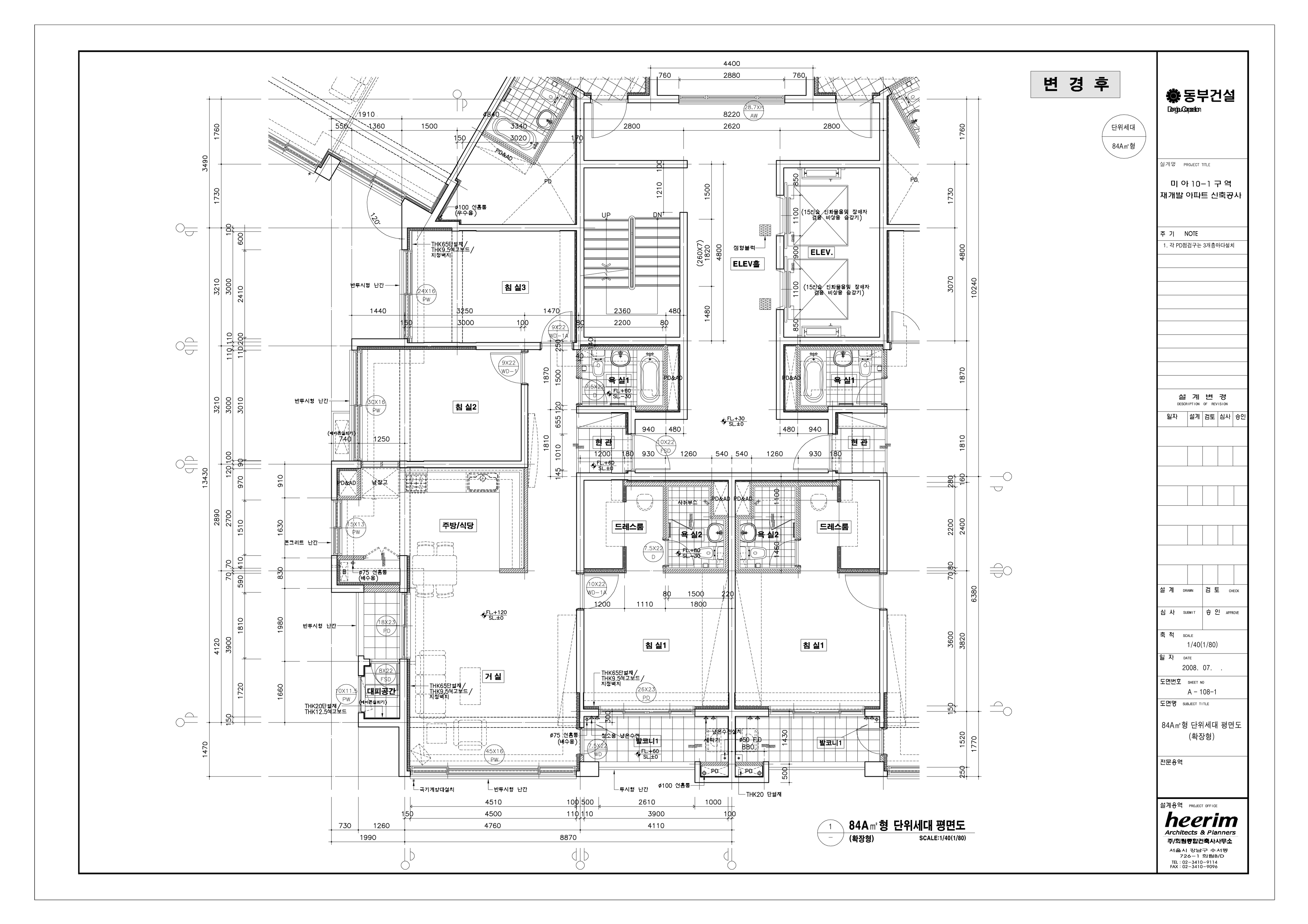
84A㎡형 단위세대평면도

84A㎡형 단위세대평면도
공급면적 (㎡) 109.103
사업시행인가(변경)일자 2009-12-07
형별 84A㎡형
세대수 60
전용면적 (㎡) 84.965
공용면적 (㎡) 24.138

단위세대평면도 이미지

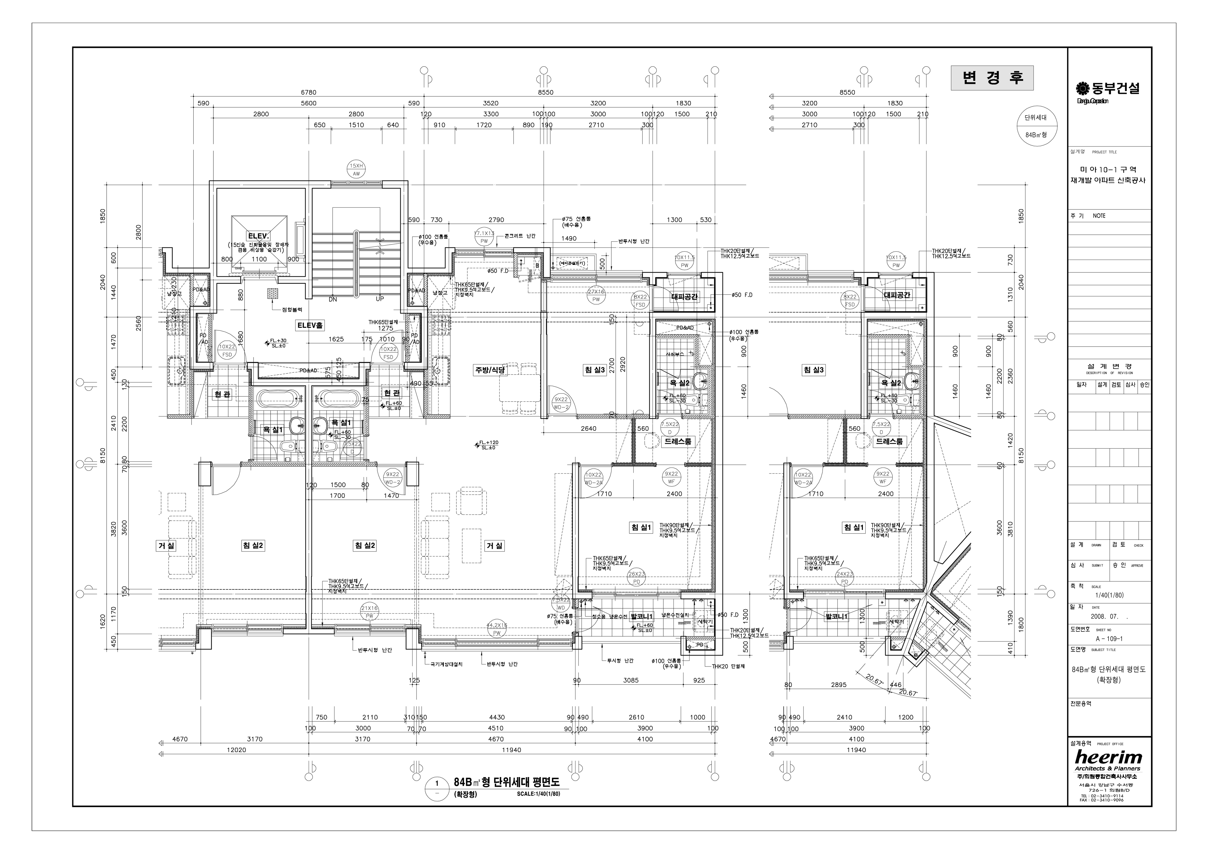
84B㎡형 단위세대평면도

84B㎡형 단위세대평면도
공급면적 (㎡) 106.276
사업시행인가(변경)일자 2009-12-07
형별 84B㎡형
세대수 59
전용면적 (㎡) 84.867
공용면적 (㎡) 21.409

단위세대평면도 이미지

사업추진 단계별
공개자료 조회

툴팁 아이콘
원하시는 사업 추진단계에 등록된 자료들을 조회해 보실 수 있습니다.