단위세대평면도
정비사업 추진과정을 유리알처럼 투명하게 공개

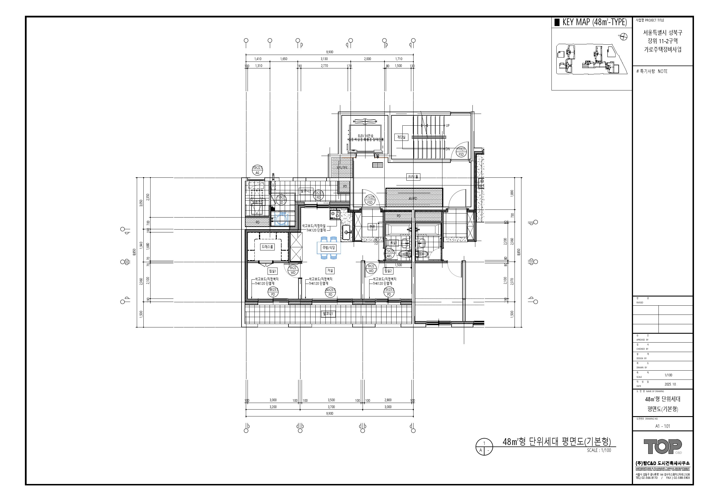
48㎡형 단위세대 평면도(기본형)

48㎡형 단위세대 평면도(기본형)
공급면적 (㎡) 66.7389
사업시행인가(변경)일자 2025-04-15
형별 48㎡
세대수 11
전용면적 (㎡) 48.8074
공용면적 (㎡) 17.9315

단위세대평면도 이미지

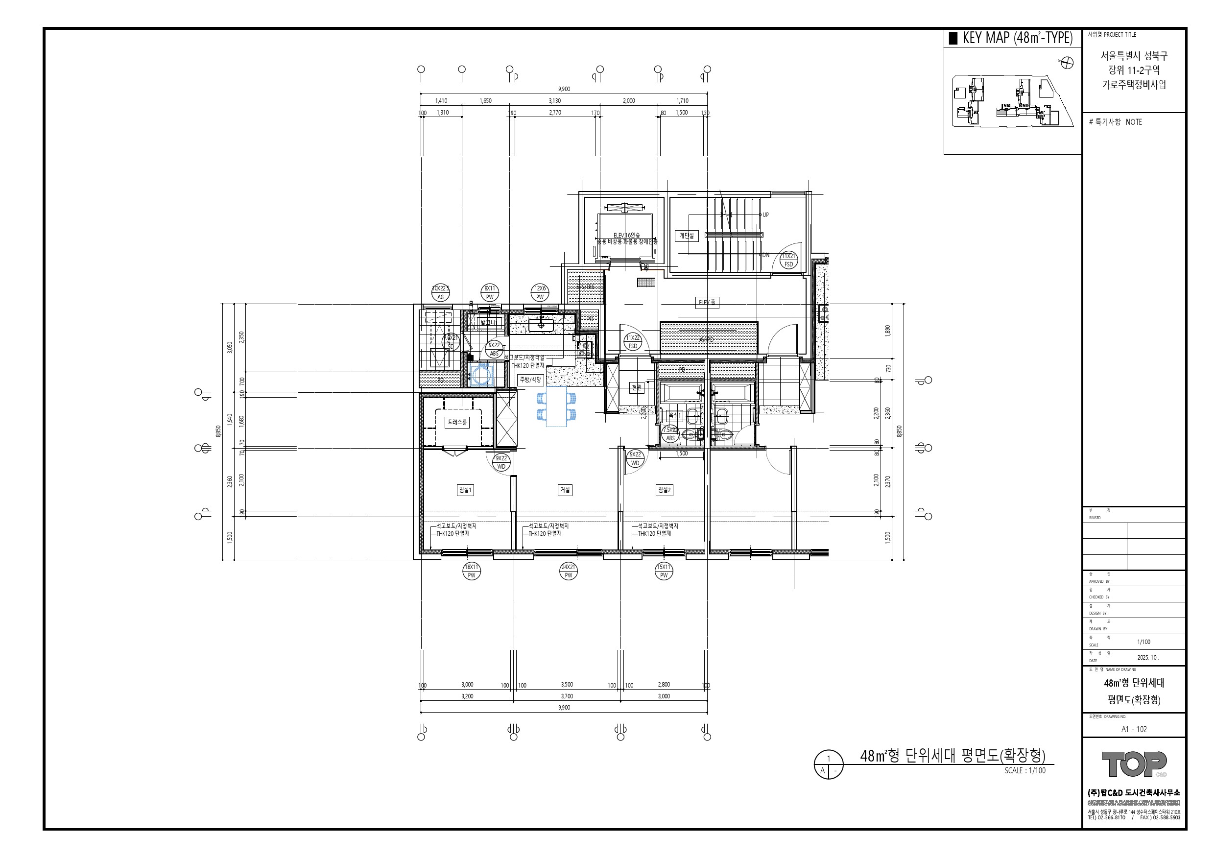
48㎡형 단위세대 평면도(확장형)

48㎡형 단위세대 평면도(확장형)
공급면적 (㎡) 66.7389
사업시행인가(변경)일자 2025-04-15
형별 48㎡
세대수 11
전용면적 (㎡) 48.8074
공용면적 (㎡) 17.9315

단위세대평면도 이미지

50㎡형 단위세대 평면도(기본형)

50㎡형 단위세대 평면도(기본형)
공급면적 (㎡) 69.0309
사업시행인가(변경)일자 2025-04-15
형별 50㎡
세대수 12
전용면적 (㎡) 50.5339
공용면적 (㎡) 18.4970

단위세대평면도 이미지

50㎡형 단위세대 평면도(확장형)

50㎡형 단위세대 평면도(확장형)
공급면적 (㎡) 69.03099
사업시행인가(변경)일자 2025-04-15
형별 50㎡
세대수 12
전용면적 (㎡) 50.5339
공용면적 (㎡) 18.4970

단위세대평면도 이미지

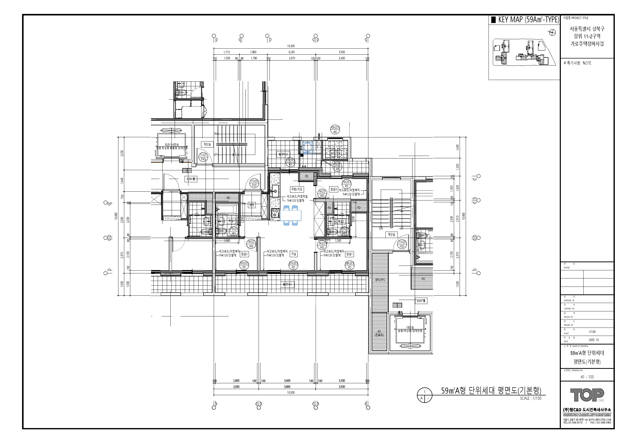
59㎡A형 단위세대 평면도(기본형)

59㎡A형 단위세대 평면도(기본형)
공급면적 (㎡) 81.5999
사업시행인가(변경)일자 2025-04-15
형별 59A㎡
세대수 67
전용면적 (㎡) 59.9876
공용면적 (㎡) 21.6123

단위세대평면도 이미지

59㎡A형 단위세대 평면도(확장형)

59㎡A형 단위세대 평면도(확장형)
공급면적 (㎡) 81.5999
사업시행인가(변경)일자 2025-04-15
형별 59A㎡
세대수 67
전용면적 (㎡) 59.9876
공용면적 (㎡) 21.6123

단위세대평면도 이미지

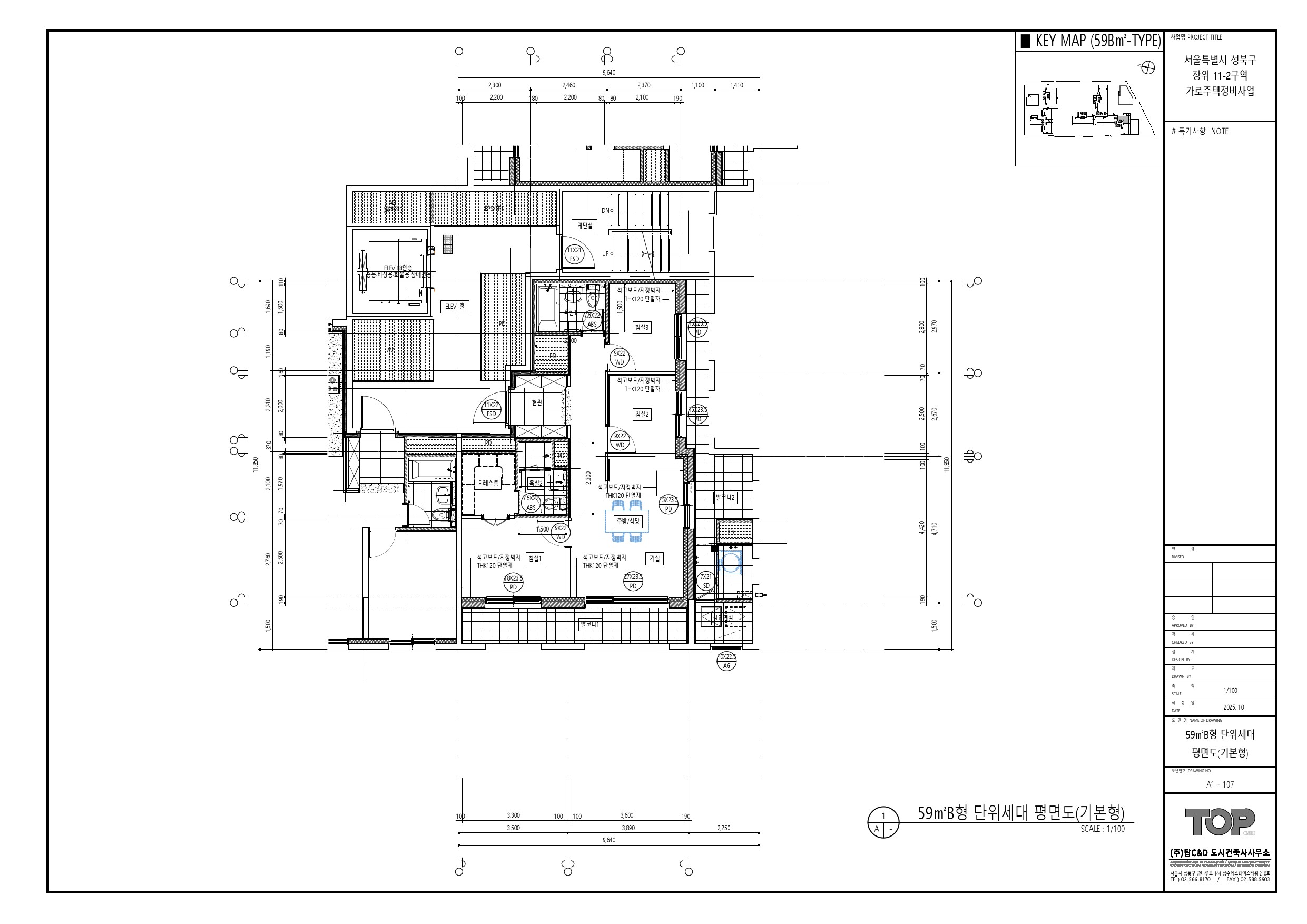
59㎡B형 단위세대 평면도(기본형)

59㎡B형 단위세대 평면도(기본형)
공급면적 (㎡) 81.9195
사업시행인가(변경)일자 2025-04-15
형별 59B㎡
세대수 13
전용면적 (㎡) 59.9969
공용면적 (㎡) 21.9226

단위세대평면도 이미지

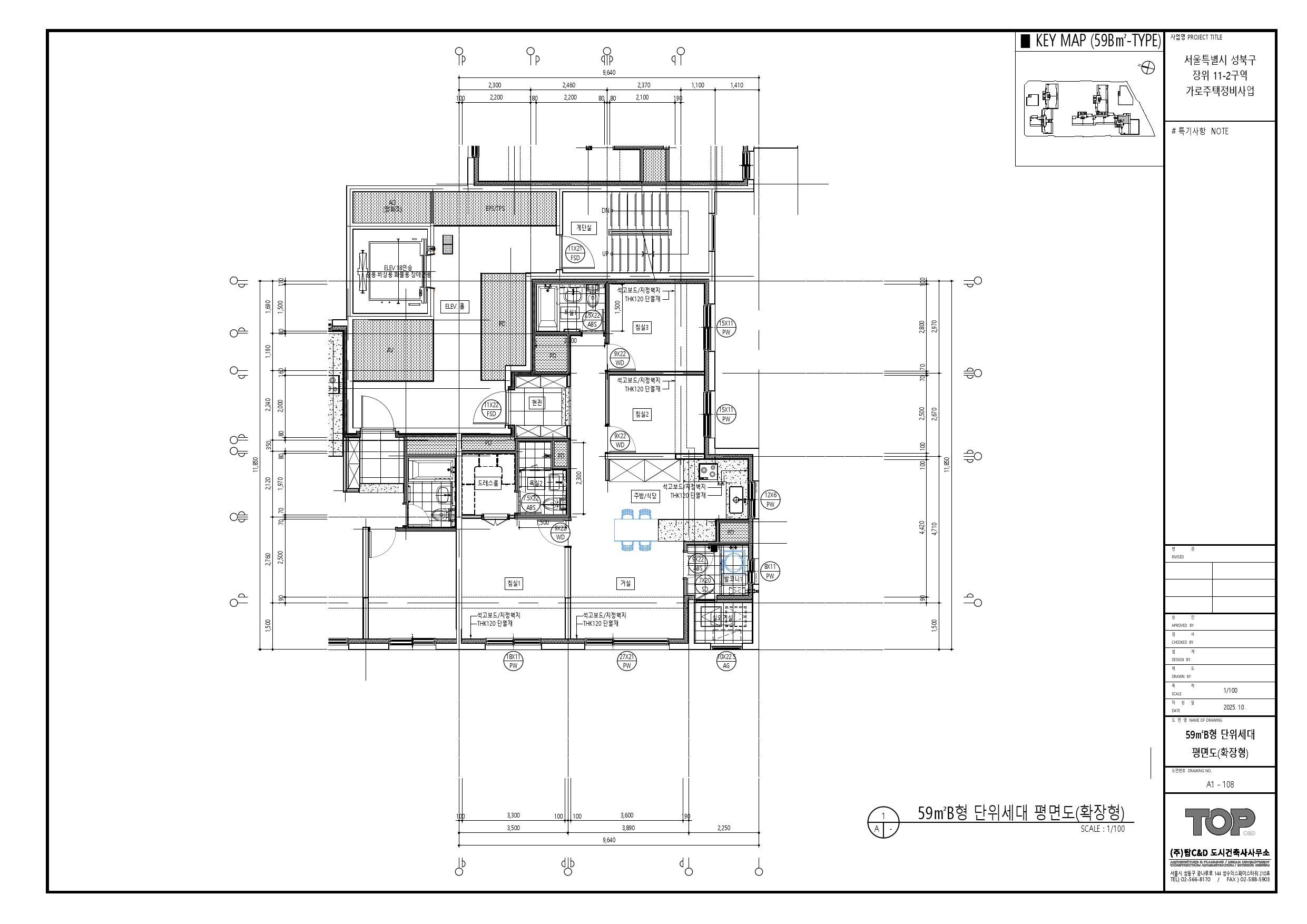
59㎡B형 단위세대 평면도(확장형)

59㎡B형 단위세대 평면도(확장형)
공급면적 (㎡) 81.9195
사업시행인가(변경)일자 2025-04-15
형별 59B㎡
세대수 13
전용면적 (㎡) 59.9969
공용면적 (㎡) 21.9226

단위세대평면도 이미지

84㎡A형 단위세대 평면도(기본형)

84㎡A형 단위세대 평면도(기본형)
공급면적 (㎡) 114.1042
사업시행인가(변경)일자 2025-04-15
형별 84A㎡
세대수 42
전용면적 (㎡) 84.9909
공용면적 (㎡) 29.1133

단위세대평면도 이미지

84㎡A형 단위세대 평면도(확장형)

84㎡A형 단위세대 평면도(확장형)
공급면적 (㎡) 114.1042
사업시행인가(변경)일자 2025-04-15
형별 84A㎡
세대수 42
전용면적 (㎡) 84.9909
공용면적 (㎡) 29.1133

단위세대평면도 이미지

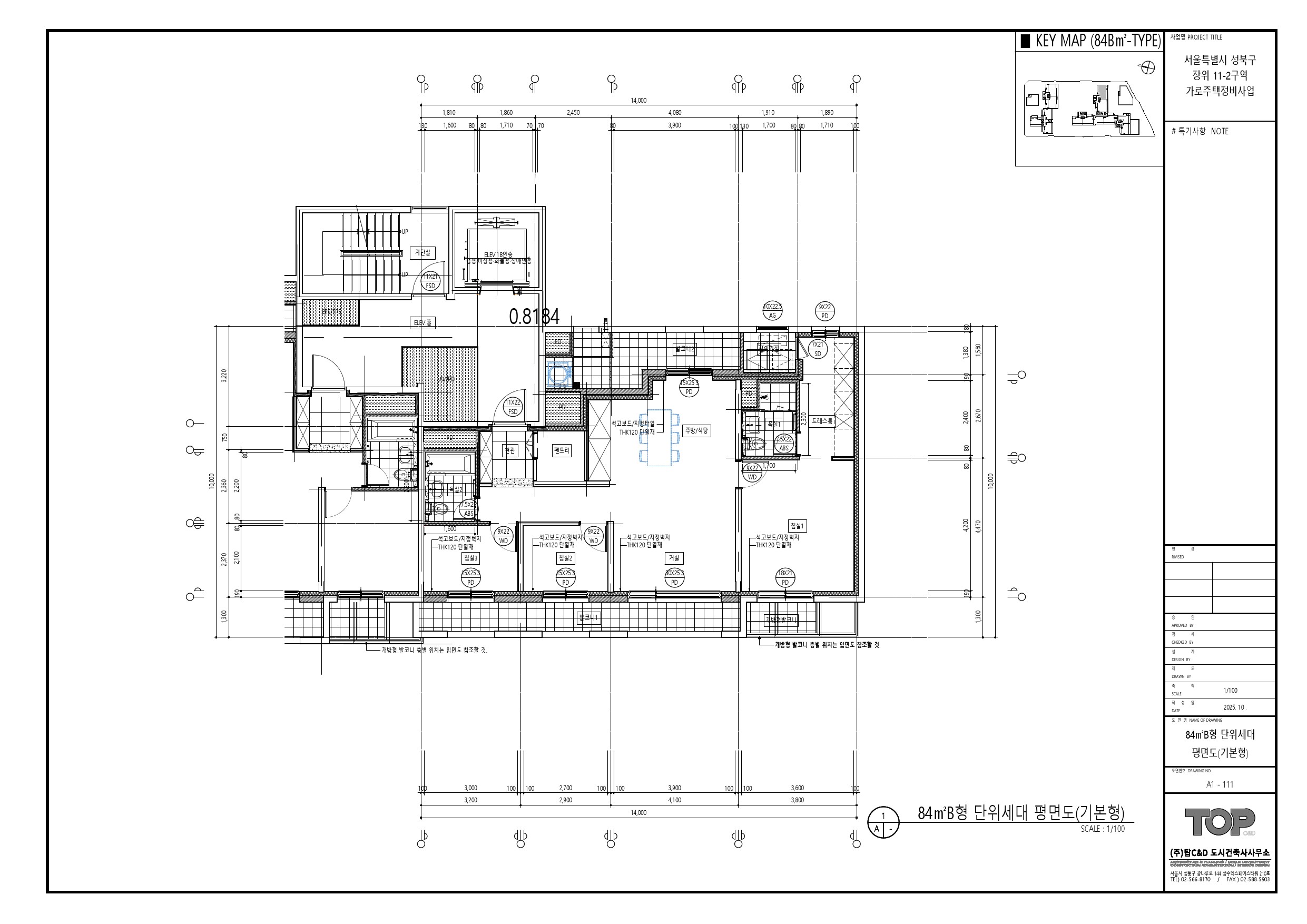
84㎡B형 단위세대 평면도(기본형)

84㎡B형 단위세대 평면도(기본형)
공급면적 (㎡) 114.9765
사업시행인가(변경)일자 2025-04-15
형별 84B㎡
세대수 15
전용면적 (㎡) 84.9971
공용면적 (㎡) 29.9794

단위세대평면도 이미지

84㎡B형 단위세대 평면도(확장형)

84㎡B형 단위세대 평면도(확장형)
공급면적 (㎡) 114.9765
사업시행인가(변경)일자 2025-04-15
형별 84B㎡
세대수 15
전용면적 (㎡) 84.9971
공용면적 (㎡) 29.9794

단위세대평면도 이미지

사업추진 단계별
공개자료 조회

툴팁 아이콘
원하시는 사업 추진단계에 등록된 자료들을 조회해 보실 수 있습니다.