단위세대평면도
정비사업 추진과정을 유리알처럼 투명하게 공개
| 공급면적 (㎡) | 77.78 |
|---|---|
| 사업시행인가(변경)일자 | 2022-07-26 |
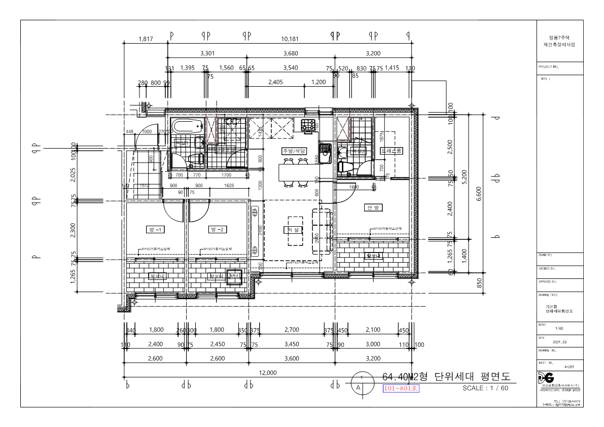
| 형별 | 77.78 |
| 세대수 | 8 |
| 전용면적 (㎡) | 64.40 |
| 공용면적 (㎡) | 13.38 |
| 공급면적 (㎡) | 81.97 |
|---|---|
| 사업시행인가(변경)일자 | 2022-07-26 |
| 형별 | 81.97 |
| 세대수 | 8 |
| 전용면적 (㎡) | 68.16 |
| 공용면적 (㎡) | 13.81 |
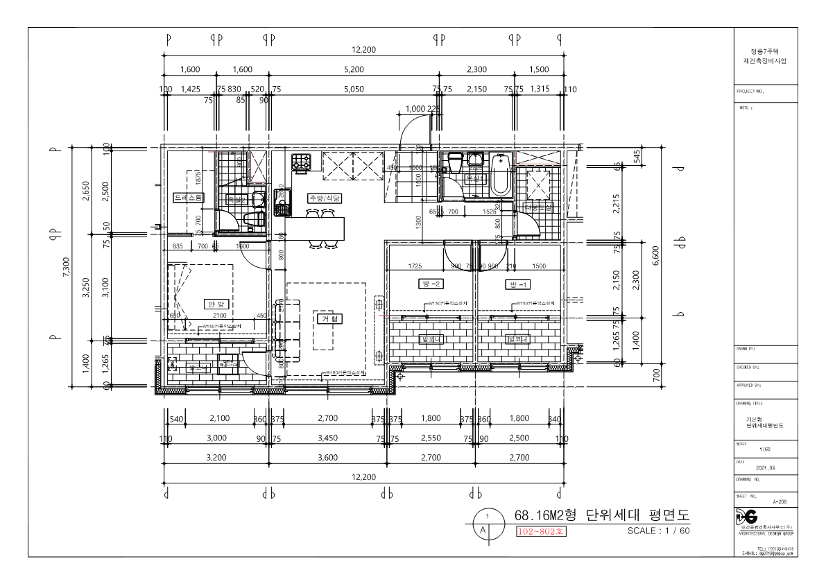
| 공급면적 (㎡) | 83.80 |
|---|---|
| 사업시행인가(변경)일자 | 2022-07-26 |
| 형별 | 83.80 |
| 세대수 | 16 |
| 전용면적 (㎡) | 69.67 |
| 공용면적 (㎡) | 14.13 |
| 공급면적 (㎡) | 83.66 |
|---|---|
| 사업시행인가(변경)일자 | 2022-07-26 |
| 형별 | 83.66 |
| 세대수 | 8 |
| 전용면적 (㎡) | 69.01 |
| 공용면적 (㎡) | 14.65 |
| 공급면적 (㎡) | 83.93 |
|---|---|
| 사업시행인가(변경)일자 | 2022-07-26 |
| 형별 | 83.93 |
| 세대수 | 8 |
| 전용면적 (㎡) | 69.65 |
| 공용면적 (㎡) | 14.28 |
| 공급면적 (㎡) | 87.83 |
|---|---|
| 사업시행인가(변경)일자 | 2022-07-26 |
| 형별 | 87.83 |
| 세대수 | 7 |
| 전용면적 (㎡) | 72.90 |
| 공용면적 (㎡) | 14.93 |
| 공급면적 (㎡) | 88.86 |
|---|---|
| 사업시행인가(변경)일자 | 2022-07-26 |
| 형별 | 88.86 |
| 세대수 | 1 |
| 전용면적 (㎡) | 73.81 |
| 공용면적 (㎡) | 11.07 |
| 공급면적 (㎡) | 84.58 |
|---|---|
| 사업시행인가(변경)일자 | 2022-07-26 |
| 형별 | 84.58 |
| 세대수 | 2 |
| 전용면적 (㎡) | 70.34 |
| 공용면적 (㎡) | 14.24 |
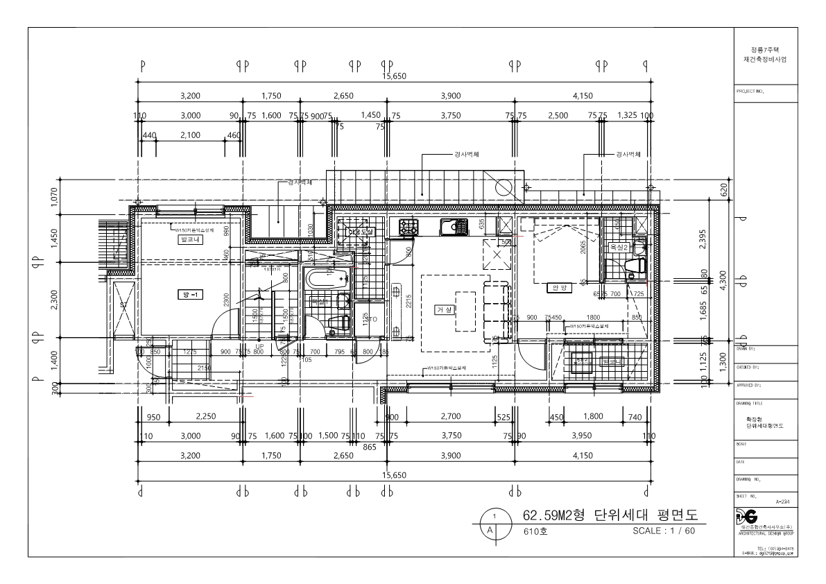
| 공급면적 (㎡) | 76.09 |
|---|---|
| 사업시행인가(변경)일자 | 2022-07-26 |
| 형별 | 76.09 |
| 세대수 | 1 |
| 전용면적 (㎡) | 62.59 |
| 공용면적 (㎡) | 13.5 |
| 공급면적 (㎡) | 84.70 |
|---|---|
| 사업시행인가(변경)일자 | 2022-07-26 |
| 형별 | 84.70 |
| 세대수 | 1 |
| 전용면적 (㎡) | 70.34 |
| 공용면적 (㎡) | 14.36 |
| 공급면적 (㎡) | 73.01 |
|---|---|
| 사업시행인가(변경)일자 | 2022-07-26 |
| 형별 | 73.01 |
| 세대수 | 1 |
| 전용면적 (㎡) | 60.44 |
| 공용면적 (㎡) | 12.57 |
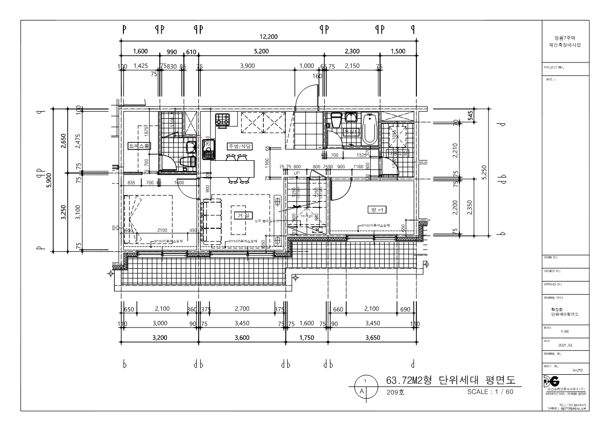
| 공급면적 (㎡) | 76.54 |
|---|---|
| 사업시행인가(변경)일자 | 2022-07-26 |
| 형별 | 76.54 |
| 세대수 | 1 |
| 전용면적 (㎡) | 63.72 |
| 공용면적 (㎡) | 12.82 |
| 공급면적 (㎡) | 84.54 |
|---|---|
| 사업시행인가(변경)일자 | 2022-07-26 |
| 형별 | 84.54 |
| 세대수 | 1 |
| 전용면적 (㎡) | 71.40 |
| 공용면적 (㎡) | 14.44 |