단위세대평면도
정비사업 추진과정을 유리알처럼 투명하게 공개

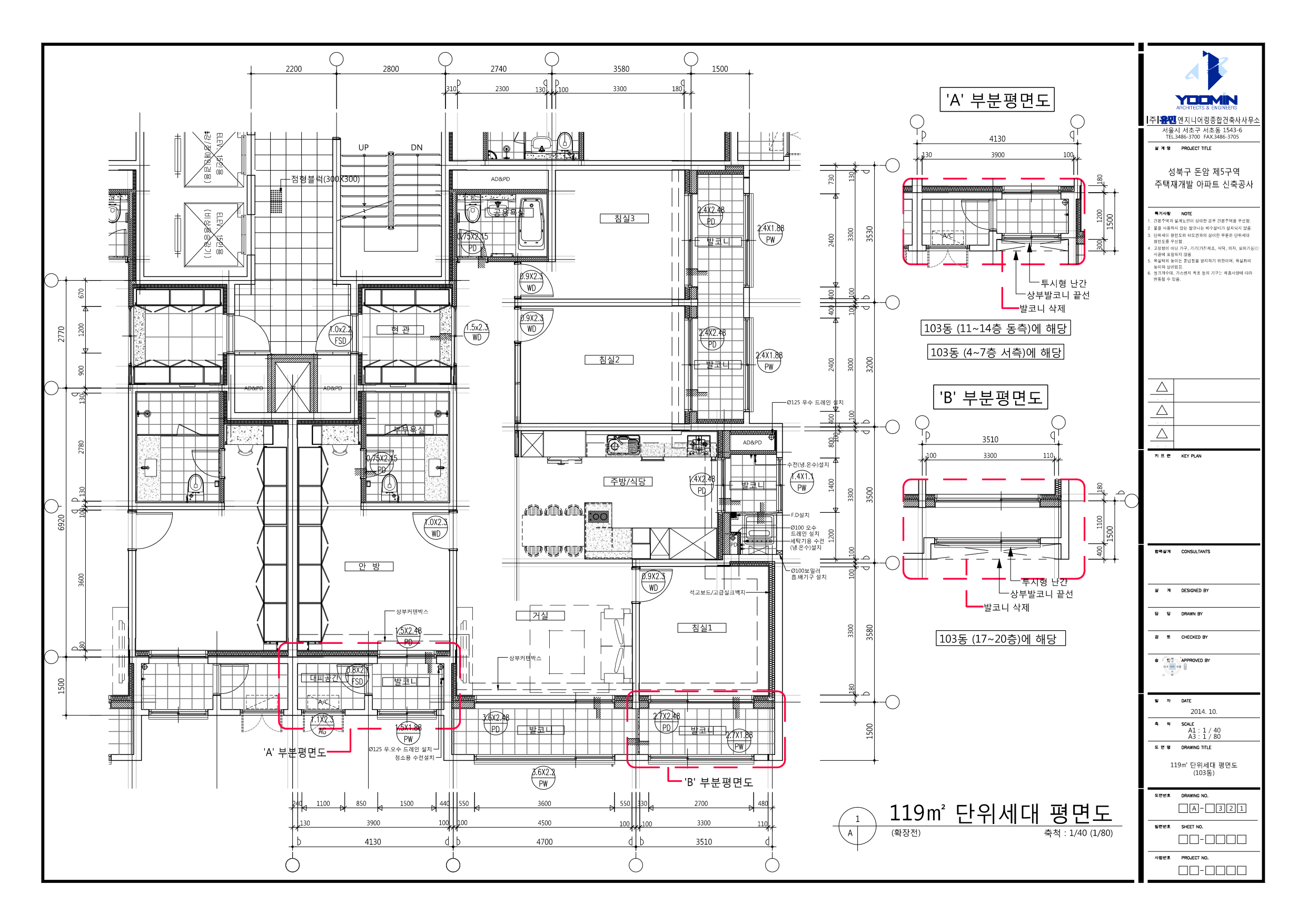
단위세대평면도_119.56형

단위세대평면도_119.56형
공급면적 (㎡) 230.53
사업시행인가(변경)일자 2014-07-09
형별 119.56형
세대수 40
전용면적 (㎡) 119.56
공용면적 (㎡) 110.97

단위세대평면도 이미지

단위세대평면도 이미지

단위세대평면도_59.50형

단위세대평면도_59.50형
공급면적 (㎡) 116.40
사업시행인가(변경)일자 2014-07-09
형별 59.50형
세대수 88
전용면적 (㎡) 59.50
공용면적 (㎡) 56.90

단위세대평면도 이미지

단위세대평면도 이미지

단위세대평면도_59.84형

단위세대평면도_59.84형
공급면적 (㎡) 118.17
사업시행인가(변경)일자 2014-07-09
형별 59.84형
세대수 88
전용면적 (㎡) 59.84
공용면적 (㎡) 58.33

단위세대평면도 이미지

단위세대평면도 이미지

단위세대평면도_84.77형

단위세대평면도_84.77형
공급면적 (㎡) 165.13
사업시행인가(변경)일자 2014-07-09
형별 84.77형
세대수 36
전용면적 (㎡) 84.77
공용면적 (㎡) 80.36

단위세대평면도 이미지

단위세대평면도 이미지

단위세대평면도_84.80형

단위세대평면도_84.80형
공급면적 (㎡) 165.37
사업시행인가(변경)일자 2014-07-09
형별 84.80
세대수 40
전용면적 (㎡) 84.80
공용면적 (㎡) 80.57

단위세대평면도 이미지

단위세대평면도 이미지

단위세대평면도_84.88형

단위세대평면도_84.88형
공급면적 (㎡) 164.35
사업시행인가(변경)일자 2014-07-09
형별 84.88형
세대수 40
전용면적 (㎡) 84.88
공용면적 (㎡) 79.47

단위세대평면도 이미지

단위세대평면도 이미지

단위세대평면도_84.94형

단위세대평면도_84.94형
공급면적 (㎡) 164.56
사업시행인가(변경)일자 2014-07-09
형별 84.94형
세대수 40
전용면적 (㎡) 84.94
공용면적 (㎡) 79.62

단위세대평면도 이미지

단위세대평면도 이미지

단위세대평면도_84.98형

단위세대평면도_84.98형
공급면적 (㎡) 164.66
사업시행인가(변경)일자 2014-07-09
형별 84.98형
세대수 34
전용면적 (㎡) 84.98
공용면적 (㎡) 79.68

단위세대평면도 이미지

단위세대평면도 이미지

사업추진 단계별
공개자료 조회

툴팁 아이콘
원하시는 사업 추진단계에 등록된 자료들을 조회해 보실 수 있습니다.