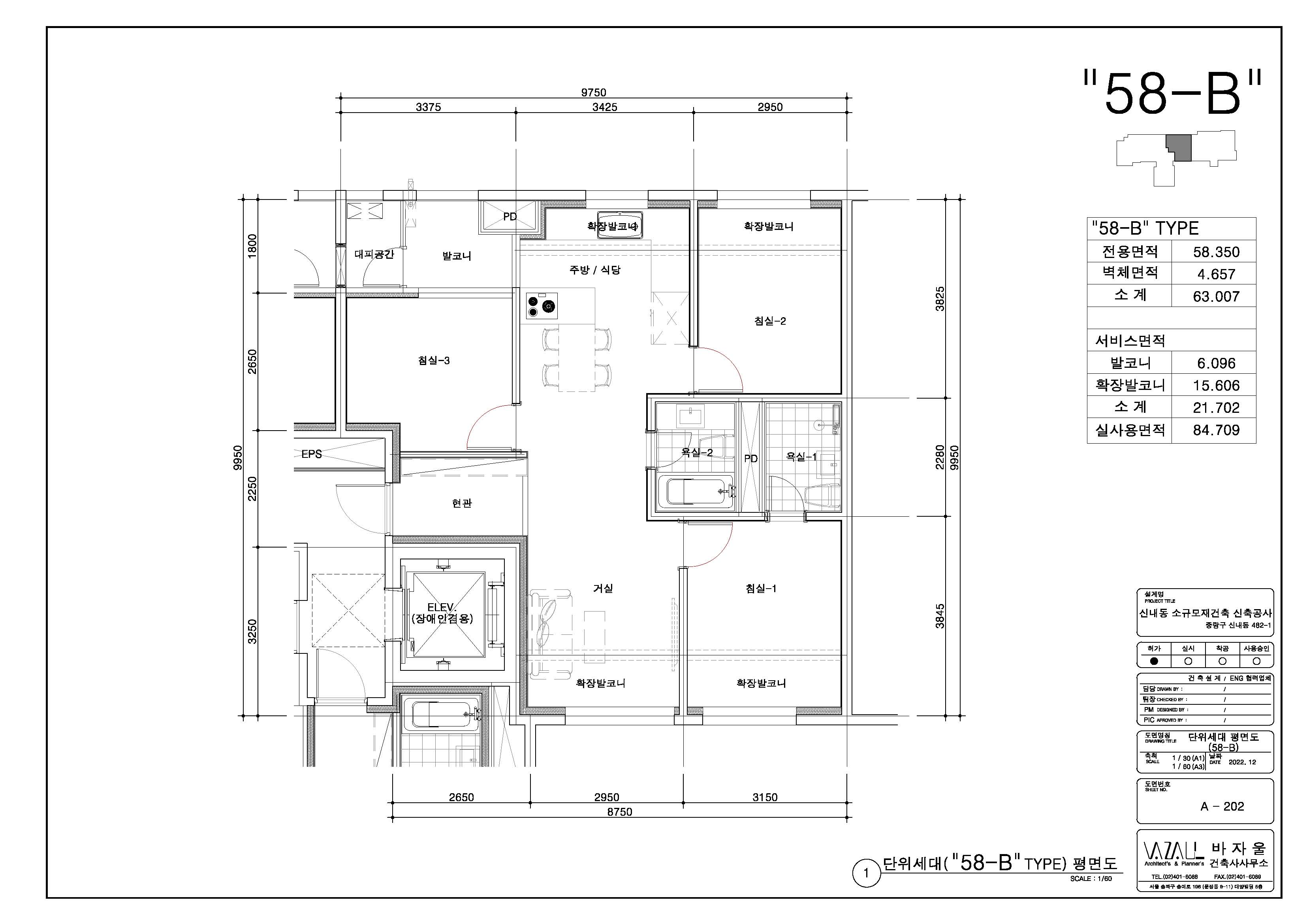
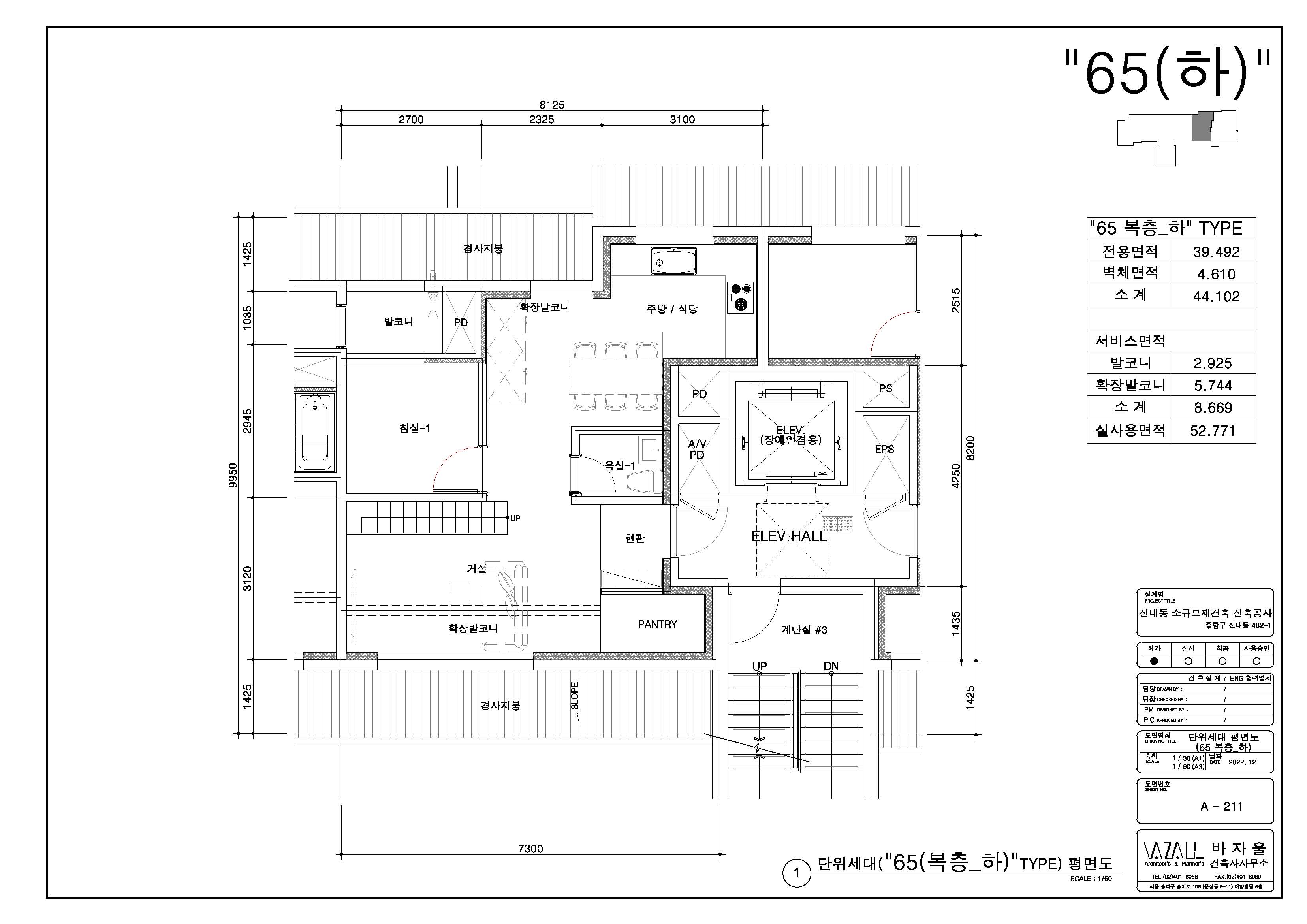
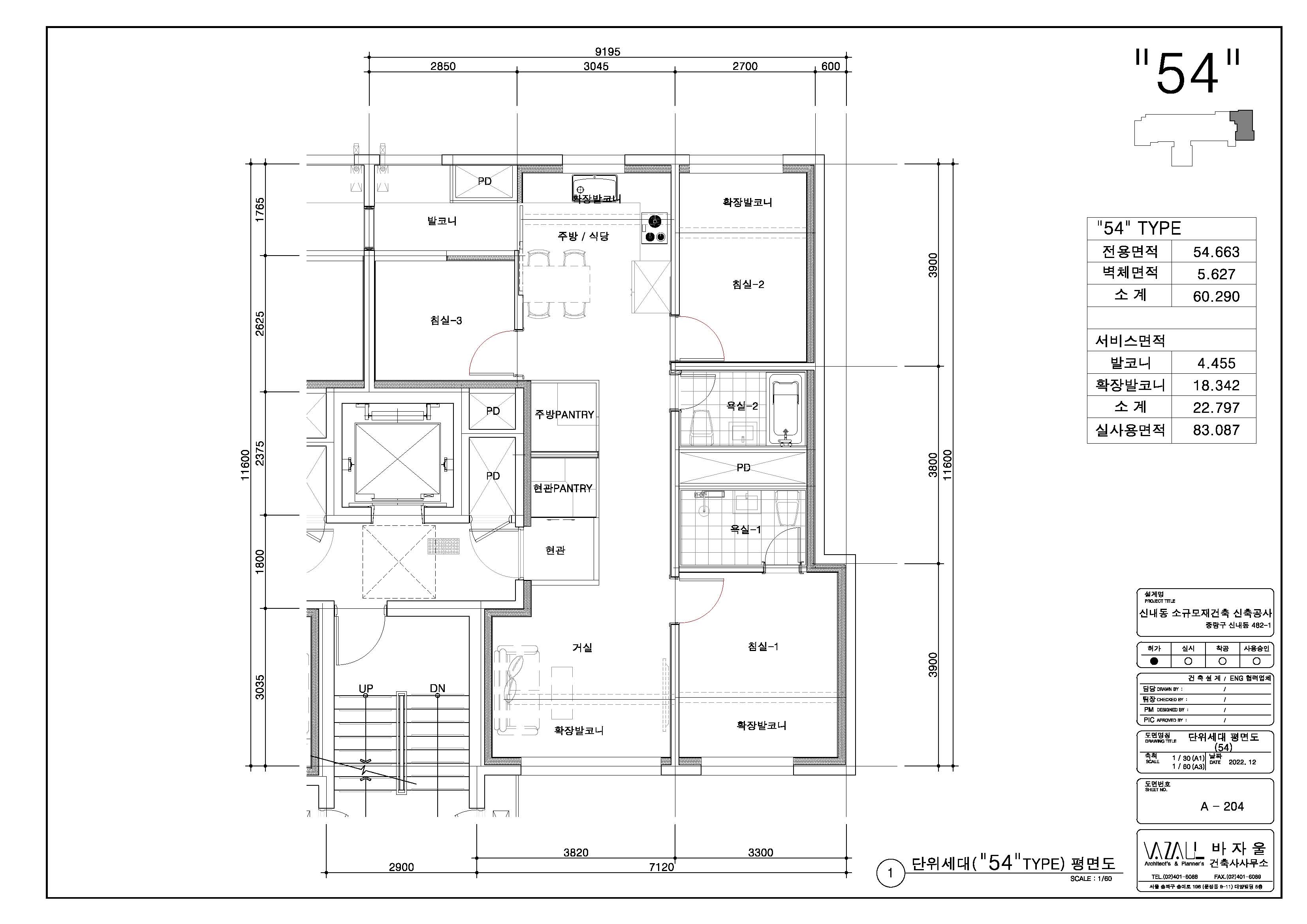
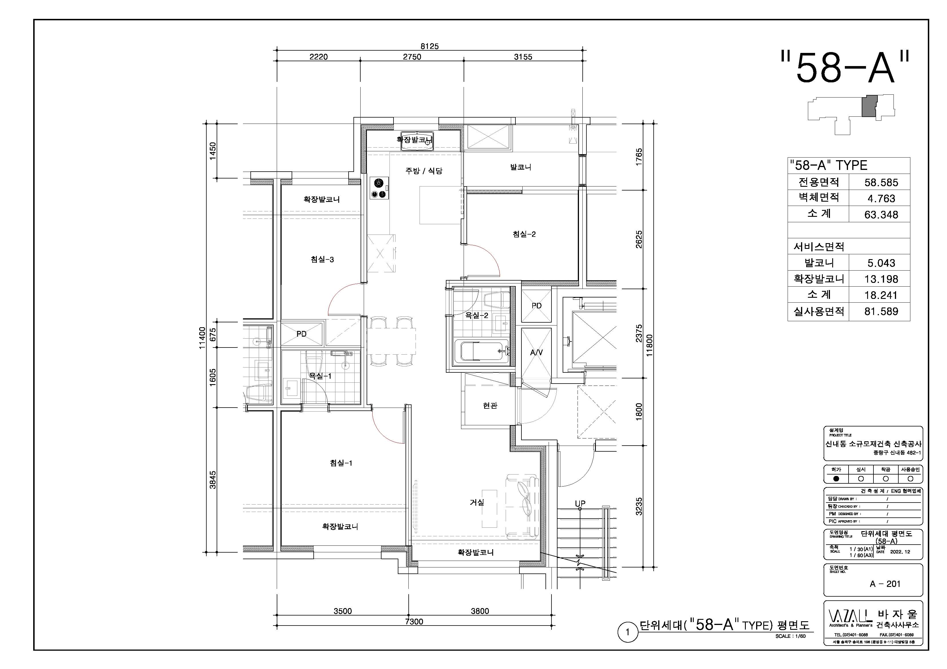
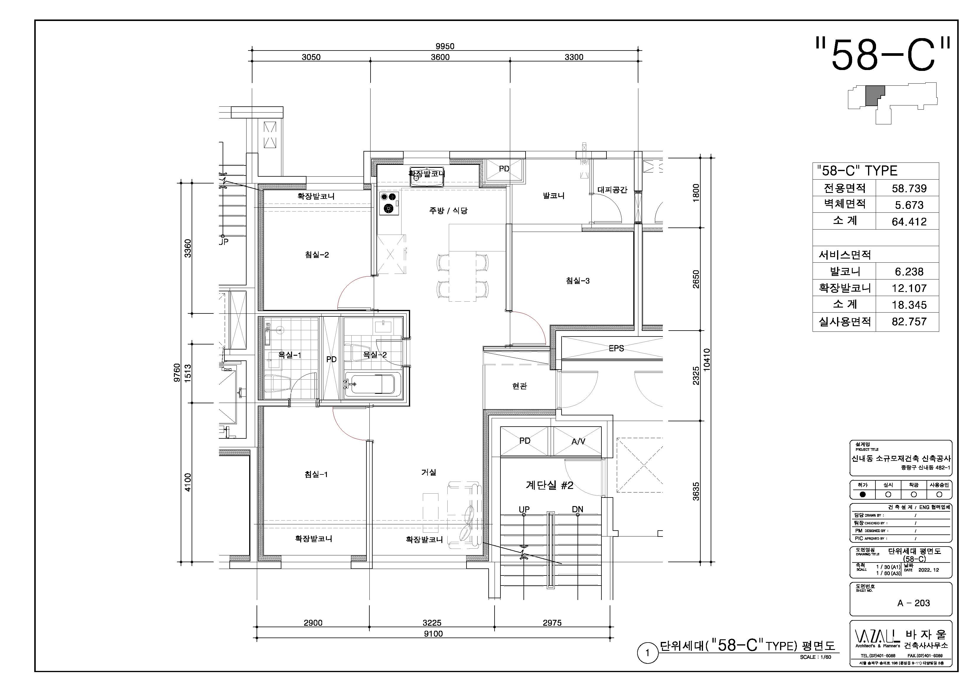
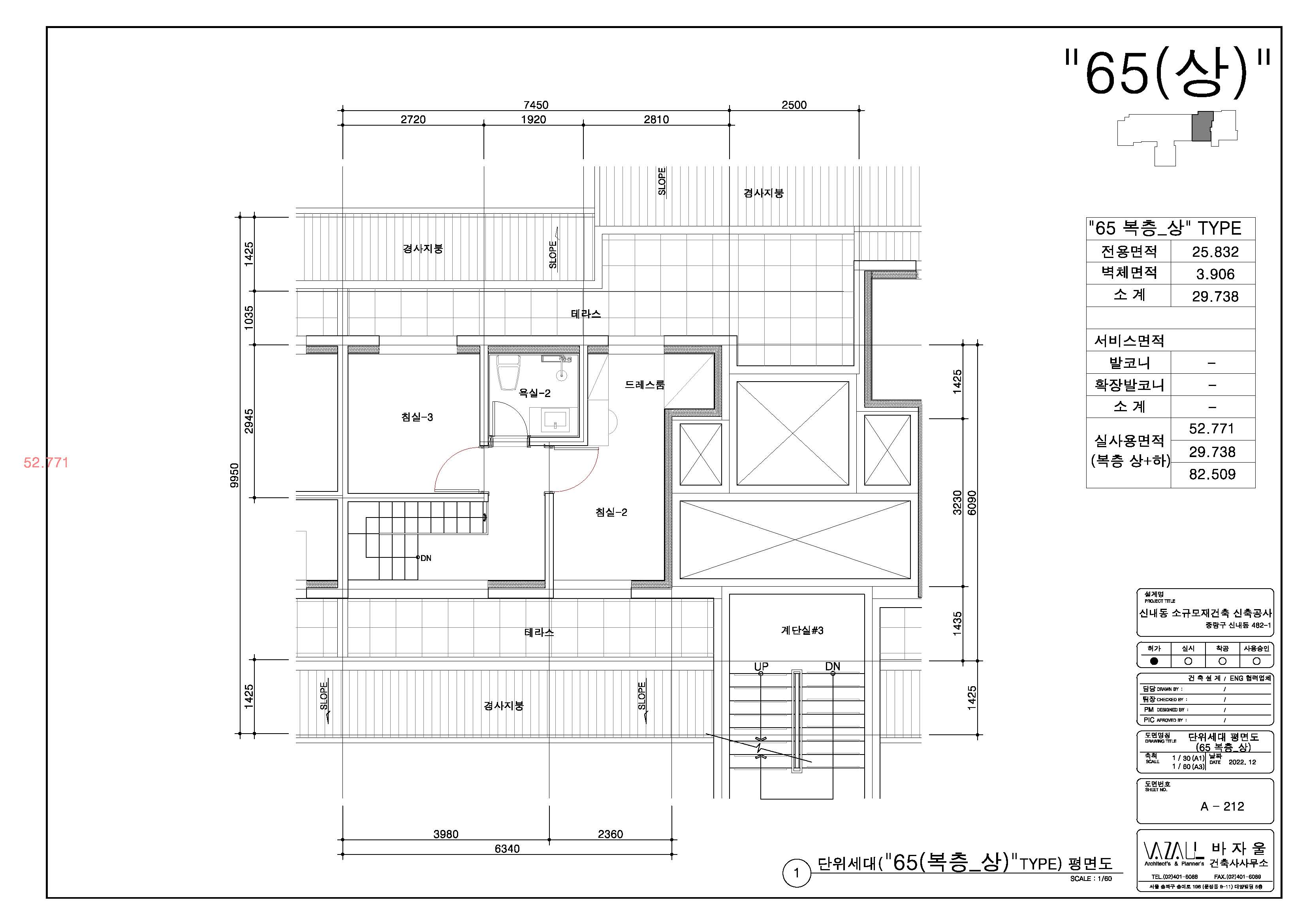
단위세대평면도
정비사업 추진과정을 유리알처럼 투명하게 공개
| 공급면적 (㎡) | 73.332 |
|---|---|
| 사업시행인가(변경)일자 | 2025-05-01 |
| 형별 | 54 |
| 세대수 | 11 |
| 전용면적 (㎡) | 54.663 |
| 공용면적 (㎡) | 18.669 |
| 공급면적 (㎡) | 73.888 |
|---|---|
| 사업시행인가(변경)일자 | 2025-05-01 |
| 형별 | 55 |
| 세대수 | 1 |
| 전용면적 (㎡) | 55.853 |
| 공용면적 (㎡) | 18.035 |
| 공급면적 (㎡) | 77.325 |
|---|---|
| 사업시행인가(변경)일자 | 2025-05-01 |
| 형별 | 58A |
| 세대수 | 10 |
| 전용면적 (㎡) | 58.585 |
| 공용면적 (㎡) | 18.740 |
| 공급면적 (㎡) | 76.928 |
|---|---|
| 사업시행인가(변경)일자 | 2025-05-01 |
| 형별 | 58B |
| 세대수 | 11 |
| 전용면적 (㎡) | 58.350 |
| 공용면적 (㎡) | 18.578 |
| 공급면적 (㎡) | 78.426 |
|---|---|
| 사업시행인가(변경)일자 | 2025-05-01 |
| 형별 | 58C |
| 세대수 | 10 |
| 전용면적 (㎡) | 58.739 |
| 공용면적 (㎡) | 19.687 |
| 공급면적 (㎡) | 89.425 |
|---|---|
| 사업시행인가(변경)일자 | 2025-05-01 |
| 형별 | 65 |
| 세대수 | 1 |
| 전용면적 (㎡) | 65.324 |
| 공용면적 (㎡) | 24.101 |
| 공급면적 (㎡) | 95.079 |
|---|---|
| 사업시행인가(변경)일자 | 2025-05-01 |
| 형별 | 69 |
| 세대수 | 1 |
| 전용면적 (㎡) | 69.725 |
| 공용면적 (㎡) | 25.354 |
| 공급면적 (㎡) | 98.120 |
|---|---|
| 사업시행인가(변경)일자 | 2025-05-01 |
| 형별 | 72 |
| 세대수 | 1 |
| 전용면적 (㎡) | 72.552 |
| 공용면적 (㎡) | 25.568 |