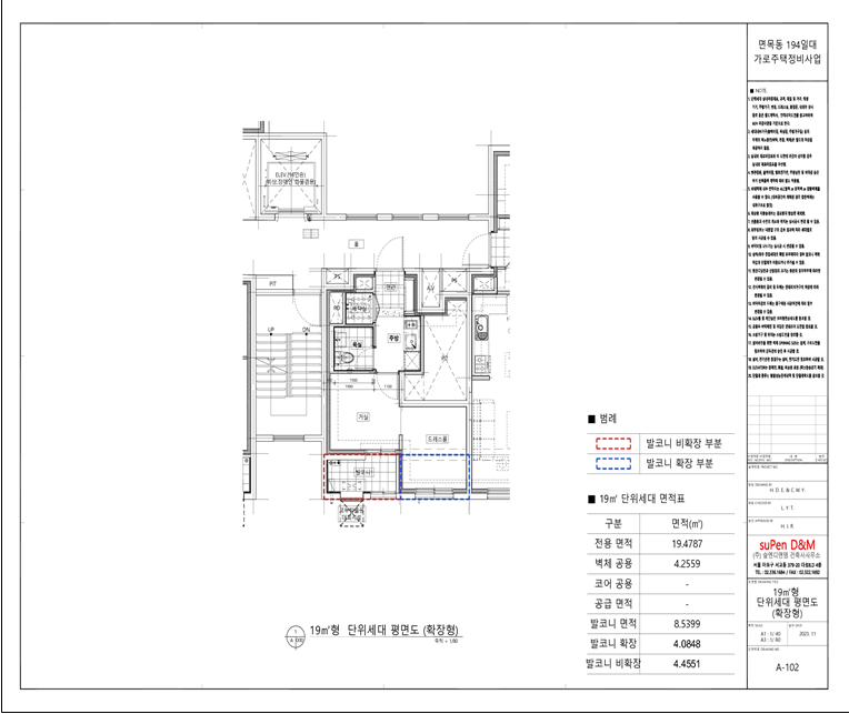
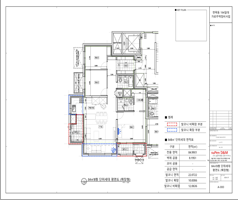
단위세대평면도
정비사업 추진과정을 유리알처럼 투명하게 공개
| 공급면적 (㎡) | 28.7276 |
|---|---|
| 사업시행인가(변경)일자 | 2025-08-20 |
| 형별 | 19타입 |
| 세대수 | 1 |
| 전용면적 (㎡) | 19.4787 |
| 공용면적 (㎡) | 9.2489 |
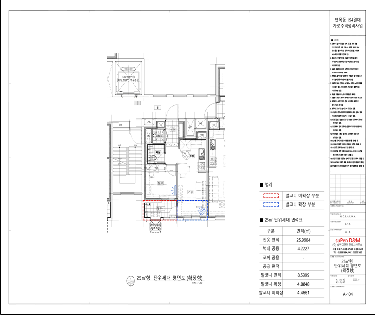
| 공급면적 (㎡) | 36.8656 |
|---|---|
| 사업시행인가(변경)일자 | 2025-08-20 |
| 형별 | 25타입 |
| 세대수 | 13 |
| 전용면적 (㎡) | 25.9904 |
| 공용면적 (㎡) | 10.8752 |
| 공급면적 (㎡) | 71.3300 |
|---|---|
| 사업시행인가(변경)일자 | 2025-08-20 |
| 형별 | 51타입 |
| 세대수 | 14 |
| 전용면적 (㎡) | 51.9916 |
| 공용면적 (㎡) | 19.3384 |
| 공급면적 (㎡) | 83.5590 |
|---|---|
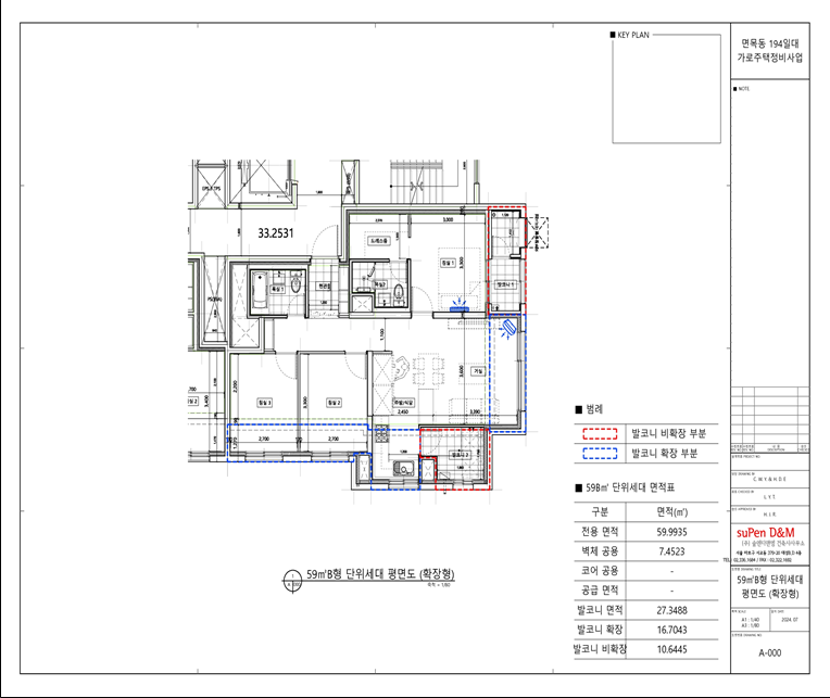
| 사업시행인가(변경)일자 | 2025-08-20 |
| 형별 | 59A |
| 세대수 | 97 |
| 전용면적 (㎡) | 59.9956 |
| 공용면적 (㎡) | 23.5634 |
| 공급면적 (㎡) | 82.8017 |
|---|---|
| 사업시행인가(변경)일자 | 2025-08-20 |
| 형별 | 59B |
| 세대수 | 37 |
| 전용면적 (㎡) | 59.9935 |
| 공용면적 (㎡) | 22.8082 |
| 공급면적 (㎡) | 115.3678 |
|---|---|
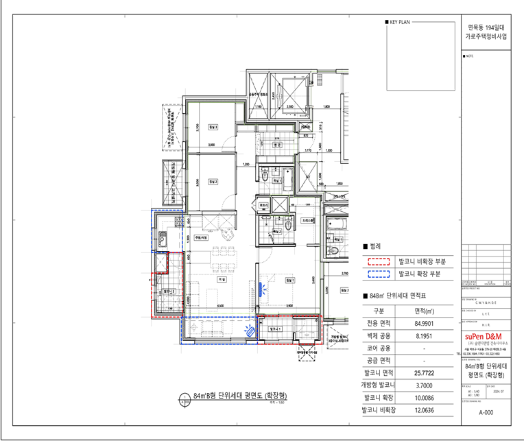
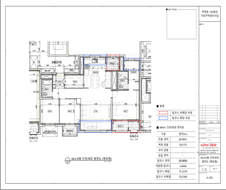
| 사업시행인가(변경)일자 | 2025-08-20 |
| 형별 | 84A(3층~20층),(2층,21층~24층) |
| 세대수 | 23 |
| 전용면적 (㎡) | 84.9951 |
| 공용면적 (㎡) | 30.3727 |
| 공급면적 (㎡) | 114.9113 |
|---|---|
| 사업시행인가(변경)일자 | 2025-08-20 |
| 형별 | 84B(3층~20층),(2층,21층~24층) |
| 세대수 | 23 |
| 전용면적 (㎡) | 84.9901 |
| 공용면적 (㎡) | 29.9212 |