단위세대평면도
정비사업 추진과정을 유리알처럼 투명하게 공개

단위세대평면도 58E타입_20091210

단위세대평면도 58E타입_20091210
공급면적 (㎡) 74.2741
사업시행인가(변경)일자 2009-12-10
형별 58E형
세대수 8세대
전용면적 (㎡) 58.9032
공용면적 (㎡) 15.3709

단위세대평면도 이미지

단위세대평면도 이미지

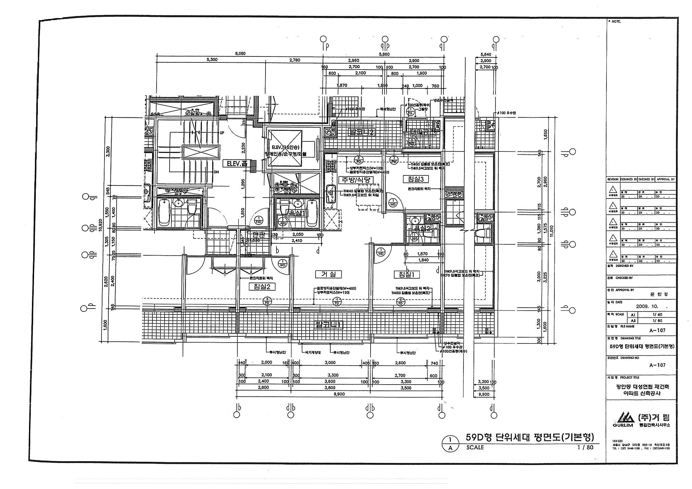
단위세대평면도 59D타입_20091210

단위세대평면도 59D타입_20091210
공급면적 (㎡) 75.2740
사업시행인가(변경)일자 2009-12-10
형별 59D형
세대수 26세대
전용면적 (㎡) 59.9819
공용면적 (㎡) 15.2921

단위세대평면도 이미지

단위세대평면도 이미지

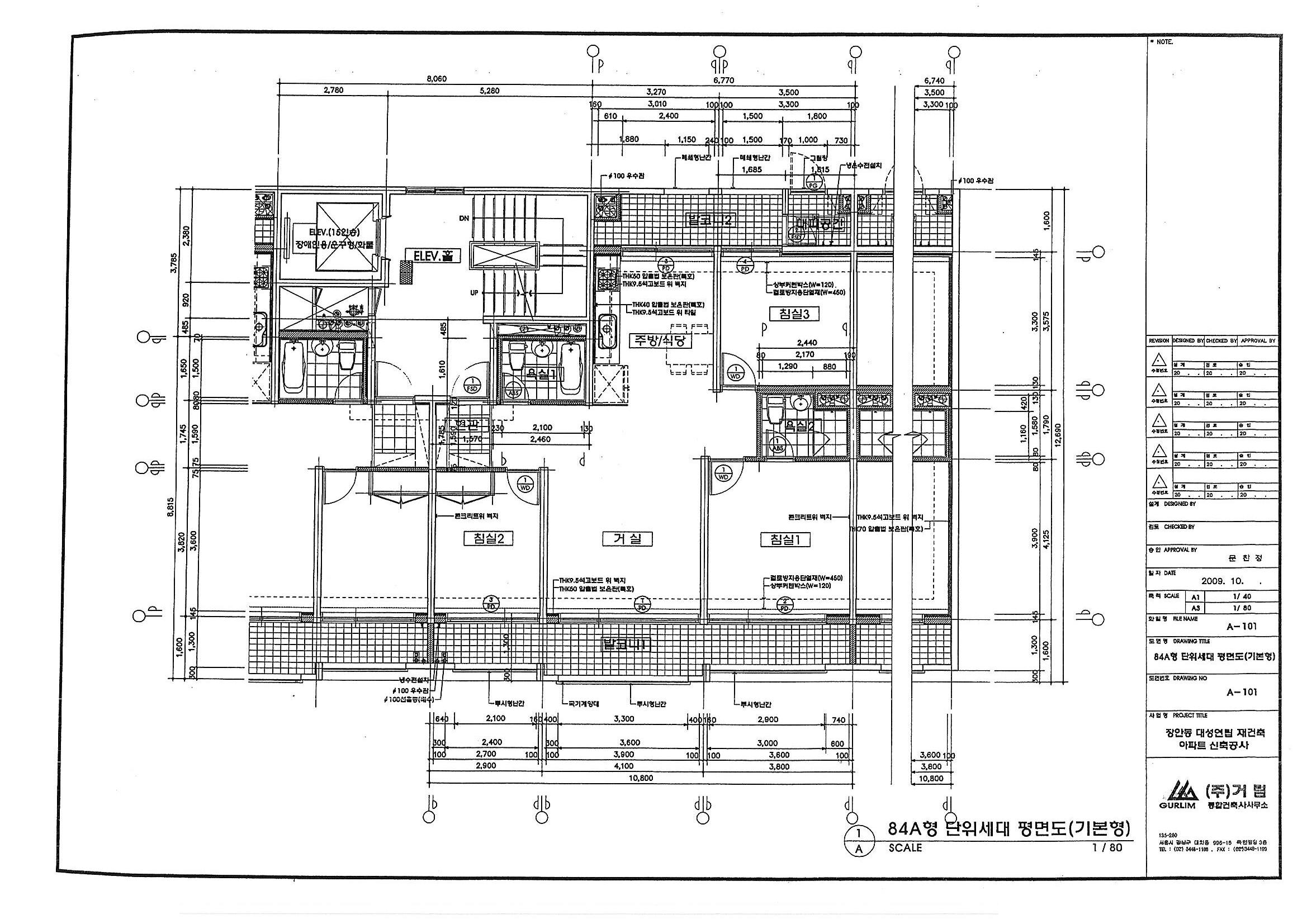
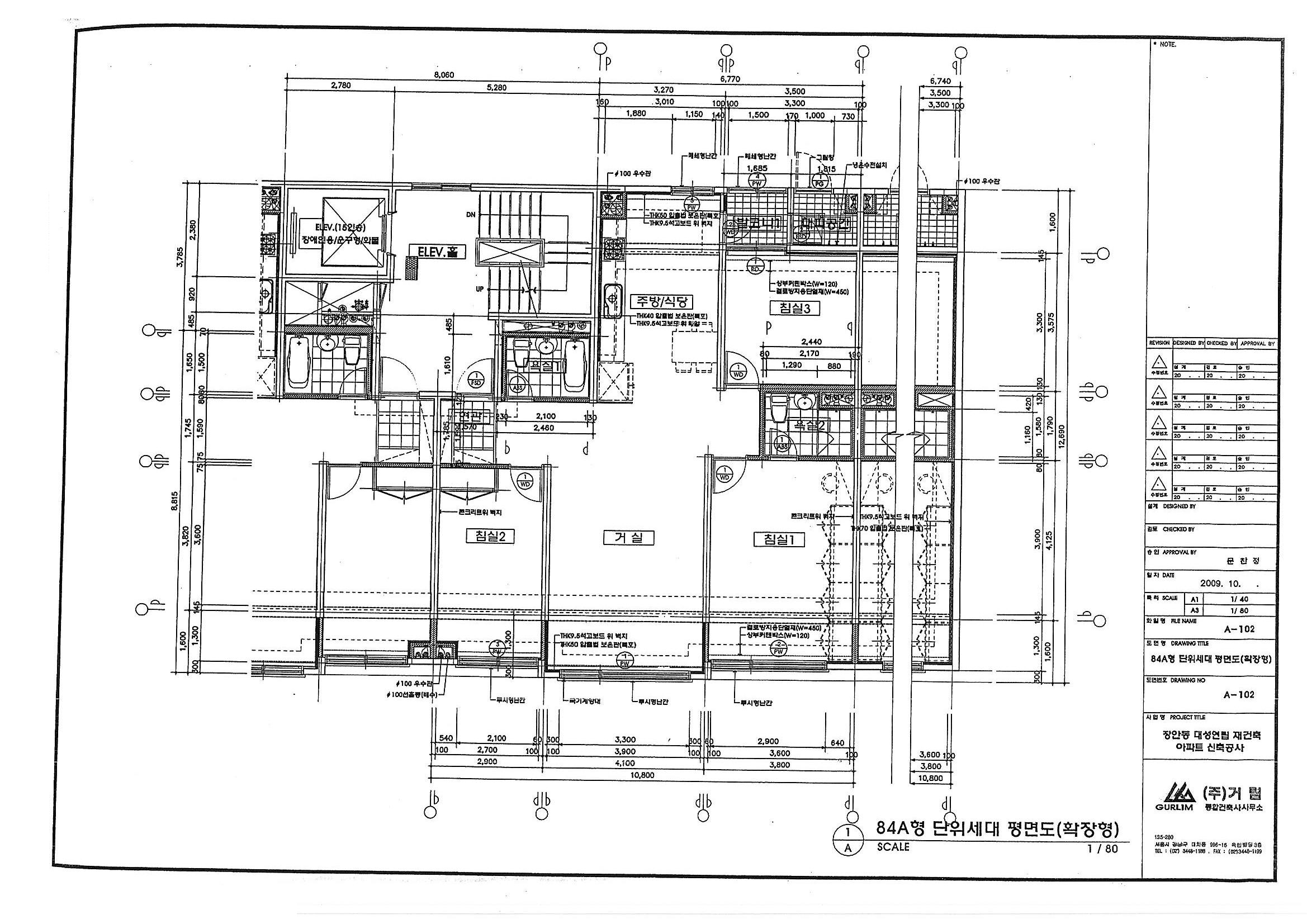
단위세대평면도 84A타입_20091210

단위세대평면도 84A타입_20091210
공급면적 (㎡) 104.9518
사업시행인가(변경)일자 2009-12-10
형별 84A형
세대수 71세대
전용면적 (㎡) 84.9216
공용면적 (㎡) 20.0302

단위세대평면도 이미지

단위세대평면도 이미지

단위세대평면도 84B타입_20091210

단위세대평면도 84B타입_20091210
공급면적 (㎡) 105.6867
사업시행인가(변경)일자 2009-12-10
형별 84B형
세대수 8세대
전용면적 (㎡) 84.9204
공용면적 (㎡) 20.7663

단위세대평면도 이미지

단위세대평면도 이미지

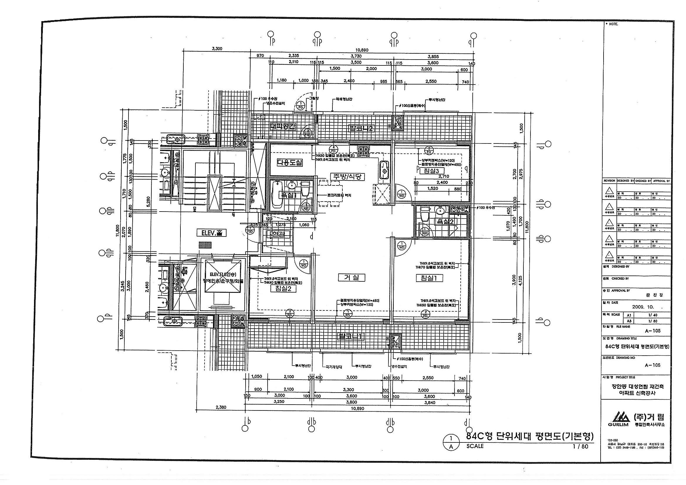
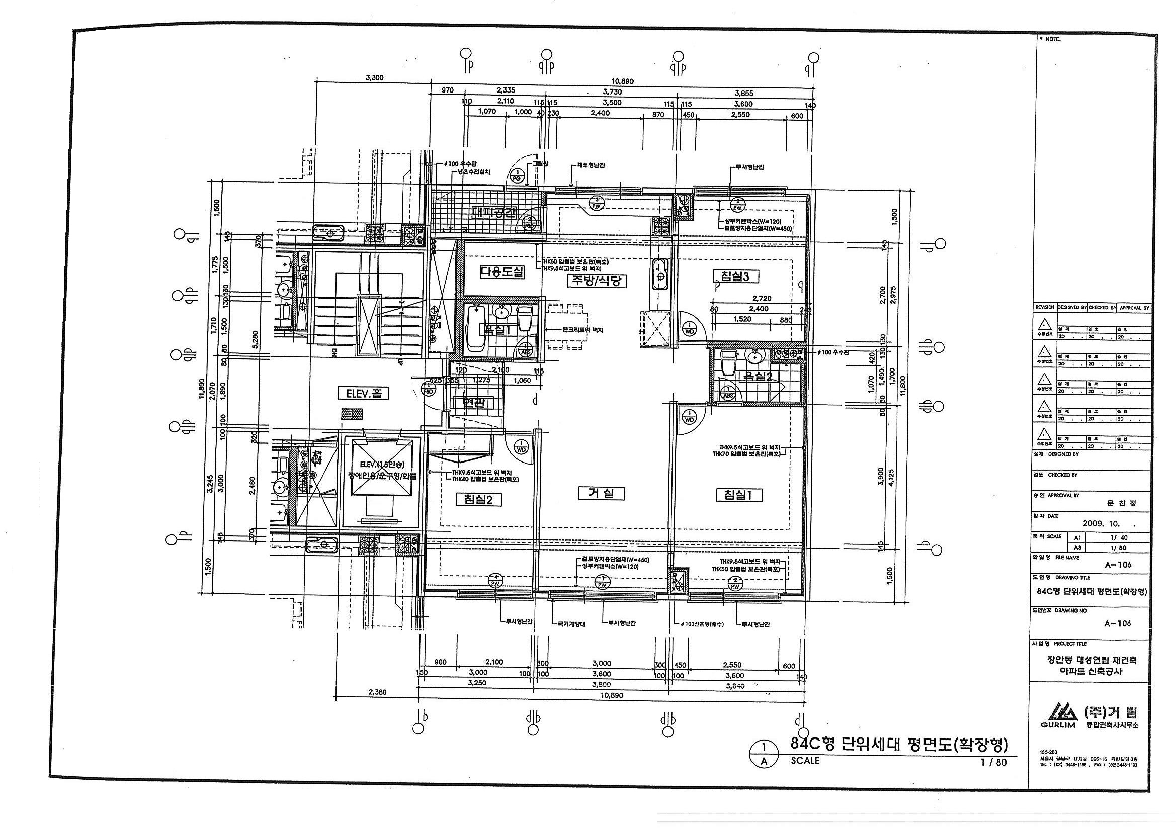
단위세대평면도 84C타입_20091210

단위세대평면도 84C타입_20091210
공급면적 (㎡) 105.2733
사업시행인가(변경)일자 2009-12-10
형별 84C형
세대수 3
전용면적 (㎡) 84.9924
공용면적 (㎡) 20.2809

단위세대평면도 이미지

단위세대평면도 이미지

사업추진 단계별
공개자료 조회

툴팁 아이콘
원하시는 사업 추진단계에 등록된 자료들을 조회해 보실 수 있습니다.