단위세대평면도
정비사업 추진과정을 유리알처럼 투명하게 공개

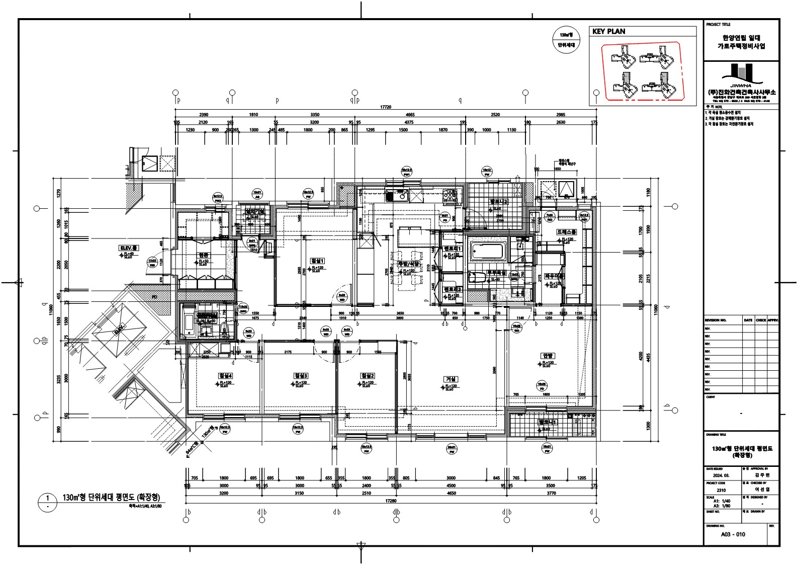
한양연립 일대 가로주택정비사업 단위세대 평면도_130타입

한양연립 일대 가로주택정비사업 단위세대 평면도_130타입
공급면적 (㎡) 165.2993
사업시행인가(변경)일자 2024-05-17
형별 130.9881
세대수 25
전용면적 (㎡) 130.9881
공용면적 (㎡) 34.3112

단위세대평면도 이미지

한양연립 일대 가로주택정비사업 단위세대 평면도_59타입

한양연립 일대 가로주택정비사업 단위세대 평면도_59타입
공급면적 (㎡) 76.3345
사업시행인가(변경)일자 2024-05-17
형별 59
세대수 24
전용면적 (㎡) 59.9222
공용면적 (㎡) 16.4123

단위세대평면도 이미지

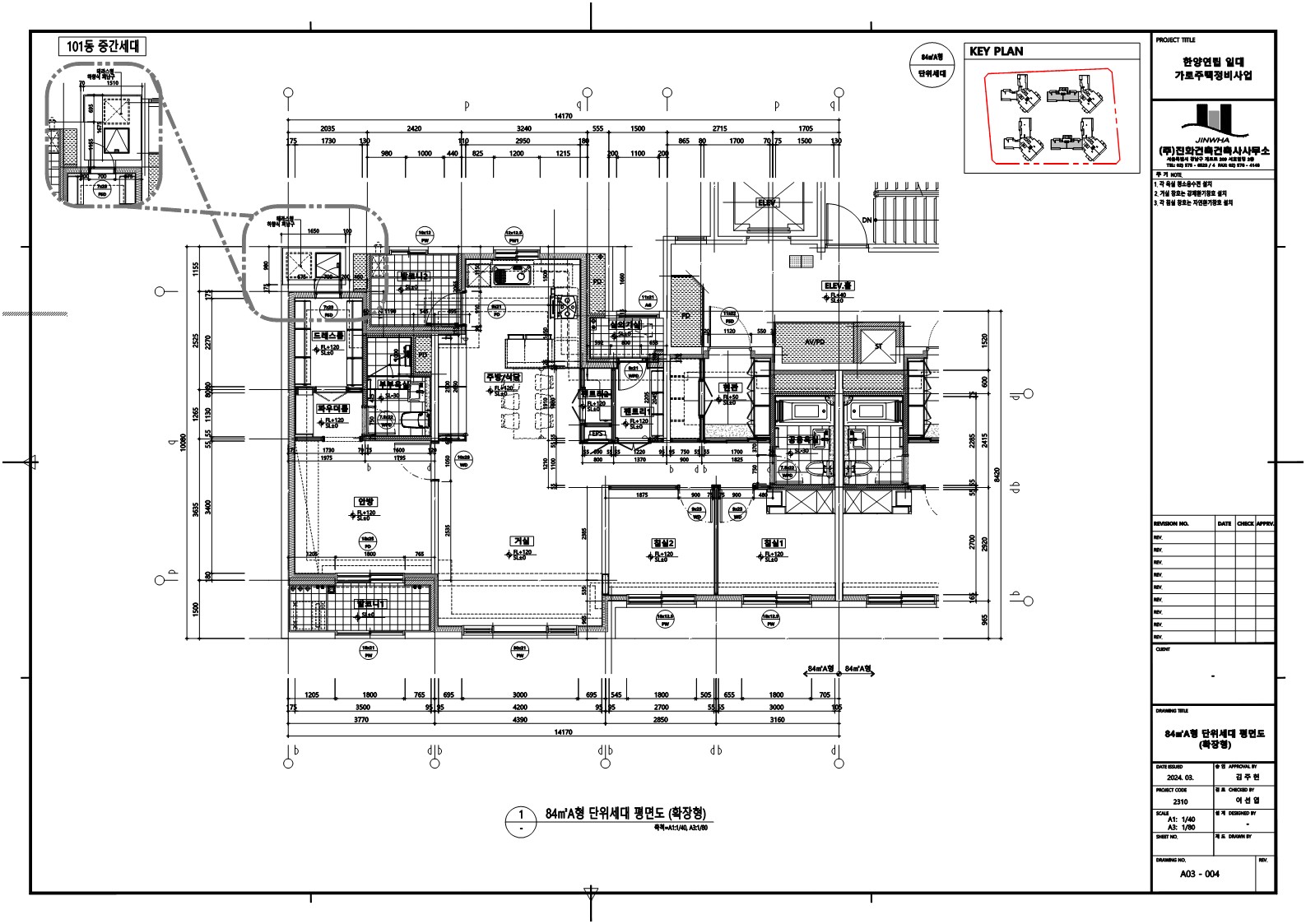
한양연립 일대 가로주택정비사업 단위세대 평면도_84(A)타입

한양연립 일대 가로주택정비사업 단위세대 평면도_84(A)타입
공급면적 (㎡) 106.7260
사업시행인가(변경)일자 2024-05-17
형별 84_A
세대수 53
전용면적 (㎡) 84.9863
공용면적 (㎡) 21.7397

단위세대평면도 이미지

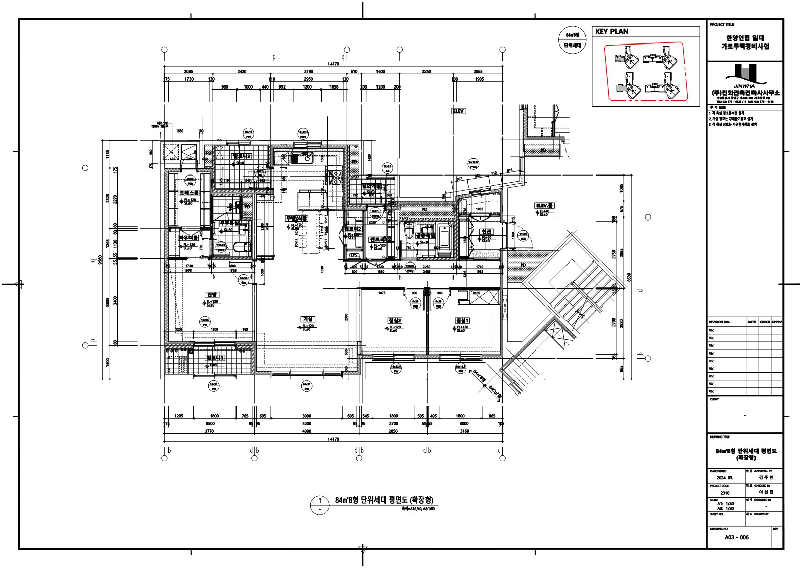
한양연립 일대 가로주택정비사업 단위세대 평면도_84(B)타입

한양연립 일대 가로주택정비사업 단위세대 평면도_84(B)타입
공급면적 (㎡) 106.7190
사업시행인가(변경)일자 2024-05-17
형별 84_B
세대수 20
전용면적 (㎡) 84.9997
공용면적 (㎡) 21.7193

단위세대평면도 이미지

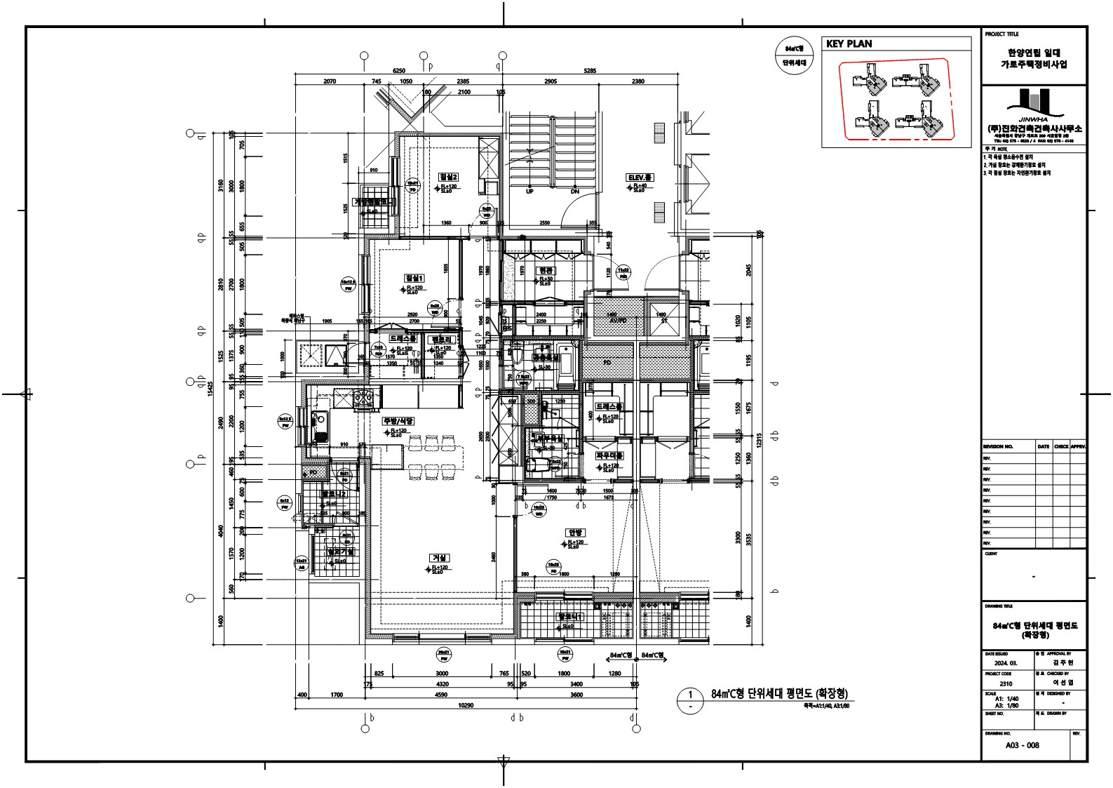
한양연립 일대 가로주택정비사업 단위세대 평면도_84(C)타입

한양연립 일대 가로주택정비사업 단위세대 평면도_84(C)타입
공급면적 (㎡) 105.8736
사업시행인가(변경)일자 2024-05-17
형별 84_C
세대수 93
전용면적 (㎡) 84.9811
공용면적 (㎡) 20.8925

단위세대평면도 이미지

사업추진 단계별
공개자료 조회

툴팁 아이콘
원하시는 사업 추진단계에 등록된 자료들을 조회해 보실 수 있습니다.