단위세대평면도
정비사업 추진과정을 유리알처럼 투명하게 공개

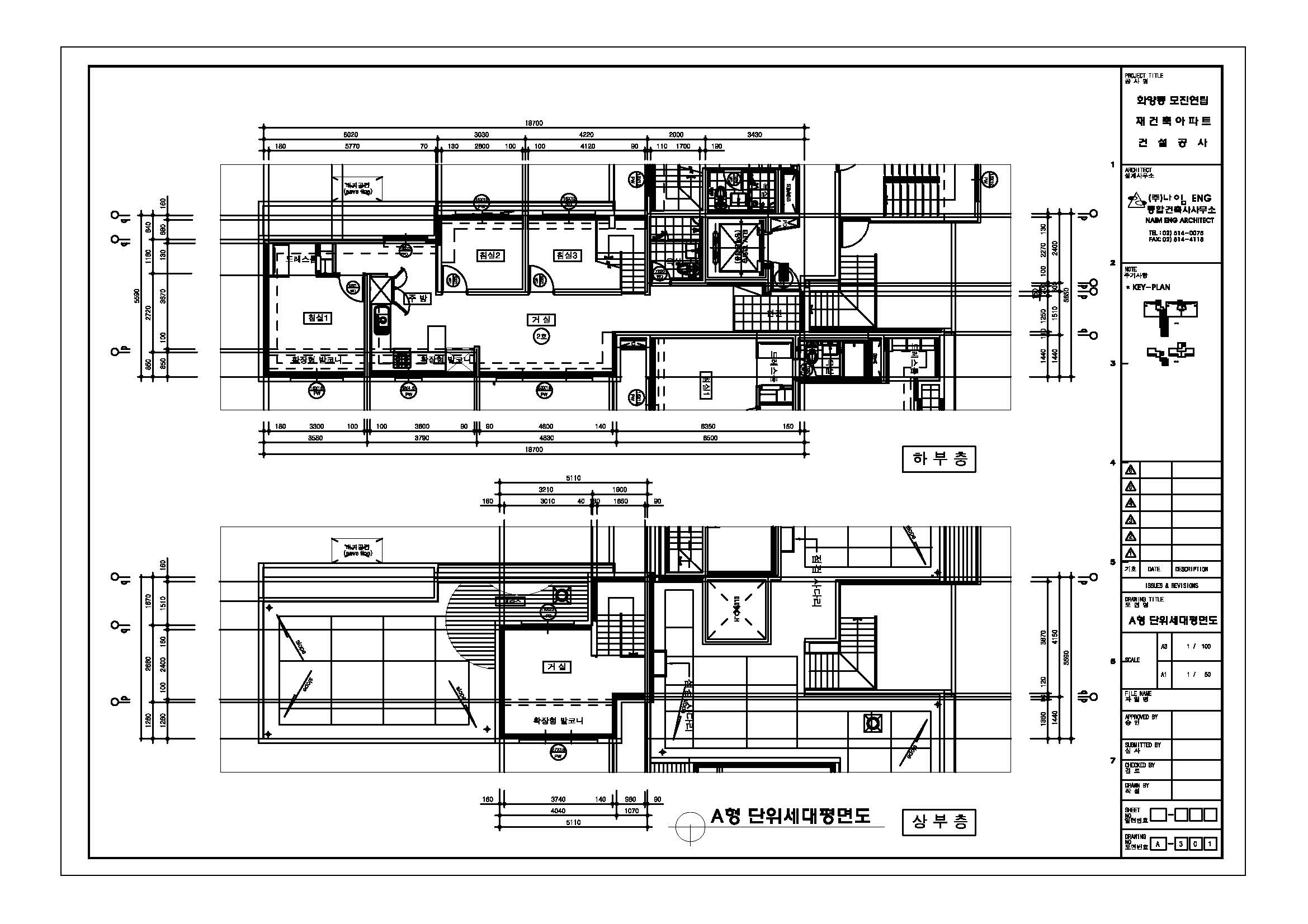
단위세대평면도

단위세대평면도
공급면적 (㎡) 103.72
사업시행인가(변경)일자 2017-10-13
형별 A TYPE
세대수 1
전용면적 (㎡) 83.18
공용면적 (㎡) 20.54

단위세대평면도 이미지

단위세대평면도

단위세대평면도
공급면적 (㎡) 135.71
사업시행인가(변경)일자 2017-10-13
형별 B TYPE
세대수 3
전용면적 (㎡) 108.84
공용면적 (㎡) 26.87

단위세대평면도 이미지

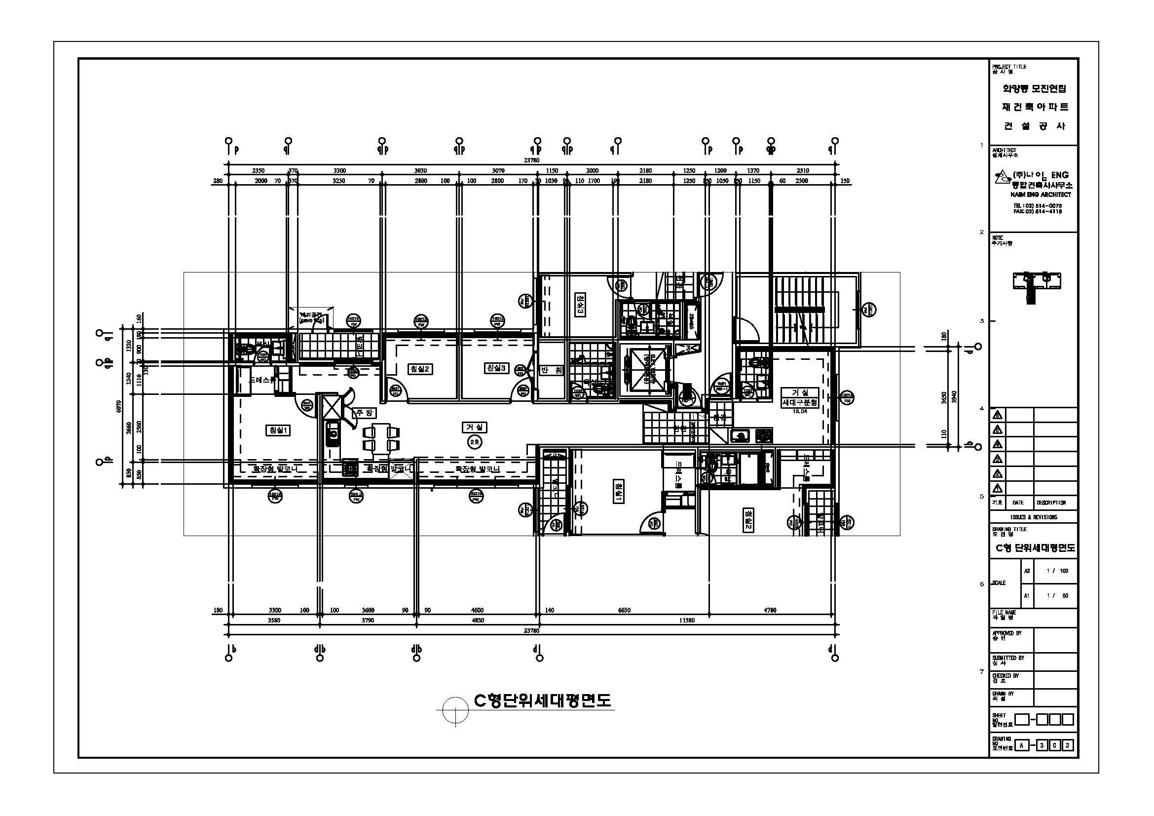
단위세대평면도

단위세대평면도
공급면적 (㎡) 105.38
사업시행인가(변경)일자 2017-10-13
형별 C TYPE
세대수 11
전용면적 (㎡) 84.51
공용면적 (㎡) 20.87

단위세대평면도 이미지

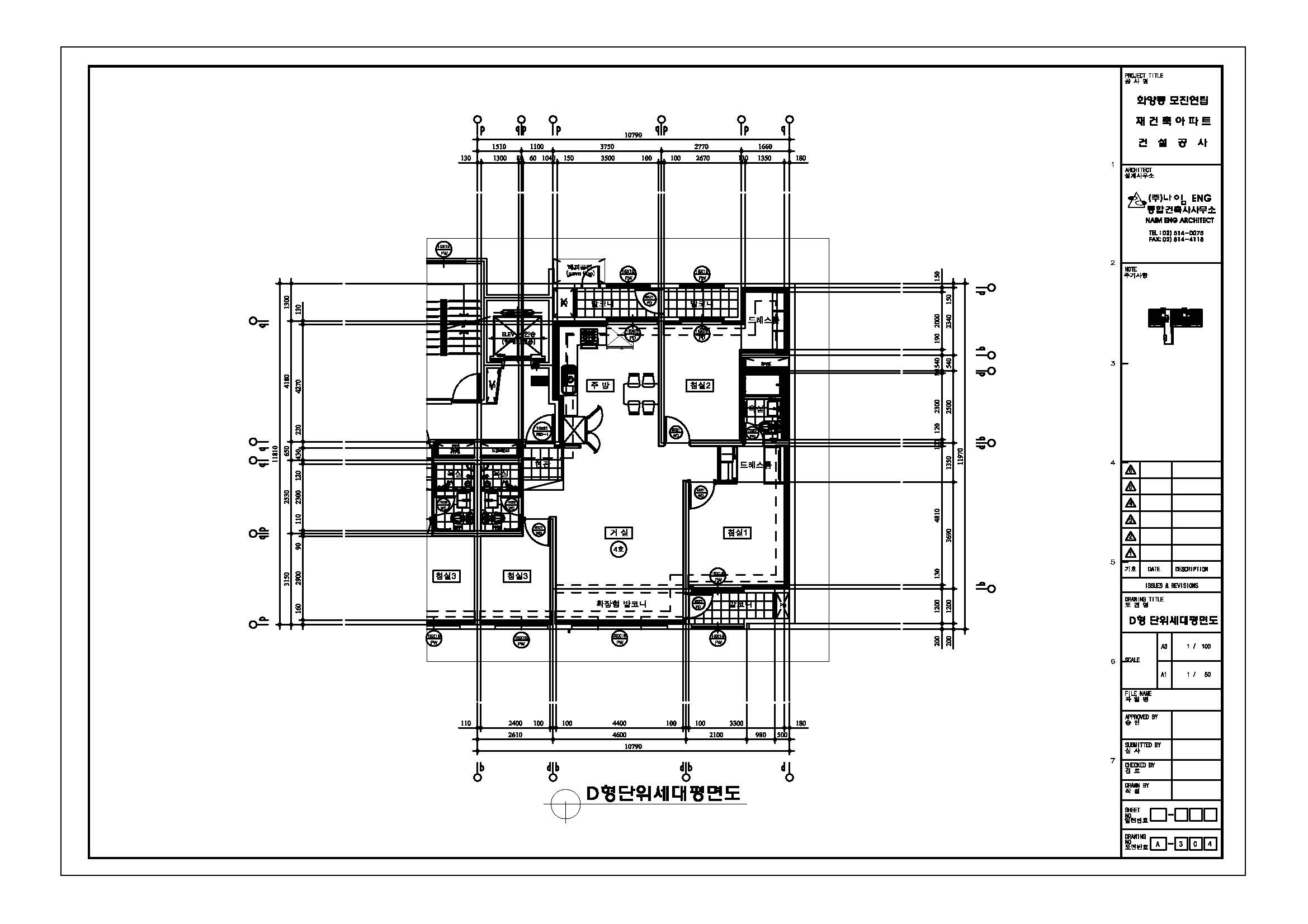
단위세대평면도

단위세대평면도
공급면적 (㎡) 105.97
사업시행인가(변경)일자 2017-10-13
형별 D TYPE
세대수 33
전용면적 (㎡) 84.99
공용면적 (㎡) 20.98

단위세대평면도 이미지

사업추진 단계별
공개자료 조회

툴팁 아이콘
원하시는 사업 추진단계에 등록된 자료들을 조회해 보실 수 있습니다.