단위세대평면도
정비사업 추진과정을 유리알처럼 투명하게 공개

114A 단위세대 평면도

114A 단위세대 평면도
공급면적 (㎡) 142.39
사업시행인가(변경)일자 2018-01-18
형별 114A
세대수 66
전용면적 (㎡) 114.86
공용면적 (㎡) 27.53

단위세대평면도 이미지

단위세대평면도 이미지

114B 단위세대 평면도

114B 단위세대 평면도
공급면적 (㎡) 142.69
사업시행인가(변경)일자 2018-01-18
형별 114B
세대수 20
전용면적 (㎡) 114.89
공용면적 (㎡) 27.80

단위세대평면도 이미지

단위세대평면도 이미지

141형 단위세대 평면도

141형 단위세대 평면도
공급면적 (㎡) 168.87
사업시행인가(변경)일자 2018-01-18
형별 141형
세대수 28
전용면적 (㎡) 141.86
공용면적 (㎡) 27.01

단위세대평면도 이미지

단위세대평면도 이미지

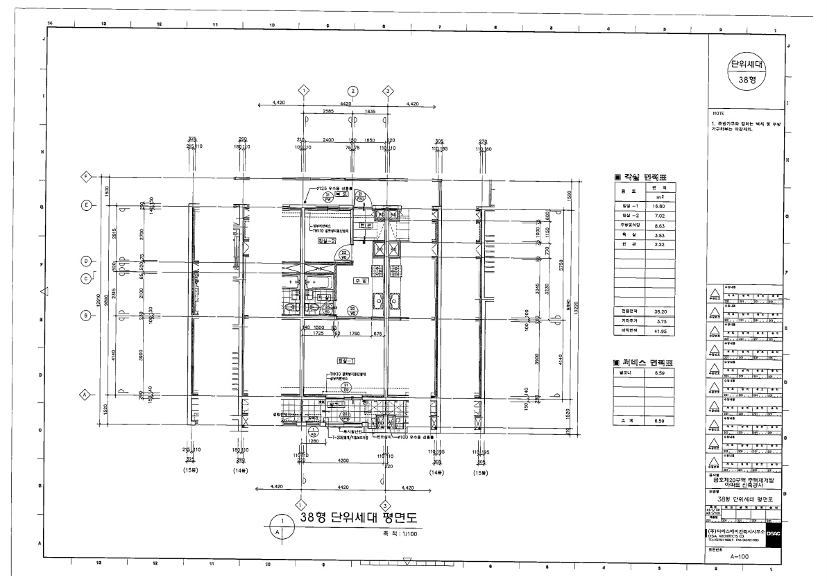
38형 단위세대 평면도

38형 단위세대 평면도
공급면적 (㎡) 56.82
사업시행인가(변경)일자 2018-01-18
형별 38형
세대수 52
전용면적 (㎡) 38.20
공용면적 (㎡) 18.62

단위세대평면도 이미지

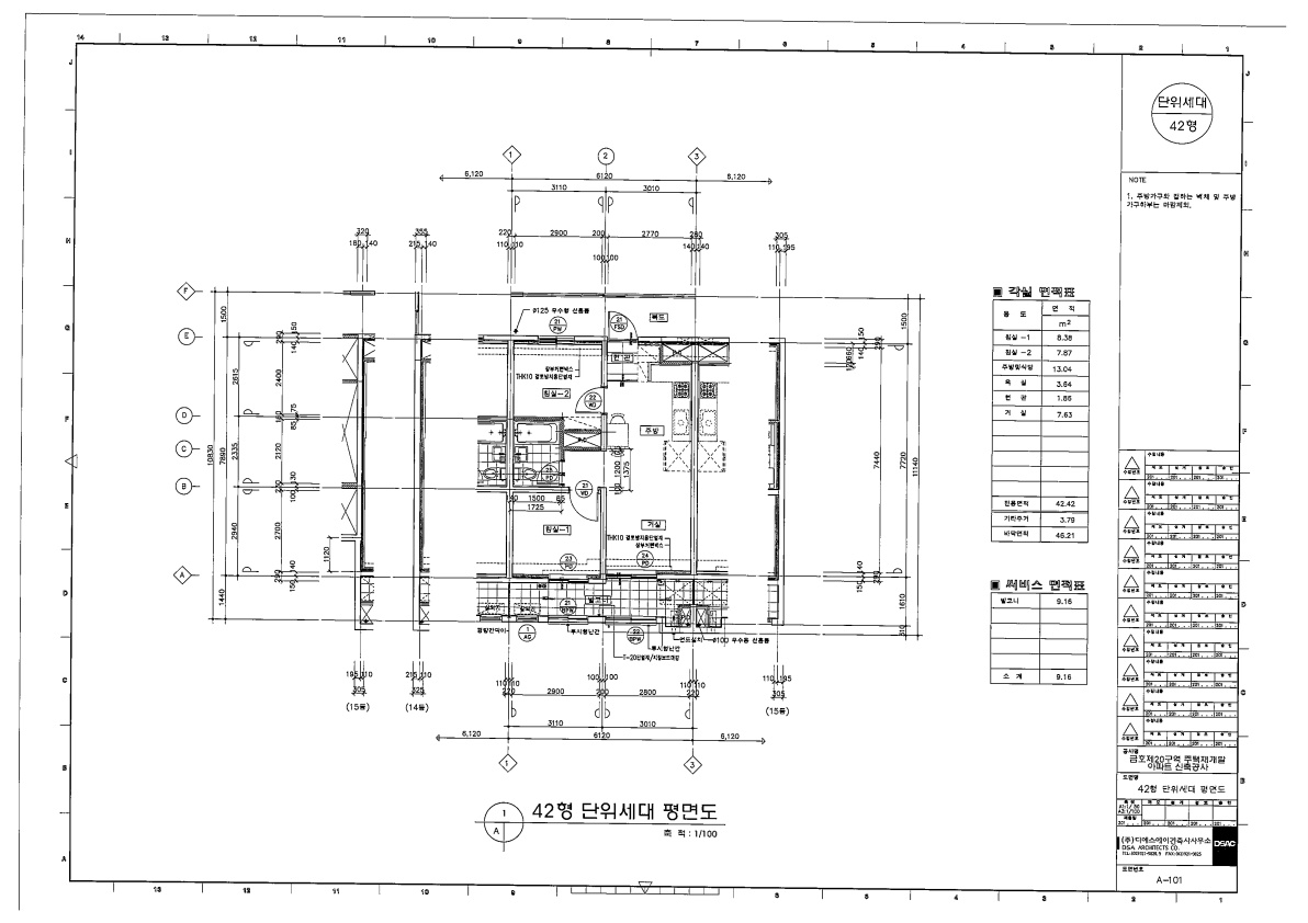
42형 단위세대 평면도

42형 단위세대 평면도
공급면적 (㎡) 62.72
사업시행인가(변경)일자 2018-01-18
형별 42형
세대수 52
전용면적 (㎡) 42.42
공용면적 (㎡) 20.30

단위세대평면도 이미지

59A형 단위세대 평면도

59A형 단위세대 평면도
공급면적 (㎡) 80.78
사업시행인가(변경)일자 2018-01-18
형별 59A
세대수 122
전용면적 (㎡) 59.98
공용면적 (㎡) 20.80

단위세대평면도 이미지

단위세대평면도 이미지

59B 단위세대 평면도

59B 단위세대 평면도
공급면적 (㎡) 80.54
사업시행인가(변경)일자 2018-01-18
형별 59B
세대수 11
전용면적 (㎡) 59.96
공용면적 (㎡) 20.58

단위세대평면도 이미지

단위세대평면도 이미지

64형 단위세대 평면도

64형 단위세대 평면도
공급면적 (㎡) 88.33
사업시행인가(변경)일자 2018-01-18
형별 64형
세대수 21
전용면적 (㎡) 64.95
공용면적 (㎡) 23.38

단위세대평면도 이미지

단위세대평면도 이미지

84A형 단위세대 평면도

84A형 단위세대 평면도
공급면적 (㎡) 110.61
사업시행인가(변경)일자 2018-01-18
형별 84A
세대수 55
전용면적 (㎡) 84.92
공용면적 (㎡) 25.69

단위세대평면도 이미지

단위세대평면도 이미지

84B 단위세대 평면도

84B 단위세대 평면도
공급면적 (㎡) 111.77
사업시행인가(변경)일자 2018-01-18
형별 84B
세대수 124
전용면적 (㎡) 84.88
공용면적 (㎡) 26.89

단위세대평면도 이미지

단위세대평면도 이미지

84C 단위세대평면도

84C 단위세대평면도
공급면적 (㎡) 110.14
사업시행인가(변경)일자 2018-01-18
형별 84C
세대수 34
전용면적 (㎡) 84.83
공용면적 (㎡) 25.31

단위세대평면도 이미지

단위세대평면도 이미지

84D 단위세대평면도

84D 단위세대평면도
공급면적 (㎡) 110.90
사업시행인가(변경)일자 2018-01-18
형별 84D
세대수 21
전용면적 (㎡) 84.69
공용면적 (㎡) 26.21

단위세대평면도 이미지

단위세대평면도 이미지

사업추진 단계별
공개자료 조회

툴팁 아이콘
원하시는 사업 추진단계에 등록된 자료들을 조회해 보실 수 있습니다.